021-31001158  mmvalves@126.com

技术新闻

电动调节球阀工作原理(图)

Writer: admin Time:2020-06-11 16:08 Browse:

电动调节球阀工作原理:
 
电动调节球阀启闭件为V形球或者O形球,主要用于对管道介质压力、流量、液位等参数的调整控制,一般分为电动O型调节球阀和电动V型调节球阀,通过输入4-20mA信号及220VAC电源即可控制球阀的运转开度。电动调节球阀根据使用工况不同,可选用软密封或硬密封两种形式,其中常温常压可选软密封橡胶、聚四氟乙烯等,高温高压场合可选择金属材质硬密封,适用于各种化工、石化、石油、电力、液化气、机械设备配套等领域。
 
电动调节球阀特点:
 
电动调节球阀内置伺服系统,无须另配伺服放大器,输入4-20mA信号及220VAC电源即可控制运转,其中电动V型调节球阀带有特殊V型切口,不仅可将纤维切断,防止卡死,它的V型开口可与阀座流道形成不同的V型角度,实现对管路介质各项参数的精确调节,适用于各种纸浆或纤维等粘稠介质,有效保证管路的流通,又能防止球阀球芯卡死的现象。
  • 阀门型号:VQ947F/H,VQ977F/H,Q941F/H
  • 通径规格:DN15~DN300
  • 结构形式:O型球芯,V型球芯
  • 阀体材质:铸钢WCB、不锈钢304、不锈钢316
  • 公称压力:PN10、PN16、PN25、PN40、PN64
  • 适用温度:-40℃~-450℃
  • 应用范围:水、蒸汽、纸浆、含有纤维介质及粉粒状介质
  • 产品特点:结构紧凑、流通能力大、动作稳定可靠、调节性能佳
 
电动调节球阀参数:

公称通径 DN15~DN300(mm)
公称压力 PN1.0、1.6、2.5、6.4MPa
连接形式 法兰式,对夹式
驱动形式 电源驱动(可选防爆型,自带手动装置)
电源电压 AC110V、AC220V、AC380V(其他定制DC24)
阀芯形式 O型球型阀芯,V型阀芯结构
泄露量 按GB/T4213-92,小于额定KV0.01%
动作时间 8~30(DN15-50) 36~60(DN65-300)可定制
阀体材质 碳钢、不锈钢304、316
流量特性 近似快开特性
适用温度 软密封-40℃~-180℃;硬密封-40℃~-450℃
控制方式 智能调节型(输入输出4-20mA模拟量信号实现调节功能)
使用介质 蒸汽、纸浆、污水、含有纤维颗粒固体悬浮介质及粉粒状介质

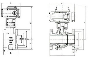
电动调节球阀结构图:

电动调节球阀结构图

电动调节球阀性能指标:
 
控制精度:0.1%-3.0%(通过U4参数可调)
可接电动执行器反馈信号:电位器500Ω-10KΩ
可接收外部控制信号(DC):4-20mA(1-5V、0-10V、开关量等出厂前定制)
输入阻抗:250Ω;
通过修改U1参数可设定:①DRTA/正动作,RVSA/逆动作模态②输入信号中断时“中断”模态—OPEN(开)、STOP(停)、SHUT(闭)
可选:①可控硅输出(AC,600V,25A)②继电器输出(AC,250V,10A)◆定货时指明
输出执行器位置信号:低漂移输出4-20mADC对应执行器全闭至全开,信号完全与输入隔离(光电隔离),输出负载≤500Ω
环境温度:0-70℃,湿度:35-85%
有超温保护功能:定位器壳内温度≥70℃时,定位器停止对执行器的开闭控制,可通过按键自由标定输入信号所对应执行器的动作区间(一般标定为电动执行器全闭、全开位置)

电磁阀相关产品