角式放料阀产品概述
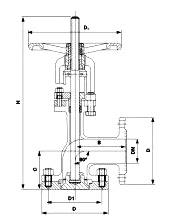
角式放料阀由阀体、阀盖、阀瓣、阀杆、阀座、支架、连接在阀杆上部的手动或驱动装置组成,其阀体进料口与出料口通道的轴线成直角,适用于安装在垂直相交的管线上的反应釜、储槽和其他容器的底部放料、排料及取样。该阀内腔有耐冲刷、耐腐蚀的密封面,在开启阀的瞬间,可以保护阀腔不会被介质冲刷、腐蚀,并对密封面进行硬化处理,它的阀瓣斜面于阀座角形成线密封,当转动手轮或接通气动、电动时,阀杆带动阀瓣上升或下移,阀门打开,流体通过阀瓣与阀座之间的间隙进入阀内,再由出口流出,反之则关闭。本产品阀体入口与罐底的连接形式可采用法兰型或管接型,上展式的入口规格与阀门的公称尺寸一样大,而下展式的入口规格则比阀门的公称尺寸大一到二级。
角式放料阀部件材料
序号 | 部件名称 | 材料名称 | ||||
1 | 阀 体 | WCB | CF8 | CF3 | CF8M | CF3M |
2 | 阀 盖 | WCB | CF8 | CF3 | CF8M | CF3M |
3 | 阀 座 | WCB | CF8 | CF3 | CF8M | CF3M |
4 | 阀 杆 | WCB | CF8 | CF3 | CF8M | CF3M |
5 | 填 料 | GRAPHITE、RPTFE、PTFE、TEFLON、PPL | ||||
6 | 阀 瓣 | WCB | CF8 | CF3 | CF8M | CF3M |
7 | 垫 片 | GRAPHITE | PTFE | PTFE | PTFE | PTFE |
8 | 螺 柱 | 35CrMoA | 304 | 304 | 316 | 316 |
9 | 螺 母 | 30CrMo | 304 | 304 | 316 | 316 |
角式放料阀技术规范
公称压力PN(MPa) | 0.6 | 1.0 | 1.6 | 2.5 | 2.0 |
壳体强度试验压力(MPa) | 0.9 | 1.5 | 2.4 | 3.75 | 3.0 |
高压水密封试验压力(MPa) | 0.66 | 1.1 | 1.76 | 2.75 | 2.2 |
低压气密封试验压力(MPa) | 0.6 | 0.6 | 0.6 | 0.6 | 0.6 |
设计标准 | JB/T 11489-2013 放料用截止阀 | ||||
连接法兰 | JB/T 79、GB/T 9113、HG/T 20592、HG/T 20615、SH/T 3406、ASME B16.5 | ||||
检验试验 | JB/T 11489-2013 放料用截止阀 | ||||
适用温度 | -60℃ ~ 232℃ | ||||
角式放料阀外型尺寸
公称压力 PN(MPa) | 公称通径 DN(mm) | 尺寸(mm) | |||||
B | C | H | D0 | D | D1 | ||
1.6 | 50 | 124 | 77 | 370 | 180 | 160 | 125 |
80 | 158 | 103 | 480 | 250 | 195 | 160 | |
100 | 168 | 123 | 590 | 280 | 215 | 180 | |
150 | 209 | 156 | 775 | 320 | 280 | 240 | |
角式放料阀结构图

如果你需订购我厂放料阀产品,咨询时烦请说明公称通径、公称压力、阀体材质、操作方式等,本产品操作方式可选用手动、齿轮、气动(弹簧复位式,双作用式、带手轮和不带手轮)、电动、液动等。