保温放料阀产品概述
保温放料阀是在其阀体外表面焊接一层金属夹套,使它们之间构成便于加热流体流动以达到良好保温功效的通道,确保阀门内腔正常恒温,提高易凝固、结晶和高粘度等介质的流动性,保障放料阀能够正常启闭。该阀的结构特点是保温夹套焊装在壳体上,并在它的不同侧设置有一到两个保温加热流体入口和出口,且接口连接形式可根据工况要求设计成法兰或管螺纹,通过它可自由地流通蒸汽、热油或其它热的保温介质,使沉淀于反应釜、储罐和其他容器底部的粘稠介质得于放料、排料、取样及流通。本产品主要安装在化工、石油化工、食品、制药等装置的罐底,用于排放常温下会凝固、结晶的高粘度物料,做输送启闭放料用。
保温放料阀部件材料
序号 | 部件名称 | 材料名称 | ||||
1 | 阀 体 | WCB | CF8 | CF3 | CF8M | CF3M |
2 | 阀 盖 | WCB | CF8 | CF3 | CF8M | CF3M |
3 | 阀 座 | WCB | CF8 | CF3 | CF8M | CF3M |
4 | 阀 杆 | WCB | CF8 | CF3 | CF8M | CF3M |
5 | 支 架 | WCB | WCB | WCB | WCB | WCB |
6 | 填 料 | GRAPHITE、RPTFE、PTFE、TEFLON、PPL | ||||
7 | 阀 瓣 | WCB | CF8 | CF3 | CF8M | CF3M |
8 | 垫 片 | GRAPHITE | PTFE | PTFE | PTFE | PTFE |
9 | 保温夹套 | 20# | 06Cr19Ni10 | 06Cr19Ni10 | 06Cr19Ni10 | 06Cr19Ni10 |
10 | 螺 柱 | 35CrMoA | 06Cr19Ni10 | 06Cr19Ni10 | 06Cr17Ni12Mo2 | 06Cr17Ni12Mo2 |
11 | 螺 母 | 30CrMo | 06Cr19Ni10 | 06Cr19Ni10 | 06Cr17Ni12Mo2 | 06Cr17Ni12Mo2 |
保温放料阀技术规范
公称压力PN(MPa) | 0.6 | 1.0 | 1.6 | 2.5 | 2.0 |
壳体强度试验压力(MPa) | 0.9 | 1.5 | 2.4 | 3.75 | 3.0 |
高压水密封试验压力(MPa) | 0.66 | 1.1 | 1.76 | 2.75 | 2.2 |
低压气密封试验压力(MPa) | 0.6 | 0.6 | 0.6 | 0.6 | 0.6 |
设计制造 | JB/T 11489-2013 放料用截止阀 | ||||
结构长度 | 按GB/T 12221、ASME B16.10的规定或按订货合同要求 | ||||
连接法兰 | JB/T 79、GB/T 9113、HG/T 20592、HG/T 20615、SH/T 3406、ASME B16.5等 | ||||
检验试验 | JB/T 13458-2018 保温夹套阀门 | ||||
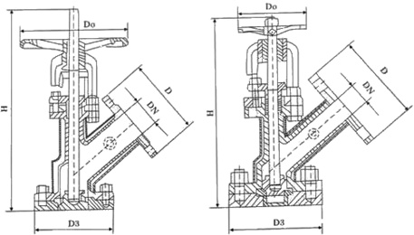
保温放料阀外型尺寸
公称压力 PN(MPa) | 公称通径 DN(mm) | 上展式尺寸(mm) | 下展式尺寸(mm) | ||||
D | D3 | H | D | D3 | H | ||
1.6 | 25 | 115 | 115 | 270 | 115 | 135 | 225 |
32 | 135 | 135 | 285 | 135 | 145 | 300 | |
40 | 145 | 145 | 355 | 145 | 160 | 340 | |
50 | 160 | 160 | 370 | 160 | 180 | 345 | |
65 | 180 | 180 | 465 | 180 | 195 | 425 | |
80 | 195 | 195 | 480 | 195 | 215 | 445 | |
100 | 215 | 215 | 590 | 215 | 245 | 535 | |
125 | 245 | 245 | 730 | 245 | 280 | 585 | |
150 | 280 | 280 | 775 | 280 | 335 | 665 | |
200 | 335 | 335 | — | 335 | 405 | — | |
保温放料阀结构图

如果你需订购我放料阀产品,咨询时烦请提供型号数据,公称通径、公称压力、阀体材质、使用介质、介质温度法兰标准等,本产品有上展式、下展式和柱塞式三种,如有特殊要求,咨询时请详细说明。