HXF2带双接管阻火呼吸阀产品概述
HXF2带双接管阻火呼吸阀的吸入和呼出口采用所需的接管设计,一般安装在固定储罐顶部用于防止真空及超压对罐体的损坏,它不仅能对石油储罐内外压差进行自动调节,而且能减少罐内介质挥发损耗。该阀是利用弹簧限位阀板,由正负压力决定或呼或吸,它具有泄放正压和负压两方面功能,当罐内承受正压时,呼气阀打开呼出气体,泄放正压;当油罐承受负压时,吸气阀打开吸入气体,泄放负压,由此保证压力在范围之内,确保罐体安全。本产品集合了呼吸阀与储罐阻火器的双重作用,具有体积小、重量轻、结构紧凑、通气量大、泄漏量小等特点,且密封性能好,特别是高空作业时,检修、清洗阀内的阻火芯件及正负压阀盘非常方便。
HXF2带双接管阻火呼吸阀部件材料
序号 | 部件名称 | 材料名称 | ||||
1 | 阀 体 | WCB | CF8 | CF3 | CF8M | CF3M |
2 | 阀 盖 | WCB | CF8 | CF3 | CF8M | CF3M |
3 | 导 杆 | 304 | 304 | 304L | 316 | 316L |
4 | 阀 座 | 304 | 304 | 304L | 316 | 316L |
5 | 阀 盘 | 304 | 304 | 304L | 316 | 316L |
6 | 阻 火 层 | 304 | 304 | 304L | 316 | 316L |
7 | 密 封 件 | PTFE | PTFE | PTFE | PTFE | PTFE |
8 | 接 管 | 20# | 304 | 304L | 316 | 316L |
HXF2带双接管阻火呼吸阀技术规范
呼吸阀开启压力等级代号 | A | B | C | D | E |
呼吸阀开启压力ps(Pa) | +355,-295 | +665,-295 | +980,-295 | +1375,-295 | +1765,-295 |
设计制造 | SY/T 0511.1-2010 石油储罐附件 第1部分:呼吸阀 | ||||
法兰标准 | JB/T 79、GB/T 9113、HG/T 20592、HG/T 20615、SH/T 3406、ASME B16.5等 | ||||
检验试验 | SY/T 0511.1-2010 石油储罐附件 第1部分:呼吸阀 | ||||
操作温度 | -30℃ ~ 60℃ | ||||
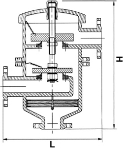
HXF2带双接管阻火呼吸阀外型尺寸
公称压力 PN(MPa) | 公称通径 DN(mm) | 尺寸(mm) | ||||||
L | H | D | D1 | D2 | C-f | n-d | ||
1.0 | 50 | 320 | 650 | 165 | 125 | 102 | 18-2 | 4-ø18 |
80 | 450 | 750 | 200 | 160 | 138 | 20-2 | 8-ø18 | |
100 | 450 | 950 | 220 | 180 | 158 | 20-2 | 8-ø18 | |
150 | 620 | 1100 | 285 | 240 | 212 | 22-2 | 8-ø22 | |
200 | 750 | 1200 | 340 | 295 | 268 | 24-2 | 8-ø22 | |
250 | 850 | 1500 | 395 | 350 | 320 | 26-2 | 12-ø22 | |
300 | 1100 | 1750 | 445 | 400 | 370 | 26-2 | 12-ø22 | |
注:以上为HG/T 20592-2009标准PN10整体钢制管法兰尺寸。 | ||||||||
HXF2带双接管阻火呼吸阀结构图

如果你需订购我厂呼吸阀产品,咨询时烦请提供规格型号,公称通径、公称压力,阀体和内件材质,环境操作温度、使用介质、正压(呼出压力)、负压(吸入压力)、法兰标准等,如有其他技术要求,咨询时请详细说明。