防内漏篮式过滤器产品概述
防内漏篮式过滤器是我公司为解决普通篮式过滤器,由于内部结构简单,滤篮与筒体连接面密封不严,容易出现不同程度的渗漏,从而造成介质纯度达不到,直接影响产品的质量而设计制造的。本产品有插管直通式和高低接管式两种结构,特别适用于炼油、化工、化纤、食品、制药等更不应出现过滤内漏现象的工艺管道中。
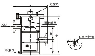
高低接管防内漏篮式过滤器过滤结构因滤筒密封环是水平成型,在环的中间加工一条半圆槽,嵌入氟橡胶O形圈作为密封件,组装时将滤篮放在滤筒内,滤篮外沿圆环刚好压在O形圈上面,然后摧动压篮调节螺丝与上盖顶紧,可凭借氟橡胶反弹力,就能保证密封的严密性,不会出现内漏现象。
插管直通防内漏篮式过滤器进出口成同一水平线,进口管子直接伸入筒体内与滤篮相连接,管子的接口与滤篮的接口先加工成雄雌插口,端面嵌入O形环氟橡胶密封圈,组装时,将雄端推入雌口,对准密封环,然后将筒体内壁上的活动顶环扣紧,摧紧上盖调节螺丝,使整体稳固、严密杜绝渗漏。当过滤器到一定压差需要清洗时,先打开上盖,将活动顶环拉回原位,再将滤筒从雌口中推出、提取即可清洗,处理干净后重新装入即可。
防内漏篮式过滤器部件材料
序号 | 部件名称 | 材料名称 | ||||
1 | 筒 体 | Q235B | 20# | S30408 | S31608 | S31603 |
2 | 高低接管 | Q235B | 20# | S30408 | S31608 | S31603 |
3 | 法 兰 | Q235B | 20# | S30408 | S31608 | S31603 |
4 | 筒 体 盖 | Q235B | 20# | S30408 | S31608 | S31603 |
5 | O 形 圈 | NBR/FPM | NBR/FPM | NBR/FPM | NBR/FPM | NBR/FPM |
6 | 滤 篮 | 304 | 304 | 304 | 316 | 316L |
7 | 螺 栓 | 35CrMoA | 35CrMoA | 304 | 316 | 316 |
8 | 螺 母 | 30CrMo | 30CrMo | 304 | 316 | 316 |
9 | 排放螺塞 | 304 | 304 | 304 | 316 | 316L |
防内漏篮式过滤器性能规范
公称压力PN(MPa) | 1.6 | 2.5 | 4.0 | 2.0 | 5.0 |
壳体试验压力(MPa) | 2.4 | 3.75 | 6.0 | 3.0 | 7.5 |
高压液密封试验压力(MPa) | 1.76 | 2.75 | 4.4 | 2.2 | 5.5 |
低压气密封试验压力(MPa) | 0.6 | 0.6 | 0.6 | 0.6 | 0.6 |
设计制造 | SH/T 3411-1999、JB/T 7538-2016、HG/T 21637-1991 | ||||
法兰标准 | JB/T 82、GB/T 9115、HG/T 20592、HG/T 20615、SH/T 3406、ANSI B16.5等 | ||||
检验验收 | SH/T 3411-1999、JB/T 7538-2016、HG/T 21637-1991 | ||||
过滤精度 | 5目-500目 | ||||
防内漏篮式过滤器外型尺寸
公称压力 PN(mm) | 公称通径 DN(mm) | 尺寸(mm) | ||||
Φ | L | H1 | H2 | H3 | ||
1.0-4.0 (Class150)2.0 (Class300)5.0 | 25 | 76 | 220 | 110 | 70 | 280 |
32 | 76 | 220 | 110 | 70 | 285 | |
40 | 114 | 280 | 120 | 100 | 340 | |
50 | 114 | 280 | 120 | 100 | 340 | |
65 | 140 | 330 | 160 | 110 | 400 | |
80 | 168 | 340 | 180 | 140 | 460 | |
100 | 219 | 420 | 220 | 170 | 550 | |
150 | 273 | 500 | 310 | 220 | 720 | |
200 | 325 | 560 | 390 | 280 | 900 | |
250 | 426 | 660 | 480 | 320 | 1070 | |
300 | 478 | 750 | 640 | 400 | 1360 | |
防内漏篮式过滤器结构图

如果你需订购我厂篮式过滤器产品,咨询时烦请提供型号数据,公称通径、公称压力、壳体材质、滤芯材质及过滤精度等,本产品有插管直通防内漏篮式过滤器和高低接管防内漏篮式过滤器两种,如特殊要求,请详细说明。