电动卸灰球阀产品概述
电动卸灰球阀主要由阀体、阀盖、球体、密封圈、阀轴、阀座、电动装置等组成。关阀时,接通电源,按阀关按钮,启动电动装置驱动阀轴,带动球体顺时针方向旋转,使阀关闭;开阀则反之。本产品密封圈采用软硬层叠式金属片组合密封,具有金属硬密封和弹性密封的双重优点,该阀密封带自动补偿装置,具有非常优良的密封性能,其开闭快速、性能可靠、能确保卸灰输送管道系统的最有效工作。
电动卸灰球阀适用于冶金系统高炉卸灰装置的管道上使用,并应作垂直位置安装,以保证炉灰能顺畅流卸,使用时必须全开或全关,禁止作节流使用。
电动卸灰球阀部件材料
序号 | 部件名称 | 材料名称 | ||||
1 | 阀 体 | WCB | CF8 | CF3 | CF8M | CF3M |
2 | 连 接 体 | WCB | CF8 | CF3 | CF8M | CF3M |
3 | 球 体 | A105+ENP | 304 | 304L | 316 | 316L |
4 | 阀 座 | 特制增强耐磨耐高温四氟、对位聚苯PPL、聚醚醚酮PEEK、不锈钢+硬质合金 | ||||
5 | 阀 杆 | 2Cr13 | 304 | 304L | 316 | 316L |
6 | 固 定 轴 | 2Cr13 | 304 | 304L | 316 | 316L |
7 | 填料压盖 | WCB | CF8 | CF3 | CF8M | CF3M |
8 | 填 料 | 柔性石墨环、V形聚四氟乙烯、碳纤维编织 | ||||
9 | 螺 栓 | 35CrMoA | 304 | 304L | 316 | 316L |
10 | 螺 母 | 35# | 304 | 304L | 316 | 316L |
11 | 电动装置 | 组合件 | 组合件 | 组合件 | 组合件 | 组合件 |
电动卸灰球阀技术规范
公称压力PN | 2.5 | 6 | 10 | 16 | 25 |
壳体试验压力(MPa) | 0.375 | 0.9 | 1.5 | 2.4 | 3.75 |
高压液密封试验压力(MPa) | 0.275 | 0.66 | 1.1 | 1.76 | 2.75 |
低压气密封试验压力(MPa) | 0.275 | 0.66 | 0.6 | 0.6 | 0.6 |
设计制造 | GB/T12237-2007 石油、石化及相关工业用的钢制球阀 | ||||
结构长度 | GB/T12221-2005 金属阀门结构长度 | ||||
法兰尺寸 | JB/T 79、GB/T 9113、HG/T 20592、HG/T 20615、SH/T 3406、ASME B16.5等 | ||||
检验试验 | GB/T 13927-2008 工业阀门压力试验 | ||||
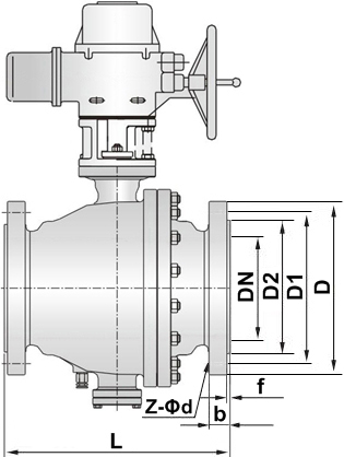
电动卸灰球阀外型尺寸
公称压力 PN | 公称通径 DN | 尺寸(mm) | ||||||
L | D | D1 | D2 | b | f | Z-Φd | ||
2.5 ~ 6 | 25 | 165 | 100 | 75 | 60 | 14 | 2 | 4-12 |
32 | 180 | 120 | 90 | 70 | 16 | 2 | 4-14 | |
40 | 190 | 130 | 100 | 80 | 16 | 3 | 4-14 | |
50 | 216 | 140 | 110 | 90 | 16 | 3 | 4-14 | |
65 | 241 | 160 | 130 | 110 | 16 | 3 | 4-14 | |
80 | 283 | 190 | 150 | 125 | 18 | 3 | 4-18 | |
100 | 305 | 210 | 170 | 145 | 18 | 3 | 4-18 | |
125 | 356 | 240 | 200 | 175 | 20 | 3 | 8-18 | |
150 | 400 | 265 | 225 | 200 | 20 | 3 | 8-18 | |
200 | 500 | 320 | 280 | 258 | 22 | 3 | 8-18 | |
250 | 600 | 375 | 335 | 312 | 24 | 3 | 12-18 | |
300 | 700 | 440 | 395 | 365 | 24 | 4 | 12-22 | |
350 | 800 | 490 | 445 | 415 | 26 | 4 | 12-22 | |
400 | 900 | 540 | 495 | 465 | 28 | 4 | 16-22 | |
500 | 1000 | 645 | 600 | 570 | 30 | 4 | 20-22 | |
10 ~ 16 | 25 | 165 | 115 | 85 | 65 | 14 | 2 | 4-14 |
32 | 180 | 135 | 100 | 78 | 16 | 2 | 4-18 | |
40 | 190 | 145 | 110 | 85 | 16 | 3 | 4-18 | |
50 | 216 | 160 | 125 | 100 | 16 | 3 | 4-18 | |
65 | 241 | 180 | 145 | 120 | 18 | 3 | 4-18 | |
80 | 283 | 195 | 160 | 135 | 20 | 3 | 8-18 | |
100 | 305 | 215 | 180 | 155 | 20 | 3 | 8-18 | |
125 | 356 | 245 | 210 | 185 | 22 | 3 | 8-18 | |
150 | 394 | 280 | 240 | 210 | 24 | 3 | 8-23 | |
200 | 457 | 335 | 295 | 265 | 26 | 3 | 12-23 | |
250 | 533 | 405 | 355 | 320 | 30 | 3 | 12-25 | |
300 | 610 | 460 | 410 | 375 | 30 | 4 | 12-25 | |
350 | 686 | 520 | 470 | 435 | 34 | 4 | 16-25 | |
400 | 762 | 580 | 525 | 485 | 36 | 4 | 16-30 | |
450 | 864 | 640 | 585 | 545 | 40 | 4 | 20-30 | |
500 | 914 | 705 | 650 | 608 | 44 | 4 | 20-34 | |
600 | 1067 | 840 | 770 | 718 | 48 | 5 | 20-41 | |
700 | 1245 | 910 | 840 | 788 | 50 | 5 | 24-41 | |
以上为我公司国标法兰连接卸灰球阀尺寸参数。如需其他尺寸,请来电咨询我司销售技术人员! | ||||||||
电动卸灰球阀结构图

如果你需订购我厂卸灰球阀产品,咨询时烦请注明产品型号,如无法提供型号数据,请说明公称通径、公称压力、阀体材质、法兰执行标准、电动执行器类型,是否有其他技术要求等,我公司可按客户需求进行定制。