电动切断球阀产品概述
电动切断球阀由对焊、承插焊、螺纹或法兰连接球阀和电动执行器组成,其电装输入电压为单相220V或三相380V、频率50Hz/60Hz的电源即可对球阀的开启和关闭进行控制,并通过阀门的全开或全关,实现对管路内介质的接通或切断。该阀可以远距离集中控制,操作人员只需坐在控制室就能控制生产过程而不需要亲临现场去人工手动操作球阀的开关,现场只需铺设一些管线连接控制室和驱动装置,电源通过电线直接带动电动执行机构工作,从而在阀杆上端施加一定的转矩并传递给球体,使它旋转90度,达到启闭通道的目的。本产品主要用于管路中介质的远程开、关(流通、截断介质)控制,特适合用在冶金、环保、制药、造纸、石油、石化、化工、天然气及相关工业自动化控制系统中。
电动切断球阀部件材料
序号 | 部件名称 | 材料名称 | ||||
1 | 阀 体 | A216 WCB | A351 CF8 | A351 CF3 | A351 CF8M | A351 CF3M |
2 | 连 接 体 | A216 WCB | A351 CF8 | A351 CF3 | A351 CF8M | A351 CF3M |
3 | 球 体 | A105+ENP | A182 F304 | A182 F304L | A182 F316 | A182 F316L |
4 | 阀 座 | RPTFE、PTFE、TEFLON、NYLON、PPL、PEEK、DEVLON、不锈钢+硬质合金 | ||||
5 | 阀 杆 | A182 F6a | A182 F304 | A182 F304L | A182 F316 | A182 F316L |
6 | 固 定 轴 | A182 F6a | A182 F304 | A182 F304L | A182 F316 | A182 F316L |
7 | 填 料 | 柔性石墨环、V形聚四氟乙烯、碳纤维编织 | ||||
8 | 填料压盖 | A216 WCB | A351 CF8 | A351 CF3 | A351 CF8M | A351 CF3M |
9 | 螺 柱 | A193 B7 | A193 B8 | A193 B8 | A193 B8M | A193 B8M |
10 | 螺 母 | A194 2H | A194 8 | A194 8 | A194 8M | A194 8M |
电动切断球阀技术规范
公称压力PN(MPa) | 1.6 | 2.5 | 4.0 | 2.0 | 5.0 |
壳体试验压力(MPa) | 2.4 | 3.75 | 6.0 | 3.0 | 7.5 |
液体高压密封试验压力(MPa) | 1.76 | 2.75 | 4.4 | 2.2 | 5.5 |
气体低压密封试验压力(MPa) | 0.6 | 0.6 | 0.6 | 0.6 | 0.6 |
设计制造 | GB/T 12237、GB/T 21385、API 6D、API 608、ASME B16.34 | ||||
结构长度 | GB/T 12221、API 6D、ASME B16.10 | ||||
法兰尺寸 | JB/T 79、GB/T 9113、HG/T 20592、HG/T 20615、SH/T 3406、ASME B16.5等 | ||||
检验试验 | JB/T 9092、GB/T 26480、API 6D、API 598 | ||||
控制方式 | 开关到位灯(开关两位控制)、无源触点信号、智能调节(4~20mA模拟量信号控制) | ||||
电源电压 | 220VAC或380V | ||||
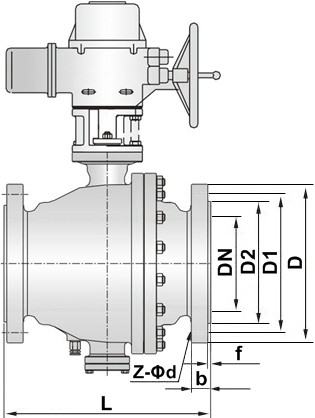
电动切断球阀外型尺寸
公称压力 Class | 公称尺寸 NPS | 尺寸(mm) | |||||
L | D | D1 | D2 | b-f | Z-ød | ||
150 | ½ | 108 | 90 | 60.3 | 34.9 | 9.6-1.6 | 4-16 |
¾ | 117 | 100 | 69.9 | 42.9 | 11.2-1.6 | 4-16 | |
1 | 127 | 110 | 79.4 | 50.8 | 12.7-1.6 | 4-16 | |
1 ¼ | 140 | 115 | 88.9 | 63.5 | 14.3-1.6 | 4-16 | |
1 ½ | 165 | 125 | 98.4 | 73.0 | 15.9-1.6 | 4-16 | |
2 | 178 | 150 | 120.7 | 92.1 | 17.5-1.6 | 4-19 | |
2 ½ | 190 | 180 | 139.7 | 104.8 | 20.7-1.6 | 4-19 | |
3 | 203 | 190 | 152.4 | 127.0 | 22.3-1.6 | 4-19 | |
4 | 229 | 230 | 190.5 | 157.2 | 22.3-1.6 | 8-19 | |
5 | 356 | 255 | 215.9 | 185.7 | 22.3-1.6 | 8-22.5 | |
6 | 394 | 280 | 241.3 | 215.9 | 23.9-1.6 | 8-22.5 | |
8 | 457 | 345 | 298.5 | 269.9 | 27.0-1.6 | 8-22.5 | |
10 | 533 | 405 | 362.0 | 323.8 | 28.6-1.6 | 12-25.5 | |
12 | 610 | 485 | 431.8 | 381.0 | 30.2-1.6 | 12-25.5 | |
14 | 686 | 535 | 476.3 | 412.8 | 33.4-1.6 | 12-28.5 | |
16 | 762 | 595 | 539.8 | 469.9 | 35.0-1.6 | 16-28.5 | |
18 | 864 | 635 | 577.9 | 533.4 | 38.1-1.6 | 16-32 | |
20 | 914 | 700 | 635.0 | 584.2 | 41.3-1.6 | 20-32 | |
22 | 1016 | 750 | 692.2 | 641.4 | 44.5-1.6 | 20-35 | |
24 | 1067 | 815 | 749.3 | 692.2 | 46.1-1.6 | 20-35 | |
以上为ASME B16.5标准Class150法兰连接固定球球阀尺寸。如需其他尺寸,请来电咨询! | |||||||
电动切断球阀结构图

如果你需订购我厂电动球阀产品,咨询时烦请注明产品型号,如无法提供型号数据,请说明公称通径、公称压力、阀体材质、内件材质、介质温度,电动执行器类型,其有普通开关型和调节型等,本产品有软密封和金属硬密封两种,如有其他技术要求,咨询价格时烦请注明。