二片式夹套保温球阀产品概述
二片式夹套保温球阀具有良好的保温保冷特性,且阀门的通径与管径一致,同时又能有效降低管路中介质热量损失,其采用二片式浮动球阀结构形式,夹套为钢板焊接,比铸造的更加耐压牢固,允许蒸汽或冷水的工作压力为1.0MPa,特适用于石油、化工、冶金、制药、食品等各类系统中输送常温下会凝固的高粘度介质。
二片式夹套保温球阀采用了蒸气夹套保温,故即使外界温度降到零度以下,该阀仍操作灵活,保证输油管道能启能闭,此优点是一般控制阀门所没有的,它是重油输送管道理想的控制阀门,此产品还可根据用户需要在夹套中注入蒸气、导热油、冷却水、冷气等,使整个阀门常温或降温达到所需要的温度,防止介质结晶。
二片式夹套保温球阀部件材料
序号 | 部件名称 | 材料名称 | ||||
1 | 左 阀 体 | WCB | CF8 | CF3 | CF8M | CF3M |
2 | 右 阀 体 | WCB | CF8 | CF3 | CF8M | CF3M |
3 | 球 体 | 2Cr13 | 304 | 304L | 316 | 316L |
4 | 阀 座 | RPTFE、PTFE、TEFLON、NYLON、PPL、PEEK、DEVLON、不锈钢+硬质合金 | ||||
5 | 阀 杆 | 2Cr13 | 304 | 304L | 316 | 316L |
7 | 填料压盖 | WCB | CF8 | CF3 | CF8M | CF3M |
8 | 填 料 | 柔性石墨环、V形聚四氟乙烯、碳纤维编织 | ||||
9 | 保温夹套 | Q235B | 304 | 304 | 304 | 304 |
10 | 螺 柱 | 35CrMoA | 304 | 304 | 316 | 316 |
11 | 螺 母 | 30CrMoA | 304 | 304 | 316 | 316 |
二片式夹套保温球阀技术规范
公称压力PN | 10 | 16 | 25 | 40 | 64 |
壳体试验压力(MPa) | 1.5 | 2.4 | 3.75 | 6.0 | 9.6 |
高压液密封试验压力(MPa) | 1.1 | 1.76 | 2.75 | 4.4 | 7.04 |
低压气密封试验压力(MPa) | 0.6 | 0.6 | 0.6 | 0.6 | 0.6 |
设计制造 | JB/T 13458-2018 保温夹套阀门 | ||||
结构长度 | GB/T 12221-2005 金属阀门结构长度 | ||||
法兰尺寸 | JB/T 79、GB/T 9113、HG/T 20592、HG/T 20615、SH/T 3406 | ||||
检验试验 | JB/T 13458-2018 保温夹套阀门 | ||||
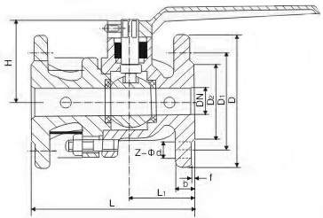
二片式夹套保温球阀外型尺寸
公称压力 PN(MPa) | 公称尺寸 DN(mm) | 尺寸(mm) | |||||
L | D | D1 | D2 | b-f | Z-ød | ||
1.6 | 15 | 130 | 95 | 65 | 45 | 16-2 | 4-14 |
20 | 140 | 105 | 75 | 58 | 18-2 | 4-14 | |
25 | 150 | 115 | 85 | 68 | 18-2 | 4-14 | |
32 | 165 | 140 | 100 | 78 | 18-2 | 4-18 | |
40 | 180 | 150 | 110 | 88 | 18-2 | 4-18 | |
50 | 200 | 165 | 125 | 102 | 18-2 | 4-18 | |
65 | 220 | 185 | 145 | 122 | 18-2 | 8-18 | |
80 | 250 | 200 | 160 | 138 | 20-2 | 8-18 | |
100 | 280 | 220 | 180 | 158 | 20-2 | 8-18 | |
125 | 320 | 250 | 210 | 188 | 22-2 | 8-18 | |
150 | 360 | 285 | 240 | 212 | 22-2 | 8-22 | |
200 | 400 | 340 | 295 | 268 | 24-2 | 12-22 | |
250 | 450 | 405 | 355 | 320 | 26-2 | 12-26 | |
注:以上为HG/T 20592-2009标准PN16整体钢制管法兰连接浮动球球阀尺寸。如需其他尺寸,请来电咨询! | |||||||
二片式夹套保温球阀结构图

如果你需订购我厂保温球阀产品,咨询时烦请注明产品型号,如无法提供型号数据,请说明公称通径、公称压力、阀体材质、内件材料、介质温度、法兰标准。