120度Y型三通球阀产品概述
120度Y型三通球阀的三个通道之间设计成互成120°的夹角,其通过球体在120°之间的旋转可以实现两种不同的流向切换。本产品包括阀体,阀体中设有球体以及具有三个管口的流体通道,球体内设有两端开口的连接通道,阀体上的进口与任意出口随着球体的转动实现与连接通道的导通或关闭,连接通道的任意径向截面都为与管口内径一致的圆,连接通道的两端开口径向截面的法向夹角为120°,流体通道的三个开口设有阀座,阀座的通孔构成管口,阀座朝向球体的一端与球体的外周面之间设有压紧块,压紧块朝向球体的侧面具有与球体外周面的弧面配合的抵接面,压紧块的另一侧与阀座之间设有内密封结构。
120度Y型三通球阀可以实现二种不同的流向切换,且密封结构牢固耐用,使用寿命长,流体流动阻力小,便于三通管道的清理。
120度Y型三通球阀部件材料
序号 | 部件名称 | 材料名称 | ||||
1 | 阀 体 | A216 WCB | A351 CF8 | A351 CF3 | A351 CF8M | A351 CF3M |
2 | 阀 盖 | A216 WCB | A351 CF8 | A351 CF3 | A351 CF8M | A351 CF3M |
3 | 阀 座 | RPTFE、PTFE、TEFLON、NYLON、PPL、PEEK、DEVLON、不锈钢+硬质合金 | ||||
4 | 球 体 | A351 CF8 | A351 CF8 | A351 CF3 | A351 CF8M | A351 CF3M |
5 | 阀 杆 | A351 CF8 | A351 CF8 | A351 CF3 | A351 CF8M | A351 CF3M |
6 | 填 料 | GRAPHITE、RPTFE、PTFE、TEFLON、PPL | ||||
7 | 螺 栓 | A193 B7 | A193 B8 | A193 B8 | A193 B8M | A193 B8M |
8 | 螺 母 | A194 2H | A194 8 | A194 8 | A194 8M | A194 8M |
120度Y型三通球阀技术规范
公称压力PN(MPa) | 1.6 | 2.5 | 4.0 | 2.0 | 5.0 |
壳体强度试验压力(MPa) | 2.4 | 3.75 | 6.0 | 3.0 | 7.5 |
高压液密封试验压力(MPa) | 1.76 | 2.75 | 4.4 | 2.2 | 5.5 |
低压气密封试验压力(MPa) | 0.6 | 0.6 | 0.6 | 0.6 | 0.6 |
设计制造 | GB/T 12237、GB/T 21385、API 608、ASME B16.34 | ||||
结构长度 | 按本厂标准Q/CB的规定或按订货合同要求 | ||||
连接法兰 | JB/T 79、GB/T 9113、HG/T 20592、HG/T 20615、SH/T 3406、ASME B16.5 | ||||
检验试验 | GB/T 26480、JB/T 9092、API 598 | ||||
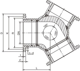
120度Y型三通球阀外型尺寸
公称压力 PN | 公称通径 DN | 尺寸(mm) | |||||
L | D | K | R | C-f | n-d | ||
16 ~ 40 (Class150)20 (Class300)50 | 50 | 110 | 160 | 125 | 100 | 16-3 | 4-ø18 |
65 | 130 | 180 | 145 | 120 | 18-3 | 4-ø18 | |
80 | 150 | 195 | 160 | 135 | 20-3 | 8-ø18 | |
100 | 170 | 215 | 180 | 155 | 20-3 | 8-ø18 | |
125 | 190 | 245 | 210 | 185 | 22-3 | 8-ø18 | |
150 | 210 | 280 | 240 | 210 | 24-3 | 8-ø23 | |
200 | 235 | 335 | 295 | 265 | 26-3 | 12-ø23 | |
250 | 290 | 405 | 355 | 320 | 30-3 | 12-ø25 | |
300 | 350 | 460 | 410 | 375 | 30-4 | 12-ø25 | |
以上为部分JB/T 79-2015标准PN16法兰连接外形尺寸。如需其他规格尺寸,请咨询汗越阀门技术部! | |||||||
120度Y型三通球阀结构图

如果你需订购我厂三通球阀产品,咨询时烦请提供公称通径、公称压力、阀体材料、内件材料、介质温度、法兰标准和法兰密封面形式等,本产品驱动装置可选用气动、电动、蜗轮及手动等。