电动放料阀产品简介
电动放料阀由阀体、阀瓣、阀杆、阀座、支架和直行程电动执行机构等部件组成,其可以电动遥控控制放料阀的开关,实现对罐内物料的自动排放,也可就地通过转动电装上的手轮手动驱动,带行程开关信号灯和就地开度指示。该阀的常见结构形式分为上展式和下展式,它的运动件阀杆通过锁紧螺母连接阀瓣,阀芯贴合阀座呈密封状态,保障腔内介质不泄漏,阀杆接受电装输出轴上、下位移,使阀芯实施开或关动作,以实现自动排放物料的目的。本产品通常与反应釜配套使用,一般设计阀芯座兼备釜底法兰的功能。
电动放料阀以220V交流单相可逆异步电动机(含齿轮减速)或其他类型电动机为执行器,智能控制器为其设置智能比例式伺服电路,接收控制系统或调节器的4~20mA DC或1~5V DC信号,经A/D转换送到CPU进行运算处理,同时CPU与来自电装的开度信号及上、下限位置进行比较后驱动电机转动,通过齿轮减速后推动输出轴作上、下位移,从而驱动阀杆带动启闭件上升或下降,以实现输入信号对阀门开关的控制以及流量调节的作用。本产品电动执行机构分为调节型和开关型,这两种都可以选择防爆型或普通型。
电动放料阀部件材料
序号 | 部件名称 | 材料名称 | ||||
1 | 阀 体 | WCB | CF8 | CF3 | CF8M | CF3M |
2 | 支 架 | WCB | CF8 | CF3 | CF8M | CF3M |
3 | 阀 座 | WCB | CF8 | CF3 | CF8M | CF3M |
4 | 阀 瓣 | WCB | CF8 | CF3 | CF8M | CF3M |
5 | 填 料 | GRAPHITE、RPTFE、PTFE、TEFLON、PPL | ||||
6 | 阀 杆 | 2Cr13 | 06Cr19Ni10 | 022Cr19Ni10 | 06Cr17Ni12Mo2 | 022Cr17Ni12Mo2 |
7 | 垫 片 | GRAPHITE | PTFE | PTFE | PTFE | PTFE |
8 | 螺 柱 | 35CrMoA | 06Cr19Ni10 | 06Cr19Ni10 | 06Cr17Ni12Mo2 | 06Cr17Ni12Mo2 |
9 | 螺 母 | 30CrMo | 06Cr19Ni10 | 06Cr19Ni10 | 06Cr17Ni12Mo2 | 06Cr17Ni12Mo2 |
电动放料阀技术规范
公称压力PN(MPa) | 0.6 | 1.0 | 1.6 | 2.5 | 2.0 |
壳体强度试验压力(MPa) | 0.9 | 1.5 | 2.4 | 3.75 | 3.0 |
高压水密封试验压力(MPa) | 0.66 | 1.1 | 1.76 | 2.75 | 2.2 |
低压气密封试验压力(MPa) | 0.6 | 0.6 | 0.6 | 0.6 | 0.6 |
设计制造 | JB/T 11489-2013 放料用截止阀 | ||||
法兰标准 | JB/T 79、GB/T 9113、HG/T 20592、HG/T 20615、SH/T 3406、ASME B16.5等 | ||||
检验试验 | JB/T 11489-2013 放料用截止阀 | ||||
工作温度 | -60℃ ~ 232℃ | ||||
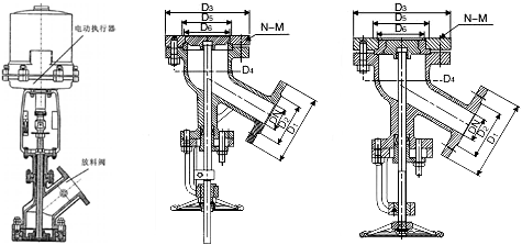
电动放料阀外型尺寸
公称压力 PN(MPa) | 公称通径 DN(mm) | 上展式尺寸(mm) | 下展式尺寸(mm) | ||||||||||
D1 | D2 | D3 | D4 | D5 | D6 | D1 | D2 | D3 | D4 | D5 | D6 | ||
1.6 | 25 | 115 | 85 | 115 | 85 | — | — | 115 | 85 | 135 | 100 | 70 | 40 |
32 | 135 | 100 | 135 | 100 | 70 | 40 | 135 | 100 | 145 | 110 | 75 | 55 | |
40 | 145 | 110 | 145 | 110 | 70 | 50 | 145 | 110 | 160 | 125 | 80 | 60 | |
50 | 165 | 125 | 160 | 125 | 80 | 60 | 160 | 125 | 180 | 145 | 100 | 80 | |
65 | 180 | 145 | 180 | 145 | 95 | 75 | 180 | 145 | 195 | 160 | 135 | 110 | |
80 | 195 | 160 | 195 | 160 | 110 | 90 | 195 | 160 | 225 | 190 | 160 | 135 | |
100 | 215 | 180 | 215 | 180 | 130 | 110 | 215 | 180 | 260 | 225 | 200 | 175 | |
125 | 245 | 210 | 245 | 210 | 160 | 130 | 245 | 210 | 280 | 245 | 200 | 175 | |
150 | 280 | 240 | 280 | 240 | 190 | 150 | 280 | 240 | 335 | 295 | 240 | 210 | |
200 | 335 | 295 | 335 | 295 | 240 | 200 | 335 | 295 | 405 | 355 | 285 | 240 | |
电动放料阀结构图

本产品按结构型式的不同分为电动上展式放料阀、电动下展式放料阀和电动放料球阀等。如果你需订购我厂放料阀,咨询时烦请说明公称通径、公称压力、阀体和内件材质、使用介质及温度、连接形式及电动执行器类型等。