CF41汽水分离器产品简介
CF41汽水分离器是一种由壳体、排液阀盖、螺塞及垫片等组成的挡板式汽水分离器。当大量含水的湿蒸汽从进汽口流入壳体内,在撞击壳内壁螺旋形挡板后流动方向不断改变,其中所夹带的水分及其他液滴由于有较大的质量和惯性就会与较轻的蒸汽分离,并沿倾斜壳内壁凝结聚集,然后落入底部排液口排出,而清洁干燥的蒸汽则绕过挡板从出汽口流出,被送往用汽设备或管道。本产品能减少蒸汽中水的含量,提高设备的热效率,具有结构简单、使用寿命长和免维护的特点。
CF41汽水分离器主要参考欧洲压力设备指令97/23/EC的要求设计制造,适用于分离蒸汽,压缩空气或气体系统中的液滴,配上绝热夹套可提高其工作性能。对蒸汽中含有空气的情况,应将合适的排空阀装在排气口,如果不安装排空阀,必须拿掉塑料保护套,装上螺塞。本产品应安装在水平管道上且排液口垂直向下,为确保被分离的液体迅速排放,应在壳体底部的排放口处连接一套合适的排液阀或疏水阀组合。
CF41汽水分离器部件材料
序号 | 零件名称 | 材料名称 | ||||
1 | 壳 体 | A216 WCB | A351 CF8 | A351 CF3 | A351 CF8M | A351 CF3M |
2 | 检 查 孔 | A216 WCB | A351 CF8 | A351 CF3 | A351 CF8M | A351 CF3M |
3 | 螺 塞 | ASTM A105 | A182 F304 | A182 F304L | A182 F316 | A182 F316L |
4 | 垫 片 | GRAPHITE | GRAPHITE | GRAPHITE | GRAPHITE | GRAPHITE |
5 | 排 水 孔 | A216 WCB | A351 CF8 | A351 CF3 | A351 CF8M | A351 CF3M |
6 | 排 水 塞 | ASTM A105 | A182 F304 | A182 F304L | A182 F316 | A182 F316L |
CF41汽水分离器性能规范
公称压力PN(MPa) | 1.6 | 2.5 | 4.0 | 2.0 | 5.0 |
壳体试验压力(MPa) | 2.4 | 3.75 | 6.0 | 3.0 | 7.5 |
高压液密封试验压力(MPa) | 1.76 | 2.75 | 4.4 | 2.2 | 5.5 |
低压气密封试验压力(MPa) | 0.6 | 0.6 | 0.6 | 0.6 | 0.6 |
设计制造 | 符合欧洲压力设备指令97/23/EC | ||||
法兰标准 | JB/T 79、GB/T 9113、HG/T 20592~20615、DIN EN 1092、ASME B16.5等 | ||||
检验验收 | 符合欧洲压力设备指令97/23/EC | ||||
压力试验 | JB/T 9092、GB/T 13927、BS 6755-1、API 598等 | ||||
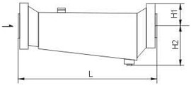
CF41汽水分离器外型尺寸
公称压力 PN(MPa) | 公称通径 DN(mm) | 尺寸(mm) | 检查孔 A(in) | 排水孔 B(in) | ||
L | H1 | H2 | ||||
0.6 ~ 2.5 (Class150) 2.0 | 20 | 320 | 53 | 100 | — | — |
25 | 320 | 58 | 100 | — | — | |
32 | 320 | 68 | 100 | — | — | |
40 | 405 | 73 | 140 | — | — | |
50 | 405 | 80 | 140 | — | — | |
65 | 465 | 90 | 180 | — | — | |
80 | 510 | 98 | 200 | — | — | |
100 | 510 | 108 | 200 | — | — | |
125 | 580 | 123 | 210 | — | — | |
150 | 580 | 140 | 210 | — | — | |
200 | 650 | 170 | 240 | — | — | |
CF41汽水分离器结构图

如果你需订购我厂汽水分离器产品,咨询时烦请说明公称通径、公称压力、主体材质、介质温度、法兰标准及法兰密封面形式等,如果工况条件允许的话,本产品应在干燥的环境中运行,不但可以提高设备的热工作效率,还能延长其使用寿命。