STC可调恒温式蒸汽疏水阀产品概述
STC可调恒温式蒸汽疏水阀是利用感温体内化学物质对温度的热胀、冷缩以及状态交换使得阀门自动开启和关闭,从而达到可连续自动地排出冷凝水,并有效地阻止蒸汽的逸出之目的,其感温体内装有感温混合物,它由感温剂、饱和剂、稳定剂及填充剂组成,常温下为固态,装配好的蒸汽疏水阀有一定的开度,开始运行时,空气和凝结水可以排出,随着温度的升高,感温剂受热膨胀,通过弹性密封件推动顶杆,使阀门开度变小,温度继续升高,感温混和物由固态变为液态,产生了很大的膨胀力,使得阀门严密关闭,当凝结水温度降低后,感温物质冷缩,阀门又打开。本产品感温混和物采用不同配方,分为三种排水温度区间,不同规格,以满足不同的要求,而同一只阀的排水温度及排量又可用调节螺钉进行调节。
STC可调恒温式蒸汽疏水阀部件材料
序号 | 部件名称 | 材料名称 | ||||
1 | 阀 体 | A216 WCB | A351 CF8 | A351 CF3 | A351 CF8M | A351 CF3M |
2 | 阀 盖 | A216 WCB | A351 CF8 | A351 CF3 | A351 CF8M | A351 CF3M |
3 | 感温元件 | A240 304 | A240 304 | A240 304L | A240 316 | A240 316L |
4 | 调节螺钉 | A276 304 | A276 304 | A276 304L | A276 316 | A276 316L |
5 | 阀 座 | A276 430 | A276 304 | A276 304L | A276 316 | A276 316L |
6 | 阀 芯 | A276 430 | A276 304 | A276 304L | A276 316 | A276 316L |
7 | 过 滤 网 | A240 304 | A240 304 | A240 304L | A240 316 | A240 316L |
8 | 弹 簧 | A276 304 | A276 304 | A276 304L | A276 316 | A276 316L |
9 | 底部螺盖 | A105 | A182 304 | A182 304 | A182 316 | A182 316L |
STC可调恒温式蒸汽疏水阀性能规范
公称压力PN(MPa) | 1.6 | 2.5 | 4.0 | 2.0 | 5.0 |
壳体试验压力(MPa) | 2.4 | 3.75 | 6.0 | 3.0 | 7.5 |
排水温度 | A组65℃~100℃、B组95℃~135℃、C组130℃~165℃ | ||||
设计制造 | GB/T 22654-2008 蒸汽疏水阀 技术条件 | ||||
结构长度 | GB/T 12250-2005 蒸汽疏水阀 术语、标志、结构长度 | ||||
法兰标准 | JB/T 79、GB/T 9113、HG/T 20592、HG/T 20615、ASME B16.5等 | ||||
检验试验 | GB/T 12251-2005 蒸汽疏水阀 试验方法 | ||||
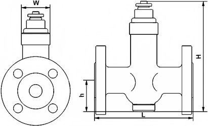
STC可调恒温式蒸汽疏水阀外型尺寸
公称压力 PN | 公称通径 DN | 尺寸(mm) | 参考重量 KG | |||
L | H | h | W | |||
10 ~ 40 (Class150)20 | 15 | 150 | 117 | 43 | 43.5 | — |
20 | 150 | 136 | 48 | 43.5 | — | |
25 | 160 | 136 | 53 | 43.5 | — | |
32 | 230 | 165 | 72 | 47.5 | — | |
40 | 230 | 170 | 72 | 47.5 | — | |
50 | 230 | 200 | 82 | 50.0 | — | |
65 | 230 | 200 | 82 | 61.5 | — | |
80 | 310 | 235 | 113 | 75.0 | — | |
100 | 310 | 235 | 113 | 155.5 | — | |
STC可调恒温式蒸汽疏水阀结构图

如你已订购我公司生产的STC可调恒温式蒸汽疏水阀后,如果疏水阀的排放物要排向大气要保证排至安全点,排放的液体温度可达到100℃。