TB6F可调双金属片式蒸汽疏水阀产品概述
TB6、TB6W、TB6F可调双金属片式蒸汽疏水阀由阀体内凝结水的温度变化引起双金属片变形驱动阀芯的启闭动作,从而达到排水和阻汽的作用,其凝结水排放温度可调,能根据蒸汽系统压力和温度的不同,可任意调整,控制凝结水排放温度,使高温凝结水中的显热得到充分利用,节能效果显著,即可以人为的调整到比饱和温度低的任何温度下使阀门打开排水,对各种用热设备所需的不同温度,可通过蒸汽疏水阀外部调节螺杆进行调整控制,即使在阀门运行中也可进行,让用户使用得心应手,当调节温度后,排放凝结水的温度受蒸汽压力波动的影响较小,故而特适用于经常有蒸汽压力波动的设备和场合。该阀采用了“自动关阀、自动定心和自动落座阀芯”的关闭系统,无新鲜蒸汽泄漏,连续排水、排空气性能好。本产品可选择法兰、螺纹、承插焊等连接方式,体积小,可任意方位安装。
TB6F可调双金属片式蒸汽疏水阀部件材料
序号 | 部件名称 | 材料名称 | ||||
1 | 阀 体 | A105 | A182 F11 CL.2 | A182 304 | A182 316 | A182 316L |
2 | 阀 盖 | A105 | A182 F11 CL.2 | A182 304 | A182 316 | A182 316L |
3 | 阀 帽 | A105 | A182 F11 CL.2 | A182 304 | A182 316 | A182 316L |
4 | 螺 杆 | A276 304 | A276 304 | A276 304 | A276 316 | A276 316L |
5 | 双金属片 | A182 304 | A182 304 | A182 304 | A182 316 | A182 316L |
6 | 弹 簧 | A276 304 | A276 304 | A276 304 | A276 316 | A276 316L |
7 | 阀 瓣 | 17-4PH | 17-4PH | A276 304 | A276 316 | A276 316L |
8 | 阀 座 | 17-4PH | 17-4PH | A276 304 | A276 316 | A276 316L |
TB6F可调双金属片式蒸汽疏水阀性能参数
公称压力PN(MPa) | 1.6 | 2.5 | 4.0 | 2.0 | 5.0 |
壳体试验压力(MPa) | 2.4 | 3.75 | 6.0 | 3.0 | 7.5 |
调整温度范围(℃) | 50 ~ 180 | ||||
设计制造 | GB/T 22654-2008 蒸汽疏水阀 技术条件 | ||||
结构长度 | GB/T 12250-2005 蒸汽疏水阀 术语、标志、结构长度 | ||||
连接法兰 | JB/T 79、GB/T 9113、HG/T 20592、HG/T 20615、ASME B16.5等 | ||||
螺纹标准 | GB/T 7306.1、GB/T 7306.2、GB/T 7307、GB/T 12716、ASME B1.20.1等 | ||||
焊接端部 | 承插焊按JB/T 7746或ASME B16.11,对焊按GB/T 12224或ASME B16.25等 | ||||
检验试验 | GB/T 12251-2005 蒸汽疏水阀 试验方法 | ||||
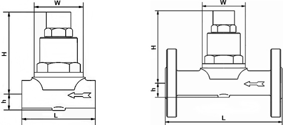
TB6F可调双金属片式蒸汽疏水阀外型尺寸
公称压力 PN | 公称通径 DN | 法兰连接结构尺寸(mm) | 螺纹和承插焊连接结构尺寸(mm) | ||||||
L | H | h | W | L | H | h | W | ||
16 ~ 40 (Class150)20 | 15 | 150 | 108 | 25 | 63 | 90 | 108 | 25 | 63 |
20 | 150 | 108 | 25 | 63 | 90 | 108 | 25 | 63 | |
25 | 160 | 108 | 25 | 63 | 95 | 108 | 25 | 63 | |
32 | 230 | 108 | 25 | 63 | — | — | — | — | |
40 | 230 | 108 | 25 | 63 | — | — | — | — | |
50 | 230 | 108 | 25 | 63 | — | — | — | — | |
TB6F可调双金属片式蒸汽疏水阀结构图

如果你需要的蒸汽疏水阀工况有要求,须在订货合同中写明具体要求,本产品应安装在蒸汽管路较低的位置,阀门前装有过滤器、截止阀,阀门后应装有止回阀,同时安装旁路阀和旁通阀。