TD42热动力型圆盘式蒸汽疏水阀产品概述
TD42热动力型圆盘式蒸汽疏水阀是依靠蒸汽和凝结水的流速差工作,当凝结水通过阀座时流速较小,阀片打开排除凝结水,当蒸汽进入阀座因流速较大而关闭阀片,从而达到阻汽排水的效果。其起动时,冷态的凝结水及空气流入阀内将阀片顶起,并从凝结水出口迅速排放出去,然后蒸汽进入阀内,高速流动的热蒸汽在阀片下形成低压,将阀片拉动向下,同时,在阀片上的变压室内蒸汽压力迫使阀片向下动作,阀片将阀门关闭,关阀后,进入变压室的蒸汽向接触阀盖外侧的空气散热,变压室内的蒸汽渐渐凝结成水,压力也因此逐渐降低,阀片将再次被入口凝结水顶起,循环开始。该阀为间歇排水,正常出厂过冷度20℃~50℃,如有过冷度要求订货时注明。本产品可选择法兰、螺纹、承插焊等连接方式,具有体积小、排量大、节能性、使用时间长、耐低温等特点,广泛应用于低、中、高压蒸汽输送管、工艺伴热、小排量的设备。
TD42热动力型圆盘式蒸汽疏水阀部件材料
序号 | 部件名称 | 材料名称 | ||||
1 | 阀 盖 | A105 | A182 F11 CL.2 | A182 304 | A182 316 | A182 316L |
2 | 阀 体 | A105 | A182 F11 CL.2 | A182 304 | A182 316 | A182 316L |
3 | 阀 座 | A276 420 | A276 420 | A276 304 | A276 316 | A276 316L |
4 | 阀 片 | A276 420 | A276 420 | A276 304 | A276 316 | A276 316L |
5 | 过 滤 网 | A240 304 | A240 304 | A240 304 | A240 316 | A240 316L |
6 | 垫 片 | A240 304 | A240 304 | A240 304 | A240 316 | A240 316L |
7 | 螺 盖 | A105 | A182 F11 CL.2 | A182 304 | A182 316 | A182 316L |
TD42热动力型圆盘式蒸汽疏水阀性能规范
公称压力PN(MPa) | 1.6 | 2.5 | 4.0 | 2.0 | 5.0 |
壳体试验压力(MPa) | 2.4 | 3.75 | 6.0 | 3.0 | 7.5 |
设计制造 | GB/T 22654-2008 蒸汽疏水阀 技术条件 | ||||
结构长度 | GB/T 12250-2005 蒸汽疏水阀 术语、标志、结构长度 | ||||
连接法兰 | JB/T 79、JB/T 82、GB/T 9113、GB/T 9115、HG/T 20592、HG/T 20615、ASME B16.5等 | ||||
螺纹标准 | GB/T 7306.1、GB/T 7306.2、GB/T 7307、GB/T 12716、ASME B1.20.1等 | ||||
焊接端部 | 承插焊按JB/T 7746或ASME B16.11,对焊按GB/T 12224或ASME B16.25等 | ||||
检验试验 | GB/T 12251-2005 蒸汽疏水阀 试验方法 | ||||
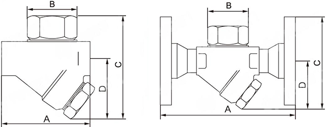
TD42热动力型圆盘式蒸汽疏水阀外型尺寸
公称通径 PN | 公称通径 DN | 法兰连接结构尺寸(mm) | 螺纹和承插焊连接结构尺寸(mm) | ||||||
A | B | C | D | A | B | C | D | ||
63 (Class300)50 | 15 | 150 | 55 | 126 | 68 | 90 | 55 | 126 | 68 |
20 | 150 | 55 | 126 | 68 | 90 | 55 | 126 | 68 | |
25 | 150 | 55 | 126 | 68 | 90 | 55 | 126 | 68 | |
TD42热动力型圆盘式蒸汽疏水阀排水量表
公称通径 DN | 工作压差(△P).kg/cm2 | ||||||||||||
0.5 | 1 | 3 | 6 | 9 | 12 | 15 | 18 | 21 | 24 | 30 | 35 | 40 | |
15 | 140 | 170 | 250 | 330 | 400 | 490 | 500 | 580 | 600 | 690 | 720 | 800 | 820 |
20 | 140 | 170 | 250 | 330 | 400 | 490 | 500 | 580 | 600 | 690 | 720 | 800 | 820 |
25 | 190 | 225 | 345 | 480 | 590 | 700 | 750 | 810 | 900 | 990 | 1100 | 1300 | 1390 |
32 | 290 | 350 | 500 | 700 | 830 | 995 | 1200 | 1290 | 1310 | 1520 | 1750 | 1800 | 1995 |
40 | 290 | 350 | 500 | 700 | 830 | 995 | 1200 | 1290 | 1310 | 1520 | 1750 | 1800 | 1995 |
50 | 290 | 350 | 500 | 700 | 830 | 995 | 1200 | 1290 | 1310 | 1520 | 1750 | 1800 | 1995 |
注:1、压差是指疏水阀入口端与出口端的压力差;2、排量是指蒸汽凝结水在单位小时内连续排放的量。
TD42热动力型圆盘式蒸汽疏水阀结构图

本蒸汽疏水阀在开关时发出“喀嚓”声,可帮助判断阀是否正常工作,其暴露在低温环境中,会造成阀开关频繁,降低使用时间,必须加隔热罩。