防水锤排气阀产品概述
FOX防水锤排气阀是一种由阀体、阀盖、浮球、导向杆、球座、浮板、排气孔、缓冲板和外盖及螺栓等组成,具有进排气和微量排气功能的防水锤空气阀,其进排气是在管路空管充水或管道排空时大量排气和进气,微量排气则是在管道正常带压工作时,将管道内不断析出的气体及时排放,以减少因之可能产生的多种不利后果。本产品带有缓冲盘片,确保平缓排气,防止出现气堵破坏的情况,其缓冲片在经历高速排气时所通过的面积以及小孔的数量可做调整。
FOX防水锤排气阀还具有防水锤功能,即保证在管线出现水柱拉断的负压工况下,迅速大量排气,以避免负压的产生;而当随后出现的水柱弥合工况时,阀门有效地限制排气,通过延缓排气时间,在管道当中造成空气囊似的弹性压缩空间,阻止快速的水柱弥合可能造成的压力升高,即水锤。本产品是款能解决管道当中起伏点出现水柱拉断式水锤的有效解决方案。
防水锤排气阀部件材料
序号 | 部件名称 | 材料名称 | |||||
1 | 阀 体 | QT450 | WCB | CF8 | CF3 | CF8M | CF3M |
2 | 阀 盖 | QT450 | WCB | CF8 | CF3 | CF8M | CF3M |
3 | 浮 球 | 304 | 304 | 304 | 304L | 316 | 316L |
4 | 导 向 杆 | 304 | 304 | 304 | 304L | 316 | 316L |
5 | 浮 板 | 304 | 304 | 304 | 304L | 316 | 316L |
6 | 缓 冲 板 | 304 | 304 | 304 | 304L | 316 | 316L |
7 | 螺 栓 | 304 | 304 | 304 | 304 | 316 | 316 |
防水锤排气阀性能规范
公称压力PN(MPa) | 0.25 | 0.6 | 1.0 | 1.6 | 2.5 | 2.0 |
壳体强度试验压力(MPa) | 0.375 | 0.9 | 1.5 | 2.4 | 3.75 | 3.0 |
高压水密封试验压力(MPa) | 0.275 | 0.66 | 1.1 | 1.76 | 2.75 | 2.2 |
低压水密封试验压力(MPa) | 0.02 | 0.02 | 0.02 | 0.02 | 0.02 | 0.02 |
法兰标准 | GB/T 17241.6-2008、JB/T 79-2015、GB/T 9113-2010、ASME B16.5-2017等 | |||||
检验试验 | GB/T 13927-2008、API 598-2016 | |||||
适用介质 | 清水、原水或物理化学性质类似于水的其他液体 | |||||
工作温度 | 0℃ ~ 80℃ | |||||
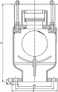
防水锤排气阀外形尺寸
公称压力 PN(MPa) | 公称通径 DN(mm) | 尺寸(mm) | |||||
H | D | D1 | D2 | b-f | N-Φ | ||
1.6 | 50 | 350 | 160 | 125 | 100 | 16-3 | 4-18 |
80 | 380 | 195 | 160 | 135 | 20-3 | 8-18 | |
100 | 400 | 215 | 180 | 155 | 20-3 | 8-18 | |
150 | 480 | 280 | 240 | 210 | 24-3 | 8-23 | |
200 | 550 | 335 | 295 | 265 | 26-3 | 12-23 | |
250 | 630 | 405 | 355 | 320 | 30-3 | 12-25 | |
300 | 700 | 460 | 410 | 375 | 30-4 | 12-25 | |
350 | 750 | 520 | 470 | 435 | 34-4 | 16-25 | |
表中只列出了部分JB/T 79-2015标准PN16法兰连接外形尺寸。如需其他规格尺寸,请咨询汗越阀门! | |||||||
防水锤排气阀结构图

如果你需订购我厂排气阀产品,烦请提供型号数据,公称通径、公称压力、阀体和阀内件材质、法兰执行标准及法兰密封面形式等,如有特殊要求,咨询时请详细说明。