FFGPW4X给水管道复合式高速进排气阀产品概述
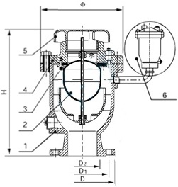
FFGPW4X给水管道复合式高速进排气阀是一种由阀体、浮体、大孔密封组件、阀盖、排气罩、小孔排气阀以及检修阀和防护网等主要部件组成的法兰连接的分体式带防护网进排气阀,其浮体装于阀体内,容重小于水,当水进入阀腔时可随水浮起,空管时大孔排气和运行时的小孔排气都以介质对浮体的浮力为驱动源,驱动浮球的升降来完成阀门的启闭,而且浮球的运动都在同一中心线上。该阀在顶部的进排气通道外侧设置有采用2mm~3mm厚的碳素钢或不锈钢圆孔筛板按设计图样卷制,缝隙用电焊连接的金属防尘网,当管道内出现负压需从外界吸入空气时,可过滤吸入空气中脏物,使它不易被堵塞和损坏。本产品特别适合安装在地上时的工况,是供水企业厂站给水管道专用的进、排气控制装置。
FFGPW4X给水管道复合式高速进排气阀部件材料
序号 | 零部件名称 | 材料名称 | ||||
1 | 阀 体 | QT450 | WCB | CF8 | CF8M | CF3M |
2 | 浮 体 | 06Cr19Ni10 | 06Cr19Ni10 | 06Cr19Ni10 | 06Cr17Ni12Mo2 | 022Cr17Ni12Mo2 |
3 | 密 封 组 件 | NBR/EPDM | NBR/EPDM | NBR/EPDM | NBR/EPDM | NBR/EPDM |
4 | 阀 盖 | QT450 | WCB | CF8 | CF8M | CF3M |
5 | 排 气 罩 | QT450 | WCB | CF8 | CF8M | CF3M |
6 | 小孔排气阀 | QT450 | WCB | CF8 | CF8M | CF3M |
7 | 防 护 网 | 06Cr19Ni10 | 06Cr19Ni10 | 06Cr19Ni10 | 06Cr17Ni12Mo2 | 022Cr17Ni12Mo2 |
8 | 螺 柱 | 06Cr19Ni10 | 06Cr19Ni10 | 06Cr19Ni10 | 06Cr17Ni12Mo2 | 06Cr17Ni12Mo2 |
9 | 螺 母 | 06Cr19Ni10 | 06Cr19Ni10 | 06Cr19Ni10 | 06Cr17Ni12Mo2 | 06Cr17Ni12Mo2 |
FFGPW4X给水管道复合式高速进排气阀性能规范
公称压力PN(MPa) | 0.25 | 0.6 | 1.0 | 1.6 | 2.5 |
壳体强度试验压力(MPa) | 0.375 | 0.9 | 1.5 | 2.4 | 3.75 |
高压水密封试验压力(MPa) | 0.275 | 0.66 | 1.1 | 1.76 | 2.75 |
低压水密封试验压力(MPa) | 0.02 | 0.02 | 0.02 | 0.02 | 0.02 |
设计制造 | CJ/T 217-2013 给水管道复合式高速进排气阀 | ||||
法兰标准 | GB/T 17241.6-2008、JB/T 79-2015、GB/T 9113-2010等 | ||||
检验试验 | CJ/T 217-2013 给水管道复合式高速进排气阀 | ||||
适用水温 | 0℃~65℃ | ||||
FFGPW4X给水管道复合式高速进排气阀外形尺寸
公称压力 PN(MPa) | 公称尺寸 DN(mm) | 尺寸(mm) | |||||
Φ | H | D | D1 | D2 | Z-ød | ||
1.6 | 20 | 195 | 320 | 105 | 75 | 55 | 4-14 |
25 | 195 | 320 | 115 | 85 | 65 | 4-14 | |
32 | 195 | 320 | 135 | 100 | 78 | 4-18 | |
40 | 195 | 320 | 145 | 110 | 85 | 4-18 | |
50 | 195 | 320 | 160 | 125 | 100 | 4-18 | |
80 | 242 | 375 | 195 | 160 | 135 | 8-18 | |
100 | 260 | 395 | 215 | 180 | 155 | 8-18 | |
150 | 345 | 500 | 280 | 240 | 210 | 8-23 | |
200 | 425 | 600 | 335 | 295 | 265 | 12-23 | |
250 | 465 | 680 | 405 | 355 | 320 | 12-25 | |
300 | 505 | 780 | 460 | 410 | 375 | 12-25 | |
350 | 605 | 860 | 520 | 470 | 435 | 16-25 | |
400 | 660 | 940 | 580 | 525 | 485 | 16-30 | |
表中只列出了部分JB/T 79-2015标准PN16法兰连接外形尺寸。如需其他规格尺寸,请咨询汗越阀门! | |||||||
FFGPW4X给水管道复合式高速进排气阀结构图

如果你需订购我厂排气阀产品,咨询时烦请告知公称尺寸、公称压力、阀体和阀内件材料、法兰标准及法兰密封面形式等,本产品维修周期长,工作可靠且为自动化控制,在注意避免人为破坏或冻伤等前提下,无需频繁精细的维护与保养。