ZFGP4X整体式进排气阀产品概述
ZFGP4X整体式进排气阀是一种由阀体、浮体、升降罩、大孔和小孔密封组件、阀盖、排气罩以及浮体罩和防护网等组成的给水管道复合式高速进排气阀,其同时具备大、小进排气孔,当管道空管充水时实现快速排气,当管道内产生负压时又能快速进气,且在工作压力下可排出管道中集结的微量空气,排尽气后具有自动封水功能。本产品有带防护网和不带防护网两种,如果安装在地上时,应在阀门顶部进排气通道外侧安装金属防护网。
ZFGP4X整体式进排气阀大量排气后,压力水冲击浮球,阀门能瞬间关闭,且无可见泄漏。其浮体和浮体组件采用不锈钢材料制成,装于阀体内,容重小于水,当水进入阀腔时可随水浮起或下落,升降灵活无卡阻现象。本产品应竖直安装,允许垂直倾斜偏差角度不大于2°,如果安装在地上时,排气口应装设防护网,当安装在地下阀井中时,其中阀门进口的检修阀,宜采用可在地面操作的结构型式。在环境温度不高于零度时,应考虑防冻措施。
ZFGP4X整体式进排气阀部件材料
序号 | 部件名称 | 材料名称 | ||||
1 | 阀 体 | QT450 | WCB | CF8 | CF8M | CF3M |
2 | 浮 体 | 06Cr19Ni10 | 06Cr19Ni10 | 06Cr19Ni10 | 06Cr17Ni12Mo2 | 022Cr17Ni12Mo2 |
3 | 升 降 罩 | 06Cr19Ni10 | 06Cr19Ni10 | 06Cr19Ni10 | 06Cr17Ni12Mo2 | 022Cr17Ni12Mo2 |
4 | 密封组件 | NBR/EPDM | NBR/EPDM | NBR/EPDM | NBR/EPDM | NBR/EPDM |
5 | 阀 盖 | QT450 | WCB | CF8 | CF8M | CF3M |
6 | 排 气 罩 | QT450 | WCB | CF8 | CF8M | CF3M |
7 | 螺 柱 | 06Cr19Ni10 | 06Cr19Ni10 | 06Cr19Ni10 | 06Cr17Ni12Mo2 | 06Cr17Ni12Mo2 |
8 | 螺 母 | 06Cr19Ni10 | 06Cr19Ni10 | 06Cr19Ni10 | 06Cr17Ni12Mo2 | 06Cr17Ni12Mo2 |
ZFGP4X整体式进排气阀性能规范
公称压力PN(MPa) | 0.25 | 0.6 | 1.0 | 1.6 | 2.5 |
壳体强度试验压力(MPa) | 0.375 | 0.9 | 1.5 | 2.4 | 3.75 |
高压水密封试验压力(MPa) | 0.275 | 0.66 | 1.1 | 1.76 | 2.75 |
低压水密封试验压力(MPa) | 0.02 | 0.02 | 0.02 | 0.02 | 0.02 |
设计制造 | CJ/T 217-2013 给水管道复合式高速进排气阀 | ||||
法兰标准 | GB/T 17241.6-2008、JB/T 79-2015、GB/T 9113-2010等 | ||||
检验试验 | CJ/T 217-2013 给水管道复合式高速进排气阀 | ||||
适用水温 | 0℃~65℃ | ||||
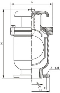
ZFGP4X整体式进排气阀外形尺寸
公称压力 PN(MPa) | 公称尺寸 DN(mm) | 尺寸(mm) | |||||
Φ | H | D | D1 | D2 | Z-ød | ||
1.0 | 20 | 195 | 320 | 105 | 75 | 55 | 4-14 |
25 | 195 | 320 | 115 | 85 | 65 | 4-14 | |
32 | 195 | 320 | 135 | 100 | 78 | 4-18 | |
40 | 195 | 320 | 145 | 110 | 85 | 4-18 | |
50 | 195 | 320 | 160 | 125 | 100 | 4-18 | |
65 | 242 | 375 | 180 | 145 | 120 | 4-18 | |
80 | 242 | 375 | 195 | 160 | 135 | 4-18 | |
100 | 260 | 395 | 215 | 180 | 155 | 8-18 | |
150 | 340 | 500 | 280 | 240 | 210 | 8-23 | |
200 | 405 | 600 | 335 | 295 | 265 | 8-23 | |
250 | 465 | 680 | 390 | 350 | 320 | 12-23 | |
300 | 505 | 780 | 440 | 400 | 368 | 12-23 | |
350 | 605 | 860 | 500 | 460 | 428 | 16-23 | |
400 | 660 | 940 | 565 | 515 | 482 | 16-25 | |
表中只列出了部分JB/T 82.1标准PN10法兰连接外形尺寸。如需其他规格尺寸,请咨询汗越阀门技术部! | |||||||
ZFGP4X整体式进排气阀结构图

如果你需订购我厂排气阀产品,咨询时烦请告知公称通径、公称压力、阀体和浮体及升降罩材料、法兰标准及法兰密封面形式等,本产品安装时,不要将杂物掉入管道内,如在原配水管道上换装,还应在安装前进行消毒处理。