直通平底篮式过滤器产品概述
直通平底篮式过滤器是一种设计与制造、检验及验收符合HG/T 21637-1991标准的化工管道过滤器,它由进出口法兰、接管与筒体通过焊接工艺组成本体,其中筒体上端焊有压紧法兰,法兰盖盖在压紧法兰上,篮状滤芯位于筒体内,当带有杂质的流体从入口进入,流进滤篮后颗粒物被阻挡在滤网内,清洁后的滤料由出口排出,从而获得纯净的流体。本产品主要适用于石油、化工、食品、轻工等生产中的液体及气体物料,用于过滤其固体杂质。
我厂生产的直通平底篮式过滤器主要型号有SB14C-H10、SB14C-H25、SB14C-H40、SB14C-A150、SB14C-A300、SB14S-H10、SB14S-H25、SB14S-H40、SB14S-A150、SB14S-A300、SB16C-H10、SB16C-H25、SB16C-H40、SB16C-A150、SB16C-A300、SB16S-H10、SB16S-H25、SB16S-H40、SB16S-A150、SB16S-A300等。本产品默认的法兰标准为HG/T 20592-2009(国标)或HG/T 20615-2009(美标)。
直通平底篮式过滤器部件材料
序号 | 部件名称 | 材料名称 | |||||
1 | 筒 体 | 20# | 15CrMo | 304 | 304L | 316 | 316L |
2 | 接 管 | 20# | 15CrMo | 304 | 304L | 316 | 316L |
3 | 法 兰 | 20# | 15CrMo | 304 | 304L | 316 | 316L |
4 | 法 兰 盖 | 20# | 15CrMo | 304 | 304L | 316 | 316L |
5 | 密 封 垫 | 柔性石墨缠绕、聚四氟乙烯、带内外环金属缠绕垫 | |||||
6 | 滤 篮 | 304 | 304 | 304 | 304L | 316 | 316L |
7 | 螺 栓 | 35CrMoA | 35CrMoA | 304 | 304 | 316 | 316 |
8 | 螺 母 | 30CrMo | 30CrMo | 304 | 304 | 316 | 316 |
9 | 排放螺塞 | 304 | 304 | 304 | 304L | 316 | 316L |
直通平底篮式过滤器技术规范
公称压力PN(MPa) | 1.0 | 1.6 | 2.5 | 4.0 | 2.0 | 5.0 |
壳体强度试验压力(MPa) | 1.5 | 2.4 | 3.75 | 6.0 | 3.0 | 7.5 |
高压液密封试验压力(MPa) | 1.1 | 1.76 | 2.75 | 4.4 | 2.2 | 5.5 |
低压气密封试验压力(MPa) | 0.6 | 0.6 | 0.6 | 0.6 | 0.6 | 0.6 |
设计制造 | HG/T 21637-1991化工管道过滤器 | |||||
法兰标准 | HG/T 20592-2009、HG/T 20615-2009、ASME B16.5-2017等 | |||||
检验试验 | HG/T 21637-1991化工管道过滤器 | |||||
过滤精度 | 0.02mm ~ 16.0mm | |||||
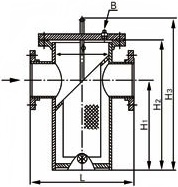
直通平底篮式过滤器外型尺寸
公称压力 PN | 公称通径 DN | 尺寸(mm) | B | ||||
Φ | L | H1 | H2 | H3 | |||
16 ~ 40 | 25 | 89 | 220 | 160 | 260 | 360 | R½" |
32 | 89 | 220 | 165 | 270 | 370 | R½" | |
40 | 114 | 280 | 180 | 300 | 400 | R½" | |
50 | 114 | 280 | 180 | 300 | 400 | R½" | |
65 | 140 | 330 | 220 | 350 | 460 | R½" | |
80 | 168 | 340 | 260 | 400 | 510 | R½" | |
100 | 219 | 420 | 310 | 470 | 580 | R¾" | |
150 | 273 | 500 | 430 | 620 | 730 | R¾" | |
200 | 325 | 560 | 530 | 780 | 900 | R¾" | |
250 | 426 | 660 | 640 | 930 | 1050 | R¾" | |
300 | 478 | 750 | 840 | 1200 | 1350 | R¾" | |
直通平底篮式过滤器结构图

如果你需订购我厂篮式过滤器产品,咨询时烦请提供型号数据,公称直径、公称压力、壳体材质、滤篮材质及过滤精度、法兰标准、法兰密封面形式等,本产品按材料的类别不同分为:SB14C碳钢直通平底篮式过滤器、SB14S不锈钢直通平底篮式过滤器、SB14M低合金钢直通平底篮式过滤器三种,如有特殊要求,请来电咨询。