Writer: admin Time:2020-03-03 16:50 Browse:℃
减压比例较大时应该选用活塞式结构,其是利用先导管路在上端位置的小减压阀进行一次自力压力调整,在由主阀来对应其压力系数来调整阀后的压力,这种减压阀主要用于长输大型管线系统上使用。其最大的减压范围能达到12:1,具有较高的稳定性。
大应用装机:800MW(向家坝水电站)
大应用供水:5000m3/h
高应用水头:370m
大减压比:12:1
|
规格型号
1—产品代码 |
|
|
外形结构 |
![]() |
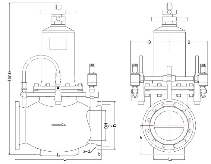
结构尺寸


参数

流量(如下表)

主要零件材料

QQ: 769693943
Phone: 13816746668
Tel: 021-31001158
Email: 769693943
Add: 上海市金山区沪杭公路4169号