Writer: admin Time:2020-10-13 11:34 Browse:℃

防酸电磁阀
阀体材质:铸钢、不锈钢
密封材质: PTFE聚四第乙烯,PEEK,金属硬密封
用流体:水、热水、蒸汽、油等介质
连接方式:法兰、内螺纹、外螺纹、焊接
工作压力:0~0.6mpa,1.6mpa,5mpa,10mpa~ 300mpa
介质温度:-196'C~ 80C、-10C~+650°C
直流电压:DC24V/DC12V.其它电压可定做
交流电压: AC110V、AC220V. AC220V、AC380V
控制方式:可选常闭型或常开型及自保持式
功能选配:防水防展,带信号反馈,带手动开关,带止回功能
防酸电磁阀主要有PVC防酸电磁阀,CPVC防酸电磁阀,四氟防酸电磁阀。由于PVC,CPVC,四氟材料之间存在显著的物理化学性能的差异,不同材质的防酸电磁阀可满足不同性质,不同浓度流体的使用要求。以下详细介绍CPVC防酸电磁阀的技术参数,四氟防酸电磁阀、PVC防酸电磁阀请参考四氟电磁阀、PVC电磁阀网页资料。
一、CPVC防酸电磁阀简介
氯化聚氯乙烯(CPVC)由聚氯乙烯( PVC )树脂氯化改性制得,是一种工程塑料,PVC 树脂经过氯化后,化学稳定性增加,从而提高了材料的耐热性、耐酸、碱、盐、氧化剂等的腐蚀。蕞高使用温度可达 110 ℃,长期使用温度为 95 ℃。所用CPVC材料通过美国卫生基金会(NSF)卫生安全认证。
1、独特的结构工艺
a、腐蚀性流体与金属部件(动铁芯、弹簧)完全隔绝,即流体只与CPVC、聚四氟、密封件接触,实现了结构上真正的耐腐蚀;活塞式结构取代了膜片,电磁阀使用寿命大大增长;先导孔孔径超大,路径短且直,不易被颗粒物、沉淀物或流体中的结晶物堵塞(例如:水中的泥沙、卤水中的结晶盐等)
b、嵌入式密封结构,密封性能更加可靠;
2、CPVC电磁阀的优越性
a、电磁阀零泄漏
b、电磁阀流量孔径为标准值,满足相对应的流量要求。
c、CPVC电磁阀可用于食品级给水工程,工厂的热污水管,电镀溶液管道,热化学试剂输送管,氯碱厂的湿氯气输送管道等的控制通断。
d、对流体中的颗粒物、沉淀物适应性强,
e、由于产品科学的设计使产品结构更简单,维护也十分简单,具有更高的可靠性,更长的使用寿命。
二、防酸电磁阀订购码:
| 2W | 25 | ZC | AC220 | A | Z | K | F |
| 规格代码 | 通径 | 材质 | 电压 | 设计序号 | 直动式:Z | 常开:K | 法兰:F |
| 2w:二位二通 | ZP:UPVC | 先导式:空白 | 常闭:空白 | 活接:H | |||
| ZC:CPVC |
三、防酸电磁阀技术参数:
|
产品型号Model |
2W15ZC |
2W20ZC |
2W25ZC |
2W32ZC |
2W40ZC |
2W50ZC |
|
|
通量孔径Orifice(mm) |
15 |
20 |
25 |
32 |
40 |
50 |
|
|
CV 傎CV value |
4 |
5.5 |
13 |
17 |
25 |
40 |
|
|
介 质Fluid medium |
60%以下硫酸、任意浓度盐酸及强碱 (具体咨询厂家) |
||||||
|
介质温度 |
Max.+95℃ |
||||||
|
使用压力Working pressure |
0.01~0.6(MPa)先导式 、 0~1.5米水柱 直动式 |
||||||
|
耐压强度compressive |
1.2(MPa) |
||||||
|
密封材质Seal |
VITON、FKM |
||||||
|
电 压 Voltage |
AC220V |
15W |
25W |
启动:350W 保持:10W |
|||
|
DC24V |
15W |
25W |
启动:85W 保持:25W |
||||
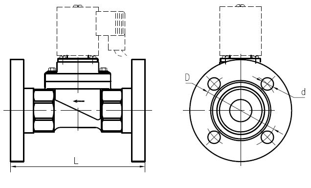
四、防酸电磁阀外型尺寸
1、螺纹防酸电磁阀

|
产品型号 Model |
联接方式 Port |
外型尺寸Overall Dimension(mm) |
||||||
|
L |
H |
W |
C |
A |
K |
D |
||
|
2W15Z |
G1/2 |
75 |
132 |
63.5 |
63.5 |
16 |
92 |
Φ64 |
|
2W20ZC |
G3/4 |
80 |
137 |
63.5 |
63.5 |
19 |
92 |
Φ75 |
|
2W25ZC |
G1 |
100 |
147 |
74 |
74 |
26 |
92 |
Φ85 |
|
2W32ZC |
G1-1/4 |
120 |
171 |
94 |
94 |
30 |
94 |
Φ100 |
| 2W40ZC |
G1-1/2 |
130 |
180 |
94 |
94 |
32.5 |
94 |
Φ110 |
|
2W50ZC |
G2 |
172 |
225 |
155 |
155 |
42 |
94 |
Φ125 |
注:标配为国标G螺纹。NPT螺纹等可订制
2、法兰防酸电磁阀

|
型号 Model |
联接方式 Port |
外型尺寸Overall Dimension(mm) |
||||||
|
L |
H |
W |
C |
A |
K
|
D |
||
|
2W15ZC |
法兰 flange |
108 |
132 |
63.5 |
63.5 |
16 |
92 |
Φ64 |
|
2W20ZC |
法兰 flange |
125 |
137 |
63.5 |
63.5 |
19 |
92 |
Φ75 |
|
2W25ZC |
法兰 flange |
152 |
147 |
74 |
74 |
26 |
92 |
Φ85 |
|
2W32ZC |
法兰 flange |
183 |
171 |
94 |
94 |
30 |
94 |
Φ100 |
|
2W40ZC |
法兰 flange |
201 |
180 |
94 |
94 |
32.5 |
94 |
Φ110 |
|
2W50ZC |
法兰 flange |
264 |
225 |
155 |
155 |
42 |
94 |
Φ125 |
注:标配为国标法兰。美标、日标法兰可订制
3、活接(双油令)防酸电磁阀

|
产品型号 Model |
联接方式 Port |
外型尺寸Overall Dimension(mm) |
||||||
|
L |
H |
W |
C |
A |
K |
S |
||
|
2W15ZC-AH |
DN15活接 |
169 |
143 |
63.5 |
63.5 |
116 |
92 |
16.5 |
|
2W20ZC-AH |
DN20活接 |
198 |
149.5 |
63.5 |
63.5 |
118 |
92 |
19 |
|
2W25ZC-AH |
DN25活接 |
234 |
158 |
74 |
74 |
121 |
92 |
22.5 |
|
2W32ZC-AH |
DN32活接 |
272 |
184 |
94 |
94 |
141 |
94 |
26.5 |
|
2W40ZC-AH |
DN40活接 |
290 |
196.5 |
94 |
94 |
147.5 |
94 |
31.5 |
|
2W50ZC-AH |
DN50活接 |
360 |
242.5 |
155 |
155 |
183 |
94 |
38 |
|
2W50-65ZC-AH |
DN65活接 |
412 |
258 |
155 |
155 |
183 |
94 |
44 |
注:标配为国标活接。美标、日标活接可订制
QQ: 769693943
Phone: 13816746668
Tel: 021-31001158
Email: 769693943
Add: 上海市金山区沪杭公路4169号