021-31001158  mmvalves@126.com

GUQ气动真空球阀,气动高真空球阀

更新时间:2024-04-13 10:04:39

GUQ气动真空球阀,气动高真空球阀

  • 1、产品型号:GUQ。
  • 2、公称通径:DN10~DN300。
  • 3、公称压力:0.1x106~1.3x10-4。
  • 4、适用温度:-29~180ºC。
  • 5、阀体材质:铸钢、不锈钢。
  • 6、适用介质:空气、气体、油、液体。
  • 7、结构形式:球形。
  • 8、连接方式:法兰。
  • 9、驱动方式:气动(可佩带手操)。
  • 10、制造标准:国标GB、德国DIN、美国API、ANSI。

产品说明

GUQ气动真空球阀,气动高真空球阀是通过电磁换向阀改变气路方向,控制执行气缸来驱动球阀,达到接通或切断真空(压力)系统管道路中的介质流。应用于真空、乳制品、酒业、生物工程、食品、制药、饮料、化妆品及化工领域。可选配反馈信号装置及电气阀门定位器。

主要零件材料

阀体、阀盖、阀杆:不锈钢
密封件:四氟乙烯、丁腈橡胶、氟橡胶、PPL。

螺纹连接结构图

螺纹连接的外形及连接尺寸(mm) (JB919)

Model型号 DN G H E L
GUQ-10(G) 10 1/4" 153 104 68
GUQ-16(G) 16 1/2" 155 104 72
GUQ-20(G) 20 3/4" 160 104 82
GUQ-25(G) 25 1" 163 140 90
GUQ-32(G) 32 1-1/4" 180 140 112
GUQ-40(G) 40 1-1/2" 186 140 120
GUQ-50(G) 50 2" 233 164 145
GUQ-63(G) 63 2-1/2" 272 164 185
GUQ-80(G) 80 3" 351 190 210
GUQ-100(G) 100 4" 370 190 268

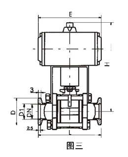
活套法兰连接结构图

活套法兰连接的外形及连接尺寸(mm) (GB6070)

Model型号 DN D Do H E L n-φc
GUQ-10(F) 10 55 40 153 105 84 4-φ6.6
GUQ-16(F) 16 60 45 155 130 84 4-φ6.6
GUQ-25(F) 25 70 55 163 165 114 4-φ6.6
GUQ-32(F) 32 90 70 180 165 140 4-φ9
GUQ-40(F) 40 100 80 186 190 160 4-φ9
GUQ-50(F) 50 110 90 233 190 170 4-φ9
GUQ-63(F) 63 130 110 272 250 195 4-φ9
GUQ-80(F) 80 145 125 351 250 203 8-φ9
GUQ-100(F) 100 165 145 370 280 280 8-φ9

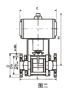
快卸法兰连接结构图

快卸法兰连接的外形及连接尺寸(mm) (GB4982)

Model型号 DN D1 D H E L
GUQ-10(KF) 10 12.2 30 153 104 84
GUQ-16(KF) 16 17.2 30 155 104 84
GUQ-25(KF) 25 26.2 40 163 140 114
GUQ-32(KF) 32 34.2 55 180 140 140
GUQ-40(KF) 40 41.2 55 186 140 160
GUQ-50(KF) 50 52.2 75 233 164 170

上一篇:GUD电动真空球阀,电动高真空球阀 下一篇:没有了