
服务热线021-31001158
您的位置:德国托马斯阀门(Thomas) - 公司新闻

进口电动球阀是一种由德国托马斯按照ANSI B16.34标准设计生产的,德国托马斯电动球阀它具有旋转90度的动作,旋塞体为球体,有圆形通孔或通道通过其轴线。球阀在管路中主要用来做电动球阀切断、分配和改变介质的流动方向,它只需要用旋转90度的操作和很小的转动力矩就能关闭严密。球阀最适宜做开关、切断阀使用,但近来的发展已将球阀设计成使它具有节流和控制流量之用,如V型球阀。
公称通径:DN15-DN2000
公称压力:150LB-2500LB
设计温度:-196℃-550℃
连接方式:法兰,螺纹,焊接、对焊、承插焊、
适用介质:水、气、油、化工、盐水、燃气,天然气等等介质
电源电压:DC24V、DC220V、AC110V、AC220V、AC380V
控制方式:开关型、无源触点型、阀位信号反馈型、智能调节型(输入输出4-20mA)
其它配置:防爆型电动执行器,带手动装置(无电源的情况下可手动开关阀门)
|
阀体 |
阀杆 |
阀球 |
密封面 |
垫片 |
填料 |
工作温度 |
适用介质 |
|
WCB |
1Cr13 |
1Cr13 |
PTFE
1Cr13 |
柔性石墨 |
柔性石墨 |
-29-425℃ |
水、蒸汽、油品 |
|
WC6 |
15CrMo |
15CrMo |
-29-540℃ |
||||
|
WC9 |
25Cr2MoV |
25Cr2MoV |
|||||
|
LCB |
304 |
304 |
-46-354℃ |
||||
|
CF8 |
304 |
304 |
-196-600℃ |
||||
|
CF3 |
304L |
304L |
|||||
|
CF8M |
316 |
316 |
|||||
|
CF3M |
316L |
316L |

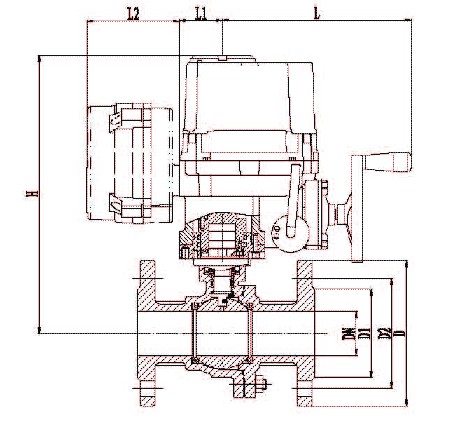
进口电动球阀尺寸图
| 公称通径 | A | ΦD1 | N-Φd | H1 | H2 | H | L | L2 | L3 |
| DN15 | 65 | Φ85 | 4-Φ13 | 72 | 70 | 510 | 53.5 | 216 | 136.5 |
| DN20 | 65 | Φ85 | 4-Φ13 | 72 | 70 | 510 | 53.5 | 216 | 136.5 |
| DN25 | 65 | Φ85 | 4-Φ13 | 72 | 70 | 510 | 53.5 | 216 | 136.5 |
| DN32 | 80 | Φ100 | 4-Φ18 | 80 | 75 | 530 | 53.5 | 216 | 136.5 |
| DN40 | 90 | Φ110 | 4-Φ18 | 100 | 95 | 560 | 53.5 | 216 | 136.5 |
| DN50 | 100 | Φ125 | 4-Φ18 | 107 | 100 | 585 | 53.5 | 216 | 136.5 |
| DN65 | 105 | Φ145 | 4-Φ18 | 108 | 105 | 610 | 53.5 | 216 | 136.5 |
| DN 80 | 120 | Φ160 | 8-Φ18 | 127 | 125 | 630 | 81 | 276 | 140 |
| DN100 | 140 | Φ180 | 8-Φ18 | 145 | 140 | 670 | 81 | 276 | 140 |
| DN125 | 170 | Φ210 | 8-Φ18 | 170 | 170 | 715 | 82 | 276 | 140 |
| DN150 | 195 | Φ240 | 8-Φ23 | 185 | 180 | 757 | 100 | 276 | 140 |
| DN200 | 240 | Φ295 | 8-Φ23 | 215 | 210 | 807 | 100 | 276 | 140 |
以上就是产品的各项参数、尺寸以及产品详情,为了方便我公司生产及技术人员为您准确选型。请您尽量了解口径、压力、使用介质及工况条件,以便我公司提供更准确、更有针对性的服务。如有任何疑问.您可以致电给我们,我们一定会尽心尽力为您提供优质的服务!

联系电话
微信扫一扫