021-31001158  mmvalves@126.com

PZ641H,PE641Y气动排渣闸阀

更新时间:2024-04-13 10:04:07

PZ641H,PE641Y气动排渣闸阀

  • 1、产品型号:PZ641H,PE641Y。
  • 2、公称通径:DN50~DN500。
  • 3、公称压力:1.6Mpa~6.4Mpa。
  • 4、适用温度:-20ºC~+150ºC~425ºC~550ºC。
  • 5、阀体材质:WCB、铸钢、碳钢、不锈钢、铬钼钢。
  • 6、适用介质:水、油、蒸汽、灰渣、煤渣、矿浆。
  • 7、结构形式:闸板式。
  • 8、连接方式:法兰。
  • 9、驱动方式:手动、伞齿轮、电动、气动、液动。
  • 10、制造标准:国标GB、德国DIN、美国API、ANSI。

产品说明

PZ641H、PE641Y气动排渣闸阀主要适用于公称压力PN1.6~6.4MPa,工作温度0~100℃的火力电站水利系统及水利工程的灰浆排放系统管路上,切断或接通管路中灰水混合物,渣水混合物等介质。

主要结构特点

1、采用中法兰螺栓连接,支管两端为法兰连接或对焊连接。 
2、启闭件采用半密封副强制密封,性能优良。 
3、密封副材料为陶瓷或合金,耐擦性好、摩擦力小、密封良好。 
4、阀体出口流道结型合理,不存渣,不卡阻。 
5、阀杆经调质和表面氮化处理,有良好的搞腐蚀性,抗擦性。 
6、中大口径设置滚动轴承,好启闭。

 执行标准

设计与制造 结构长度 压力温度等级 连接法兰 试验与检验
GB12234 GB3595 GB12221 GB9131 JB/T74 HG20604 JG/T79 GB9113 HG20593-20635 GB13927 JB/T9092

主要零件材料

阀体 阀 盖 支 架 闸 板 阀 杆 阀 座 密封圈 填 料 阀杆螺母
WCB WCB WCB 耐磨合金 2Cr13 耐磨合金 增强柔性石墨 增强柔性石墨 ZCuA110Fe3

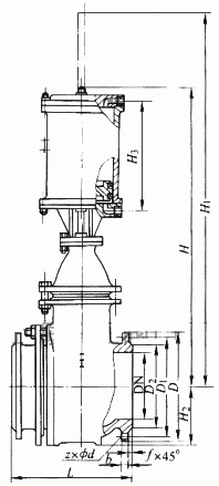
外形结构图

 

主要外形尺寸

PZ641H-16C 型气动钢制排渣闸阀主要外形及结构尺寸(mm)
DN L D D1 D2 z×Φd b f H3 H2 H H1 重量/kg
100 300 220 180 158 8×Φ18 24 3 265 120 715 840 195
150 350 285 240 212 8×Φ22 28 3 290 162 945 1205 258
200 400 340 295 268 12×Φ22 30 3 307 200 1245 1545 344
250 450 405 355 320 12×Φ26 32 3 454 220 1550 1850 438
300 500 460 410 370 12×Φ26 34 4 610 260 1620 1980 630
350 550 520 470 430 16×Φ26 38 4 630 290 1690 2045 821
400 600 580 525 480 16×Φ30 40 4 645 338 1805 2205 940
450 650 640 585 532 20×Φ30 40 4 675 360 2015 2466 1019
500 700 715 650 585 20×Φ33 42 4 695 400 2115 2615 1138
PZ641H-25 型气动钢制排渣闸阀主要外形及结构尺寸(mm)
DN L D D1 D2 z×Φd b f H3 H2 H H1 重量/kg
150 350 300 250 212 8×Φ26 30 3 275 132 720 860 226
200 400 360 310 278 12×Φ26 34 3 300 200 950 1240 298
250 450 425 370 335 16×Φ30 36 3 318 220 1250 1580 394
300 500 485 430 390 16×Φ30 40 4 464 260 1550 1890 498
350 550 555 490 450 16×Φ33 40 4 630 290 1630 2070 700
400 600 620 550 505 16×Φ36 40 4 650 338 1706 2265 901
450 650 670 600 555 20×Φ36 42 4 665 360 1740 2525 4036
500 700 730 660 615 20×Φ36 44 4 695 400 2045 2685 1119
600 800 845 770 720 20×Φ39 46 4 710 437 2165 2740 1238
PZ641H-40 型气动钢制排渣闸阀主要外形及结构尺寸(mm)
DN L D D1 D2 z×Φd b f H3 H2 H H1 重量/kg
150 450 300 250 104 8×Φ26 32 3.5 285 184 740 880 256
200 550 375 320 260 12×Φ30 38 3.5 310 224 970 1260 328
250 650 450 385 313 12×Φ33 38 3.5 627 245 1270 1600 424
300 750 545 450 364 16×Φ33 42 3.5 474 276 1580 1920 538
350 850 580 510 422 16×Φ36 48 4 640 310 1660 2100 740
400 950 660 585 172 16×Φ39 52 4 660 340 1746 2295 750
PZ641H-63 型气动钢制排渣闸阀主要外形及结构尺寸(mm)
DN L D D1 D2 z×Φd b f H3 H2 H H1 重量/kg
150 450 345 280 204 8×Φ33 36 3.5 295 184 760 900 286
200 550 415 345 260 12×Φ36 42 3.5 320 224 990 1280 358
250 650 470 400 313 12×Φ36 42 3.5 339 245 1290 1630 454
300 740 430 460 364 16×Φ36 46 3.5 584 276 1610 14950 478
350 850 600 525 422 16×Φ39 50 4 650 310 1690 2140 780
400 950 670 585 472 16×Φ42 60 4 670 340 1776 2345 811

上一篇:没有了 下一篇:没有了


CATEGORIES

CONTACT US

QQ: 769693943

Phone: 13816746668

Tel: 021-31001158

Email: 769693943

Add: 上海市金山区沪杭公路4169号