| 序号 | 名称 | 材质 |
| 1 | 阀体 | ASTM A216-WCB ASTM A217-WC1、WC6、WC9、C5 ASTM A351-CF8、CF8M、CF3、CF3M |
| 2 | 阀板 | ASTM A182-Gr.F6a ASTM A182-F22 ASTM A182-F304、F316、F321、F304L、F316L |
| 3 | 阀杆 | ASTM A182-Gr.F6a ASTM A182-F22 ASTM A182-F304、F316、F321、F304L、F316L |
| 4 | 垫片 | 柔性石墨+不锈钢 |
| 5 | 双头螺栓 | ASTM 193-B7、A320-B8、A193-B8M |
| 6 | 六角螺母 | ASTM A194-2H、A194-8、A194-8M |
| 7 | 阀盖 | ASTM A216-WCB ASTM A217-WC1、WC6、WC9、C5 ASTM A351-CF8、CF8M、CF3、CF3M |
| 8 | 波纹管组件 | ASTM A182-F304、F316、F321、F304L、F316L |
| 9 | 填料 | 柔性石墨 |
| 10 | 填料压盖 | ASTM A216-WCB ASTM A217-WC1、WC6、WC9、C5 ASTM A351-CF8、CF8M、CF3、CF3M |
| 11 | 支架 | ASTM A216-WCB ASTM A217-WC1、WC6、WC9、C5 ASTM A351-CF8、CF8M、CF3、CF3M |
| 12 | 阀杆螺母 | 铜合金 |
| 13 | 手轮 | ASTM A536 Gr.60-40-18、A216-WCB |
| 结构形式 | BB-BG-OS Y |
| 驱动方式 | 手动 |
| 电动 | |
| 设计标准 | API1600、API6D |
| 结构长度 | ASME B16.10 |
| 连接法兰 | ASME B16.5 |
| 试验和检验 | API598、API6D |
| 公称压力(LB) | 壳体试验压力(MPa) | 密封试验压力(MPa) | 适用温度(℃) | 使用介质 |
| 150 | 3.0 | 2.2 | ≤350℃ | 水、蒸汽、油品等 |
| 300 | 7.5 | 5.5 | ||
| 600 | 15.0 | 11.0 | ||
| 900 | 22.5 | 16.5 |
| 型号 | WZ41-150LB | ||||||||||||||
| 压力等级 | 150LB | ||||||||||||||
| 口径 | mm | 15 | 20 | 25 | 32 | 40 | 50 | 65 | 80 | 100 | 125 | 150 | 200 | 250 | 300 |
| in | 1/2 | 3/4 | 1 | 11/4 | 11/2 | 2 | 21/2 | 3 | 4 | 5 | 6 | 8 | 10 | 12 | |
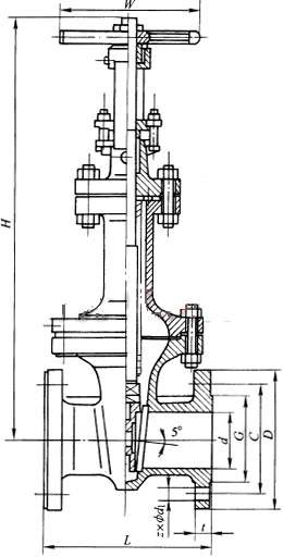
| L | 108 | 117 | 127 | 140 | 165 | 178 | 190 | 203 | 229 | 254 | 267 | 292 | 330 | 356 | 381 |
| H | 200 | 210 | 250 | 260 | 290 | 370 | 398 | 440 | 490 | 530 | 580 | 670 | 760 | 850 | 950 |
| W | 120 | 140 | 140 | 180 | 200 | 220 | 260 | 280 | 300 | 340 | 400 | 450 | 450 | 500 | 500 |
| 重量(kg) | 8 | 9 | 10 | 15 | 22 | 30 | 42 | 55 | 70 | 100 | 140 | 180 | 250 | 350 | 450 |
| 型号 | YDAWZ41-300LB | ||||||||||||||
| 压力等级 | 300LB | ||||||||||||||
| 口径 | mm | 15 | 20 | 25 | 32 | 40 | 50 | 65 | 80 | 100 | 125 | 150 | 200 | 250 | 300 |
| in | 1/2 | 3/4 | 1 | 11/4 | 11/2 | 2 | 21/2 | 3 | 4 | 5 | 6 | 8 | 10 | 12 | |
| L | 140 | 152 | 165 | 178 | 190 | 216 | 241 | 283 | 305 | 381 | 403 | 419 | 457 | 502 | 762 |
| H | 300 | 210 | 250 | 260 | 290 | 370 | 398 | 440 | 490 | 530 | 580 | 670 | 760 | 850 | 980 |
| W | 120 | 140 | 140 | 180 | 200 | 220 | 260 | 280 | 300 | 340 | 400 | 450 | 450 | 500 | 500 |
| 重量(kg) | 9 | 10 | 12 | 18 | 25 | 38 | 53 | 70 | 88 | 125 | 175 | 225 | 310 | 440 | 560 |
| 型号 | WZ41-600LB | ||||||||||||||
| 压力等级 | 600LB | ||||||||||||||
| 口径 | mm | 15 | 20 | 25 | 32 | 40 | 50 | 65 | 80 | 100 | 125 | 150 | 200 | 250 | 300 |
| in | 1/2 | 3/4 | 1 | 11/4 | 11/2 | 2 | 21/2 | 3 | 4 | 5 | 6 | 8 | 10 | 12 | |
| L | 165 | 190 | 216 | 229 | 241 | 292 | 330 | 356 | 432 | 508 | 559 | 660 | 787 | 838 | 889 |
| H | 200 | 210 | 250 | 260 | 290 | 370 | 398 | 440 | 490 | 530 | 580 | 670 | 760 | 850 | 980 |
| W | 120 | 140 | 140 | 180 | 200 | 220 | 260 | 280 | 300 | 340 | 400 | 450 | 450 | 500 | 500 |
| 重量(kg) | 11 | 13 | 16 | 24 | 32 | 50 | 70 | 90 | 105 | 165 | 230 | 300 | 400 | 570 | 730 |
QQ: 769693943
Phone: 13816746668
Tel: 021-31001158
Email: 769693943
Add: 上海市金山区沪杭公路4169号