021-31001158  mmvalves@126.com

WZ41H国标波纹管闸阀

更新时间:2024-04-13 10:04:15

WZ41H国标波纹管闸阀

  • 1、产品型号:WZ41H。
  • 2、公称通径:DN15~DN350。
  • 3、公称压力:1.6Mpa~4.0Mpa。
  • 4、适用温度:-2适用温度:-20ºC~+150ºC~425ºC~550ºC0ºC~+150ºC~425ºC~550ºC。
  • 5、阀体材质:WCB、铸钢、锻钢、碳钢、不锈钢。
  • 6、适用介质:水、油、蒸汽、气体类。
  • 7、密封结构:波纹管。
  • 8、连接方式:法兰。
  • 9、驱动方式:手动、伞齿轮、电动、气动、液动。
  • 10、制造标准:国标GB、德国DIN、美国API、ANSI。

产品说明

WZ41H国标波纹管闸阀适用于公称压力PN1.6~16MPa,工作温度-29~350℃的石油、化工、制药、化肥、电力行业等各种工况的管路上,切断或接通管路介质。国标波纹管闸阀的主要特点:产品结构合理、密封可靠、性能优良、造型美观;密封面堆焊Co基硬质合金、耐磨、耐腐、抗摩擦性能好、使用寿命长;阀杆调质及表面氮化处理,有良好的抗腐和抗摩擦性能;双重密封,性能更可靠;阀杆升降位置指示,更直观;零件材质及法兰、对焊端尺寸可根据实际工况或用户要求合理选配,满足各种工程需要。波纹管闸阀的阀杆采用波纹管及填料双重密封结构,确保阀杆处的无泄漏密封,特别适用于易燃、易爆、有毒及贵重介质的管路。 
■特点:双层波纹管、维修方便、双重密封、位置指示
■应用场合:电站、天然气、氨、真空、冷冻系统、热油系统、热水

采用标准

设计制造标准:GB12234、API6D;
结构长度标准:GB1221、ANSI B16.10;
法兰标准:JB79、ANSI B16.5;
检验试验标准:GB12937、API 598

主要零部件材质

序号 名称 材质
1 阀体 WCB WC1、WC6、WC9、C5 CF8、CF8M、CF3、CF3M
2 阀板 25、1Cr13、2Cr13 1Cr18Ni9Ti、0Cr18Ni12Mo2Ti 20Cr1Mo1V、25Cr2MoV
3 阀杆 25、1Cr13、2Cr13 1Cr18Ni9Ti、0Cr18Ni12Mo2Ti 20Cr1Mo1V、25Cr2MoV
4 波纹管组件 1Cr18Ni9Ti、304、316、304L、316L
5 支架 WCB、WC1、WC6、WC9、C5 CF8、CF8M、CF3、CF3M、
6 垫片 柔性石墨+不锈钢Flexible graphite+stainless steel、PTFE
7 阀盖 WCB WC1、WC6、WC9、C5 CF8、CF8M、CF3、CF3M
8 六角螺母 0Cr18Ni9Ti、0Cr18Ni12Mo2Ti 35CrMoV、25Cr2MoV
9 双头螺栓 0Cr18Ni9Ti、0Cr18Ni12Mo2Ti 35CrMoV、25Cr2MoV
10 填料 柔性石墨
11 填料压盖 WCB WC1、WC6、WC9、C5 CF8、CF8M、CF3、CF3M
12 阀杆螺母 铜合金
13 手轮 WCB QT400-18

技术规范

结构形式 BB-BG-OS & Y
驱动方式 手动
电动
设计标准 GB12234
结构长度 GB12221
连接法兰 GB9113、JB79、HG20596
试验和检验 JB/T 9092、GB/T13927

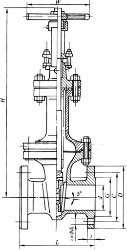
外形结构图

 

主要外形尺寸1.6MPa

型号 WZ41-16
压力等级 PN16
口径 15 20 25 32 40 50 65 80 100 125 150 200 250 300 350
L 108 117 127 140 165 178 190 203 229 254 267 292 330 356 381
H 200 210 250 260 290 370 398 440 490 530 580 670 760 850 950
W 120 140 140 180 200 220 260 280 300 340 400 450 450 500 500
重量(kg) 8 9 10 15 22 30 43 57 73 105 150 190 270 380 480

主要外形尺寸2.5MPa

型号 WZ41-25
压力等级 PN25
口径 15 20 25 32 40 50 65 80 100 125 150 200 250 300 350
L 140 152 165 178 190 216 241 283 305 381 403 419 457 502 762
H 200 210 250 260 290 370 398 440 490 530 580 670 760 850 980
W 120 140 140 180 200 220 260 280 300 340 400 450 450 500 500
重量(kg) 9 10 12 17 23 34 50 65 82 115 165 210 300 420 540

主要外形尺寸4.0MPa

型号 WZ41-40
压力等级 PN40
口径 15 20 25 32 40 50 65 80 100 125 150 200 250 300 350
L 165 190 216 229 241 292 330 356 432 508 559 660 787 838 889
H 200 210 250 260 290 370 398 440 490 530 580 670 760 850 980
W 120 140 140 180 200 220 260 280 300 340 400 450 450 500 500
重量(kg) 9 10 12 18 25 38 53 70 88 125 175 225 310 440 560

上一篇:没有了 下一篇:没有了


CATEGORIES

CONTACT US

QQ: 769693943

Phone: 13816746668

Tel: 021-31001158

Email: 769693943

Add: 上海市金山区沪杭公路4169号