021-31001158  mmvalves@126.com

Z43Y,Z63Y,Z83Y高压平板闸阀

更新时间:2024-04-13 10:04:48

Z43Y,Z63Y,Z83Y高压平板闸阀

  • 1、产品型号:Z43Y、Z63Y、Z83Y。
  • 2、公称通径:DN25~DN150。
  • 3、公称压力:16.0Mpa~42.0Mpa。
  • 4、适用温度:-20ºC~+150ºC。
  • 5、阀体材质:铸钢、不锈钢。
  • 6、适用介质:水、蒸汽、石油、天然气、污水。
  • 7、结构形式:闸板式、单闸板、双闸板。
  • 8、连接方式:法兰、焊接、卡套。
  • 9、驱动方式:手动、伞齿轮、电动、气动、液动。
  • 10、制造标准:国标GB、德国DIN、美国API、ANSI。

产品说明

Z43Y、Z63Y、Z83Y高压平板闸阀采用新型平衡浮动式密封结构,适用于压力不大于45MPa,温度不高于120℃的油、天燃气等管线上,作为控制介质的启闭及调节装置。该产品结构设计新颖、选材恰当、测度严格、操作轻便,具有较强防腐、耐磨、耐冲蚀性能,是石油工业界一种理想的新型装备。

型号说明

Z43Y为高压法兰平板闸阀;Z43Y-160C,Z43Y-250C,Z43Y-320C,Z43Y-450C
Z63Y为高压焊接平板闸阀;Z63Y-160C,Z63Y-250C,Z63Y-320C,Z63Y-450C
Z83Y为高压卡箍平板闸阀;Z83Y-160C,Z83Y-250C,Z83Y-320C,Z83Y-450C
备注:型号后面为压力,如Z43Y-160C代表160公斤压力PN16.0MPa,C代表材质为碳钢,P代表材质为不锈钢。

结构特征

1、 采用浮动阀座,双向启闭,密封可靠,启闭灵活。
2、 闸板下部开有导流孔,并给予精密导向,同时密封部均喷焊硬质合金,耐冲蚀。
3、 阀体承载能力高,通道为直通式,全开时,与闸板导流孔相贯通和直管相似,流阻很小。阀杆采用复合填料,多重密封,使得密封可靠,摩擦力小。
4、 关闭阀门时,顺时针转动手轮,闸板下移至底部,由于介质压强的作用,将进口端密封座推向闸板方向。形成较大的密封比压,从而形成第一道密封。同时,将闸板压向出口端密封座上,成为双重密封。
5、 由于采用双重密封,所以可在不影响管道工作的情况下更换易损件。这是本厂产品优先于国内外同类产品的重要特征。
6、 开启闸板时,逆时针旋转手轮,闸板上移,导流孔与通道孔相贯通。随着闸板的上升,贯通孔逐渐加大,至极限位置时,导流孔与通道孔相重合,此时全开。

采用标准

设计标准 JB/T5298、APl6D
结构长度 法兰 GB/T 12221、JB/T 5298
焊接 GB/T 15188.1
连接法兰 GB/T9113、JB/T 79 ANSl 16.5a
对焊端 GB/T 12224
试验和检验 GB/T3927、JB/T 9092

性能规范

压 力 等 级 16 20 25 32 35 40
工作压力(Mpa) ≤16 ≤20 ≤25 ≤32 ≤35 ≤40
强度试验(Mpa) 24 30 37.5 48 52.5 60
密封试验(Mpa) 17.6 22 27.5 35.2 38.5 44
介 质 水、油、天燃气
温 度 -19~120℃
抗硫型 含H2S、CO2的石油、天然气等

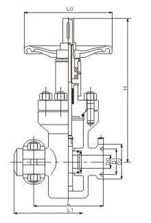
Z43Y外形结构图

Z43Y主要外形尺寸

公称压力PN 公称通径DN 主要外形尺寸和连接尺寸
L H D0 D1 D2 D b Z-φd L0
16MPa 
22MPa
25 210 345 25 50.8 101.5 150 29 4-26 200
32 240 350 29 60-32 111.0 160 29 4-26 220
40 260 380 36 68.28 124.0 180 32 4-29.5 280
50 300 400 45 95.25 165.0 215 38.5 8-26 300
65 320 440 58 107.95 190.5 245 41.5 8-29.5 350
80 360 500 72 123.82 190.5 240 38.5 8-26 360
100 450 540 90 149.22 235.0 290 44.5 8-32.5 400
150 560 620 135 211.12 317.5 380 56 12-32.5 450
25MPa
35MPa
25 220 345 25 50.8 101.5 150 29 4-26 200
32 250 350 29 60-32 111.0 160 29 4-26 220
40 270 380 36 68.28 124.0 180 32 4-29.5 280
50 310 400 45 95.25 165.0 215 38.5 8-26 300
65 340 440 58 107.95 190.5 245 41.5 8-29.5 350
80 380 500 72 136.25 203.0 265 48 8-32.5 360
100 480 540 90 161.92 241.5 310 54 8-35.5 400
150 580 620 135 211.12 317.5 395 83 12-39 450

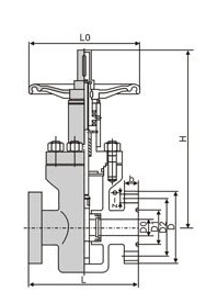
Z63Y外形结构图

Z63Y主要外形尺寸

公称压力PN 公称通径DN 主要外形尺寸和连接尺寸
L H D0 D1 L0
16MPa 
22MPa
  160 345 25 42 200
32 180 350 29 54 220
40 210 380 36 60 280
50 230 400 45 73 300
65 250 440 58 89 350
80 270 500 72 108 360
100 320 540 90 133 400
150 500 620 135 192 450
25MPa
35MPa
25 160 345 25 42 200
32 180 350 29 56 220
40 210 380 36 64 280
50 230 400 45 76 300
65 250 440 58 89 350
80 270 500 72 114 360
100 320 540 90 146 400
150 500 620 135 192 450

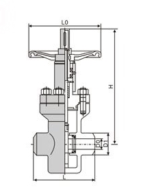
Z83Y外形尺寸图

Z83Y主要外形尺寸

公称压力
(MPa)
公称通径
(MPa)
尺寸(mm)
L L1 H D0 D1 D2 b L0
16
22
40 210 370 380 36 88.8 120 20 280
50 230 410 400 45 88.8 120 20 300
65 240 440 440 58 88.8 120 20 350
80 270 490 500 72 107.8 140 20 360
25
35
40 230 390 380 36 88.8 120 20 280
50 240 420 400 45 88.8 120 20 300
65 260 460 440 58 88.8 120 20 350
80 290 510 500 72 107.8 140 20 360

操作方式

1、阀门出厂前均作了强度和密封试验,使用时所有连接处均应保持初始状态。
2、 本系列阀门操作手轮上标有启闭旋向标志,明杆式上部配有启闭高度标尺,以供调节指示。
3、本阀门与管线焊接时,应将阀门开启,适当用潮湿物保护颈部,尽量减少高温热传导,以防损坏密封填料件。
4、关闭阀门时严禁使用加力杆,闸板关闭至顶端时手轮应回转1/2圈使闸板处于浮动状态。
5、阀门在使用过程中,应定期向阀帽注脂接头注入定量润滑脂。
6、阀门在使用过程中,如因易损件而泄漏,应及时更换。
7、阀门在检修过程中,应将内腔清洗干净,组装时应将各传动部位加润滑脂。
 8、阀门储存停用期间,应将闸板处于关闭位置,长期存放应置于通风干燥处,定期检查保养。

使用说明

1、阀座采用O形密封圈密封和施加预紧力的浮动阀座结构,使平板闸阀进出口双向密封;并且该结构的启闭力矩仅为普通阀门的1/2,能达到轻松开、关阀门。
2、在全开时,通道平滑为直线,流阻系数极小,无压力损失,可通毛球清扫管线
3、采用带自密封能力的填料结构,无需经常调节,开、关极为轻便,且密封性可靠,填料函处设有辅助密封油脂注入结构,密封性能绝对可靠,真正达到零泄漏;解决了通用阀门填料处最容易外漏的弊病。
4、平板闸阀关闭时能自动卸掉内腔高压,保证使用安全。
5、  全封闭结构,防护性能好,可适应全天候要求。

上一篇:没有了 下一篇:没有了


CATEGORIES

CONTACT US

QQ: 769693943

Phone: 13816746668

Tel: 021-31001158

Email: 769693943

Add: 上海市金山区沪杭公路4169号