021-31001158  mmvalves@126.com

WZ41Y,WZ61Y锻钢波纹管闸阀

更新时间:2024-04-13 10:04:12

WZ41Y,WZ61Y锻钢波纹管闸阀

  • 1、产品型号:WZ11Y、WZ61Y、WZ41Y。
  • 2、公称通径:DN15~DN50。
  • 3、公称压力:150LB-900LB。
  • 4、适用温度:-20ºC~+150ºC~425ºC~550ºC。
  • 5、阀体材质:锻钢、锻不锈、A105、A182、F304、F316。
  • 6、适用介质:水、油、蒸汽、气体类。
  • 7、密封结构:波纹管。
  • 8、连接方式:法兰、承插焊、螺纹。
  • 9、驱动方式:手动、伞齿轮、电动、气动、液动。
  • 10、制造标准:国标GB、德国DIN、美国API、ANSI。

产品说明

WZ41Y、WZ61Y锻钢波纹管闸阀的阀杆采用波纹管及填料双重密封结构,确保阀杆处的无泄漏密封,特别适用于易燃、易爆、有毒及贵重介质的管路。波纹管采用不锈钢或 Inconel 材料制造,波纹管密封结构设计合理,耐疲劳,使用寿命长。启标波纹管闸阀广泛适用于公称压力PN1.6~16MPa,工作温度-29~350℃的石油、化工、制药、化肥、电力行业等各种工况的管路上,切断或接通管路介质。

应用规范

设计制造 BS5352;MSS-SP-177
承插口尺寸 ANSIB16.11;JB/T1751
螺纹端尺寸 ANSIB1.20.1;JB/T7306
对焊端尺寸 ANSIB16.25;JB/T12224
法兰端尺寸 ANSIB16.5;JB79

主要零件材料

序号 零件名称 A105/F6a A105/F6aHFS A105/F6aHF F304(L)/304(L) F316(L)/316(L)
1 阀体 A105 A105 A105 F304 F316(L)
2 阀座 410 410HF 410HF 304(L) 316(L)
3 阀板 F6a F6a F6HF F304(L) F316(L)
4 阀杆 410 410 410 304(L) F316(L)
5 垫片 304+柔性石墨 304+柔性石墨 304+柔性石墨 304+柔性石墨 304+柔性石墨
6 阀盖 A105 A105 A105 F304(L) F316(L)
7 螺栓 B7 B7 B7 B8 B8
8 410 410 410 304 304
9 填料压盖 410 410 410 304 316
10 活节螺栓 b7 b7 b7 B8(M) B8(M)
11 填料压板 A105 A105 A105 F304 F304
12 六角螺母 2H 2H 2H 8(M) 8(M)
13 阀杆螺母 410 410 410 410 410
14 锁紧螺母 2H 2H 2H 2H 2H
15 铭牌 AL AL AL AL AL
16 手轮 A197 A197 A197 A197 A197
17 润滑垫片 410 410 410 410 410
18 填料 石墨 石墨 石墨 石墨 石墨
20 垫片 304+柔性石墨 304+柔性石墨 304+柔性石墨 304+柔性石墨 304+柔性石墨
28 波纹管 F321 F321 F321 F316L F316L

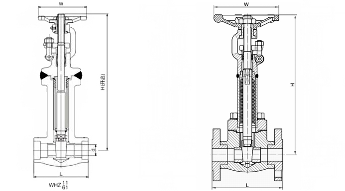
外形结构图

主要外形尺寸

NPS 缩径 3/8" 1/2" 3/4" 1" 11/4" 11/2" 2"
全径   3/8" 1/2" 3/4" 1" 11/4" 11/2"
L1 79 79 92 111 120 120 140
L 79 79 92 111 120 152 172
H(开) 220 220 225 244 321 321 347
W 100 100 100 125 160 160 180
重量 螺栓式 3.2 3.0 4.8 7.9 11.0 16.8 25.2
焊接式 3.0 2.8 4.8 7.0 9.6 13.5 20.25

上一篇:没有了 下一篇:没有了


CATEGORIES

CONTACT US

QQ: 769693943

Phone: 13816746668

Tel: 021-31001158

Email: 769693943

Add: 上海市金山区沪杭公路4169号