021-31001158  mmvalves@126.com

WZ41H德标波纹管闸阀

更新时间:2024-04-13 10:04:15

WZ41H德标波纹管闸阀

  • 1、产品型号:WZ41H。
  • 2、公称通径:DN15~DN350。
  • 3、公称压力:PN16-PN40。
  • 4、适用温度:-20ºC~+150ºC~425ºC~550ºC。
  • 5、阀体材质:WCB、铸钢、锻钢、碳钢、不锈钢。
  • 6、适用介质:水、油、蒸汽、气体类。
  • 7、密封结构:波纹管。
  • 8、连接方式:法兰、焊接。
  • 9、驱动方式:手动、伞齿轮、电动、气动、液动。
  • 10、制造标准:国标GB、德国DIN、美国API、ANSI。

产品说明

WZ41H德标波纹管闸阀我司引进欧州高科技阀门技术所生产的波纹管闸阀,设计和制造按DIN EN 12288-2003,试验和检验按 DIN EN 12266 2003,结构长度按 DIN EN 558-1 1995,连接法兰按 DIN EN 1092-1 2002,广泛用于化工、火力、发电厂等油品、水蒸气管道上作接通或截断管道中介质的启闭装置。

结构特点

1、德标波纹管闸阀的造型美观,而且结构合理、性能高、密封性也很可靠。
2、阀杆调质及表面氮化处理,有良好的抗腐和抗磨擦性能。
3、它的阀杆升降位置指示比其他的闸法更直观;
4、德标波纹管闸阀的零件材料以及法兰和对焊的尺寸都可根据实际的工作情况或者根据用户要求合理的进行选配,可以满足各种工程需要。
5、德标波纹管闸阀的密封面堆焊Co基硬质合金、耐磨、耐腐、抗摩擦性能好、使用寿命长。

主要优点

1、德标波纹管闸阀,其关键部件金属波纹管,下端与阀杆组件采用自动滚焊焊接,上端与连接板自动滚焊接,在流体介质和大气之间形成一个金属屏障,确保阀杆零泄漏;
2、双重的密封设计(波纹管+填料)若波纹管失效,阀杆填料也会避免泄漏,并符合国际密封标准;
3、阀盖上自带有加脂接头,可直接对阀杆、螺母和轴套进行润滑,不像传统的只对螺纹加润滑油;
4、人体工程学设计手轮,使用寿命更长,操作轻松便捷,更安全可靠;

技术规范

公称压力 壳体试验压力 密封试验压力 适用温度℃ 介质
1.6MPa 2.4MPa 1.76MPa GG:-10~300
CS:-29~425
SS:-59~540

蒸汽
油品
2.5MPa 3.75MPa 2.75MPa
4.0MPa 6.0MPa 4.4MPa

主要零部件材质

阀体/阀盖 阀杆 阀瓣 螺栓 螺母 填料 垫片 波纹管
GG 13Cr GG B7 2H FlexibleGraphite FlexibleGraphite+304 304
WCB 13Cr WCB B7 2H FlexibleGraphite FlexibleGraphite+304 304
CF8 F304 CF8 B8 8 FlexibleGraphite FlexibleGraphite+304 304
CF8M F316 CF8M B8 8 FlexibleGraphite FlexibleGraphite+304 316

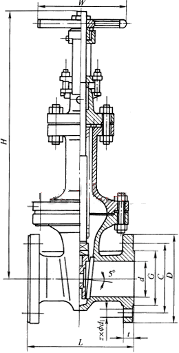
外形结构图

主要外形尺寸

口径(DN) 总长(L) 外圆(D) 中心(C) 水介(G) 法兰厚(F) 水线厚 高度(H) 孔数-大小
40 240 150 110 88 18 3 473 4-18
50 250 165 125 102 20 3 524 4-18
65 270 185 145 122 20 3 567 4-18
80 280 200 160 138 20 3 655 8-18
100 300 220 180 158 20 3 833 8-18
125 325 250 210 188 22 3 908 8-18
150 350 285 240 212 22 3 1006 8-22
200 400 340 295 268 24 3 1423 12-22
250 450 405 355 320 26 3 1708 12-26
300 500 460 410 378 28 4 2117 12-26
350 550 520 470 438 30 4 2400 16-26
400 600 580 525 490 32 4 2707 16-30
450 650 640 585 548 34 4 2835 20-30
500 700 715 650 610 36 4 3169 20-33
600 800 840 770 725 40 5 4053 20-36

上一篇:没有了 下一篇:没有了


CATEGORIES

CONTACT US

QQ: 769693943

Phone: 13816746668

Tel: 021-31001158

Email: 769693943

Add: 上海市金山区沪杭公路4169号