021-31001158  mmvalves@126.com

BZ41H不锈钢保温闸阀

更新时间:2024-04-13 10:04:10

BZ41H不锈钢保温闸阀

  • 1、产品型号:BZ41H。
  • 2、公称通径:DN40~DN300。
  • 3、公称压力:1.6Mpa~6.4Mpa 150LB-300LB-600LB。
  • 4、适用温度:-20ºC~+150ºC~425ºC~550ºC。
  • 5、阀体材质:锻钢、铸钢、不锈钢。
  • 6、适用介质:沥青、易结晶物。
  • 7、结构形式:闸板式。
  • 8、连接方式:法兰。
  • 9、驱动方式:手动、伞齿轮、电动、气动、液动。
  • 10、制造标准:国标GB、德国DIN、美国API、ANSI。

产品说明

BZ41H不锈钢保温闸阀主要用于石油、化工、冶金、制药等各类系统中,适用于公称压力PN1.6~6.4MPa(国标)150LB~300LB-600LB(美标)工作温度-29~425℃(碳钢)、-40~500℃(不锈钢)的管路上作启闭用。该阀门的夹套焊装于阀门的两法兰之间,阀门的侧面、底部设置有夹套的连接口,夹套中可自由地流过蒸汽或其它热的保温介质,确保粘稠介质可顺畅地流过阀门。

标准规范

设计制造 结构长度 连接法兰 压力温度等级 试验与检验
GB12234 -89
API600
GB12221-89 ANSI B16.5 
GB9112~9131 
JB/T74~90 
JB/T79-94
SH3006 
HG20615~20635
GB9131
ANSI B16.34
JB/T 9092
GB13927
API598
 

产品特点

1 夹套焊装于阀门的两法兰之间,阀门的侧面、底部设置有夹套的连接口。
2 连接法兰尺寸比同一规格普通阀门的连接法兰大一到两个规格,结构长度与同规格的普通阀门相同。
3 夹套中可自由地流过蒸汽或其它热的保温介质,确保粘稠介质可顺畅地流过阀门。

性能规范

型号 公称压力 试验压力(MPa) 工作温度℃ 适用介质
强度(水)(MPa) 密封(水)(MPa) 低压密封(空气)(MPa)
BZ41H-16C
BZ41W-16P(R)
1.6 2.4 1.8 0.6 ≤425 酸、碱、滤清类
BZ41H-25C
BZ41W-25P(R)
2.5 3.8 2.8 0.6 ≤550 酸、碱、滤清类
BZ41H-40C
BZ41W-40P(R)
4.0 6.0 4.4 0.6 ≤450 酸、碱、滤清类
BZ41H-64C
BZ41W-64P(R)
6.4 9.6 7.0 0.6 ≤300 酸、碱、滤清类

主要零件材料

零件名称 ZG1Cr18Ni9Ti系列 ZG00Cr18Ni10系列 ZG1Cr18Ni12Mo2Ti系列 ZG00Cr17Ni14Mo2系列 WCB系列
阀体/阀盖 ZG1Cr18Ni9Ti ZG00Cr18Ni10 ZG1Cr18Ni12Mo2Ti ZG00Cr17Ni14Mo2 WCB
闸板 ZG1Cr18NI9Ti ZG00Cr18Ni10 ZG1Cr18Ni12Mo2Ti ZG00Cr17Ni14Mo2 1Cr13
阀杆 1Cr18Ni9Ti ooCr18Ni10 1Cr18Ni12Mo2Ti ooCr17Ni14Mo2 1Cr13
填料 石墨+304 石墨+304 石墨+304 石墨+304 石墨Graphite
垫片 石墨+304
Graphite+304
石墨+304
Graphite+304
石墨+304
Graphite+304
石墨+304
Graphite+304
石墨+304
Graphite+304
压盖 ZG1Cr181Ni10 ZG00Cr18Ni10 ZG1Cr18Ni12Mo2Ti ZG00Cr17Ni14Mo2 WCB
填料压环 1Cr18Ni9Ti 00Cr18Ni10 1Cr18Mi12Mo2Ti 00Cr17Ni14Mo2 1Cr13
螺栓 1Cr171Ni2 1Cr171Ni2 1Cr171Ni2 1Cr171Ni2 35CrMoA
螺母 1Cr18Ni9Ti 1Cr18Ni9Ti 1Cr18Ni9Ti 1Cr18Ni9Ti 45

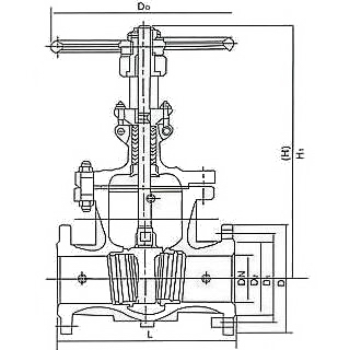
外形结构图

主要外形尺寸和连接尺寸

型号 压力 公称通径
DN
尺寸(mm)
L D D1 D2 b z-d H D0
BZ41H-16C
BZ41W-16P
BZ41W-16R
1.6 40 200 160 125 100 18-3 4-18 310 200
50 250 180 145 120 18-3 4-18 358 240
65 265 195 160 135 20-3 8-18 373 240
80 280 215 180 155 20-3 8-18 435 280
100 300 245 210 185 22-3 8-18 500 300
125 325 280 240 210 24-3 8-23 614 320
150 350 335 295 265 26-3 12-23 674 360
200 400 405 355 320 30-3 12-25 818 400
250 450 460 410 375 30-4 12-25 969 450
300 500 520 470 435 34-4 16-25 1145 560
BZ41H-25C
BZ41W-25P
BZ41W-25R
2.5 40 200 160 125 100 20-3 4-18 358 240
50 250 180 145 120 22-3 8-18 373 240
65 265 195 160 135 22-3 8-18 435 280
80 280 230 190 160 24-3 8-18 500 300
100 300 270 220 188 28-3 8-15 614 320
125 325 300 250 218 30-3 8-25 674 360
150 350 360 310 278 34-3 12-25 818 400
200 400 425 370 332 36-3 12-30 969 450
250 450 485 430 390 40-4 12-30 1145 560
300 500 550 490 448 40-4 16-34 1145 640

上一篇:没有了 下一篇:没有了


CATEGORIES

CONTACT US

QQ: 769693943

Phone: 13816746668

Tel: 021-31001158

Email: 769693943

Add: 上海市金山区沪杭公路4169号