021-31001158  mmvalves@126.com

CS14可调恒温式蒸汽疏水阀

更新时间:2024-04-13 10:04:32

CS14可调恒温式蒸汽疏水阀

  • 1、产品型号:CS14。
  • 2、公称通径:DN15~DN25。
  • 3、公称压力:1.6MPa。
  • 4、适用温度:-29ºC~+425ºC。
  • 5、阀体材质:铸钢、不锈钢。
  • 6、适用介质:蒸汽。
  • 7、结构形式:可调恒温式。
  • 8、连接方式:法兰、螺纹。
  • 9、驱动方式:自动。
  • 10、制造标准:国标GB、德国DIN、美国API、ANSI。

产品说明

CS14可调恒温式蒸汽疏水阀属热静力型中的一种新产品。阀内感温元件中装有感温剂、饱和剂、稳定剂和填充剂组成的感温混和物,利用其对温度的热胀冷缩及状态变换,使得阀门自动关闭或开启,从而达到阻汽排水之目的。选用合适的规格便确定了冷凝水排放的温度范围,然后可在此范围内根据情况要求用调节螺钉进行调节。

工作原理

       该阀根据温度的变化造成感受温双金属汽的变形,从而驱使阀芯作主复移位启闭阀座孔,达到阻汽排放。热敏感元件采用进口材料,灵敏度高坚固耐用。阀前始终备凝结水,形成水封,无新鲜蒸汽泄漏。排气性能好,抗水击,并可任意角度安装。适用于蒸汽主管线和过热蒸汽管线,能自动排除凝结水的排放温度,节能效果好。

排量图

 

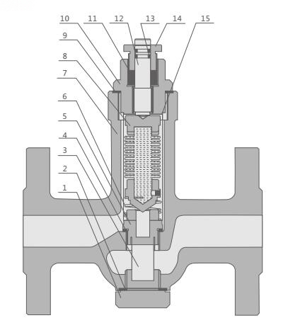
结构分析图

 

主要零部件

序号 名称 材料
1 尾螺 Q235
2 垫片 PTFE
3 滤网 304
4 垫片 H62
5 封圈 304
6 弹簧 304
7 阀体 WCB
8 波纹管 304
9 螺帽 Q235
10 封圈 304
11 垫片 PTFE
12 调节螺杆 304
13 橡胶圈 橡胶
14 铜螺母 H62
15 304
注:1、图中曲线标注的编号(4,8,12等)代表相应工作压差下的排量及阀座代号
     2、压差是指疏水阀的入口端与出口端的压力差

外形结构图

主要外形尺寸

型号 口径DN L H h W
STC 15 150 117 43 44
20 150 165 48 44
25 160 170 53 44
32 230 136 72 48
40 230 136 72 48
50 230 235 82 50
65 230 235 82 62
80 310 320 113 75
100 310 320 113 95

主要外形尺寸

型号 口径DN L H h W
STB 15 90 150 43 44
20 100 150 48 48
25 120 165 48 50
32 130 175 72 62
40 140 185 72 62
50 160 195 82 75

主要外形尺寸

型号 口径DN L H h W
CS14 15 35 176 92 49
20 35 176 92 49
25 37 190 102 57
ST 15 35 150 63 49
20 35 150 63 49
25 37 165 71 57

上一篇:STC可调恒温式蒸汽疏水阀 下一篇:没有了


CONTACT US

QQ: 769693943

Phone: 13816746668

Tel: 021-31001158

Email: 769693943

Add: 上海市金山区沪杭公路4169号