021-31001158  mmvalves@126.com

气动塑料球阀(PVC,CPVC,UPVC)

更新时间:2024-04-13 10:04:39

气动塑料球阀(PVC,CPVC,UPVC)

  • 1、产品型号:Q661F。
  • 2、公称通径:DN15~DN300。
  • 3、公称压力:1.6Mpa~1.0Mpa。
  • 4、适用温度:-29~180ºC~550ºC。
  • 5、阀体材质:PVC、CPVC、UPVC。
  • 6、适用介质:王水、硫酸、盐酸、氢氟酸、腐蚀性液体。
  • 7、结构形式:球形。
  • 8、连接方式:法兰、双由令活接。
  • 9、驱动方式:气动(可佩带手操)。
  • 10、制造标准:国标GB、德国DIN、美国API、ANSI。

Q661F气动塑料球阀是由高灵敏度气动活塞式执行器及UPVC塑料球阀组成。UPVC气动球阀适用于带腐蚀性介质的输送过程的截流。重量轻、耐腐蚀性强。所有UPVC气动球阀被应用于多个领域,如一般纯水和生饮水的管路系统、排水和污水管路系统、盐水和海水管路系统、酸碱和化学溶液系统等多个行业,品质得到广大用户的认可。

产品特点

(1)外型结构紧凑美观。
(2)本体重量轻容易安装。
(3)材质卫生无毒。
(4)耐腐蚀性强,应用范围广。
(5)耐磨损、容易拆卸,维护简单易行。

阀体技术参数

公称通径DN(mm) 15 20 25 32 40 50 65 80 100
公称压力(MPa) PN1.0-1.6MPa
连接方式 法兰、螺纹、由令
阀体结构 一体、三通L、三通T
阀体材质 UPVC、CPVC、PP
阀芯材质 UPVC、CPVC、PP
密封材质 PTFE
适用温度 0~+60℃
适用介质 PVC兼容的食品工业化学溶剂
配置执行机构 GT、AT、ST系列单双作用气动执行器
控制方式 开关两位控制、4~20mA模拟量信号控制

行器技术参数

执行器型号 GT、AT、ST系列单双作用气动执行器
供气压力 0.4~0.7MPa
气源接口 G1/4"、G1/8"、G3/8"、G1/2"
环境温度 -30~+70℃
作用形式 单作用执行机构、双作用执行机构
可配附件 定位器、电磁阀、空气过滤减压器、保位阀、行程开关、阀位传送器、手轮机构等
采用新型气动执行器,有双作用式和单作用式(弹簧复位),齿轮齿条传动,安全可靠;大口径阀门采用系列AW型气动执行器拔叉式传动,结构合理,输出力大,有双作用式和单作用式。
1、齿轮式双活塞,输出力矩大,体积小。
2、气缸选用铝金材料,重量轻、外形美观。
3、可在顶部、底部安装手动操作机构。
4、齿条式连接可调节开启角度、额定流量。
5、执行器可选带电讯号反馈指示及附件以实现自动化操作。
6、IS05211标准连接为产品的安装更换提供了方便。
7、两端调的节螺钉可使标准产品在0°和90°有±4°的可调范围。确保与内螺纹气动球阀的同步精度。

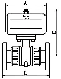
外形结构图

   
气动塑料球阀 (法兰) 气动塑料球阀 (双由令活接)
主要外形尺寸
公称通径DN(mm) 10 15 20 25 32 40 50 65
内螺纹尺寸G" 3/8" 1/2" 3/4" 1" 1"1/4 1"1/2 2" 2"1/2
A 115 165 65 165 180 180 230 230
L 103 112 122 130 152 157 187 236
H 140 140 165 165 250 250 280 280
重量(Kg) 5.6 5.7 5.8 6 6.3 6.5 7.3 7.8

上一篇:电动塑料球阀(PVC,CPVC,UPVC) 下一篇:没有了