021-31001158  mmvalves@126.com

PQ940H,PQ940Y,PQ940F电动偏心半球阀

更新时间:2024-04-13 10:04:52

PQ940H,PQ940Y,PQ940F电动偏心半球阀

  • 1、产品型号:PQ940H、PQ940Y、PQ940F。
  • 2、公称通径:DN50~DN2200。
  • 3、公称压力:1.6Mpa~4.0Mpa。
  • 4、适用温度:-29~180ºC~550ºC。
  • 5、阀体材质:碳钢、WCB、铸钢、不锈钢。
  • 6、适用介质:水、油、浆液、污水、气体、液体。
  • 7、结构形式:半球形。
  • 8、连接方式:法兰。
  • 9、驱动方式:手动、蜗轮、电动、气动。
  • 10、制造标准:国标GB、德国DIN、美国API、ANSI。

产品说明

PQ940F/Y/H电动偏心半球阀利用偏心阀体,偏心球体和阀座,阀杆作旋转运动时在共同轨迹自动定心,关闭过程中越关越紧,完全达到良好的密封目的。阀门的球体和阀座完全脱离,消除了密封圈的磨损,克服了传统球体阀座与球体密封面始终磨损的问题,非金属弹性材料被嵌入金属座中,阀座金属面受到良好的保护。本产品特别适用于钢铁业,铝业,纤维,微小固体颗粒,纸浆,煤灰,石油气等介质。

结构特点

1. 阀座设外台阶与阀体内台阶相配合的结构,防止了球体与阀座发生卡阻或脱离现象。
2. 利用偏心阀体,偏心球体和阀座,阀杆作旋转运气时,在共同轨迹自动定心,关闭过程中越关越紧,完全达到良好密封的目的,所以偏心半球阀密性能安全可靠;阀门启闭时,球体与阀座完全脱开,消除了密封副的磨损,克服了传统球阀阀座与球体密封面始终磨损的问题。
3. 非金属弹性材料被 于金属座中,阀座金属密封面受到良好的保护。
4. 半球切口的球体与阀座之间有剪切作用,特适用于含 维,微小固体颗粒,浆等介质。
5. 全开时流通能力大,压力损失小,且介质不会沉积在阀体中腔内。
6. 本产品具有精确的调节和可靠定位功能,流量特性为近似百分比,可调范围大,最大调比为100;1。

执行标准

设计制造:GB12237-89
法兰连接:GB/T17241.6998、GB/T9115(钢制)
结构长度:GB12221-89
压力试验:GB/T13927的规定

性能参数

公称压力(Mpa) 0.6 1.0 1.6 2.5 4.0
公称通经(mm) 40-600 40-600 40-600 40-600 40-600
密封试验压力(Mpa) 0.66 1.1 1.76 2.75 4.4
壳体试验压力(Mpa) 0.9 1.5 2.4 3.75 6.0
适用温度(℃) -29~300、-29~425、-29~540
适用介质 清水、海水、污水、酸碱等液体、料浆、蒸汽、燃气、油类
驱动方式 手动、电动、气动
连接形式 法兰连接、对夹连接
安装方式 立式安装、卧式安装

材料明细图

 

材料明细表

序号 名称及规格 材料
1 底盖 25
2 内六角螺栓 35CrMo
3 垫片 柔性石墨
4 阀体 WCB
5 下阀杆 2Cr13
6 球体 WCB
7 滑动轴承 铜基合金或不锈钢
8 垫片 柔性石墨
9 阀座+堆焊合金钢 25
10 阀座支承 25
11 内六角螺栓 35CrMo
12 40Cr
13 上阀杆 2Cr13
14 滑动轴承 铜基合金或不锈钢
15 填料垫 2Cr13
16 填料 柔性石墨
17 填料压盖 WCB
18 支架 WCB
19 螺柱 35CrMo
20 螺母 45
21 螺柱 35CrMo
22 螺母 45
23 螺柱 35CrMo
24 螺母 45
25 40Cr
26 手动操作器 组合件

主要零件材料

阀体 阀盖 GB WCB ZG1Cr18Ni9Ti ZG0Cr18Ni12Mo2Ti ZG15Cr1Mo1V
ASTM WCB CF8 CF8M WC9
球体 GB ZG2Cr13 ZG1Cr18Ni9Ti 表面特殊处理 ZG0Cr18Ni12Mo2Ti 表面特殊处理 ZG15Cr1Mo1V 表面特殊处理
ASTM CA15 CF8+HF CF8M+HF WC9+HF
阀杆 GB 2Cr13 1Cr18Ni9Ti 0Cr18Ni12Mo2Ti 25Cr2Mo2V
ASTM 420 304 316 F22a
阀座 GB PTFE 2Cr13 PTFE 1Cr18Ni9Ti PTFE 0Cr18Ni12Mo2Ti D517
ASTM PTFE 420 PTFE 304 PTFE 316 HF
填料 GB PTFE 柔性石墨 PTFE 柔性石墨 PTFE 柔性石墨 柔性石墨
ASTM PTFE 柔性石墨 PTFE 柔性石墨 PTFE 柔性石墨 柔性石墨
螺栓 GB 35 0Cr18Ni9 0Cr18Ni9 15Cr1Mo1V
ASTM A193 B7 A320-B8 A320-B8 A193 B16
螺母 GB 45 0Cr18Ni9 0Cr18Ni9 20CrMo
ASTM A194 2H A194-8 A194-8 A194-4

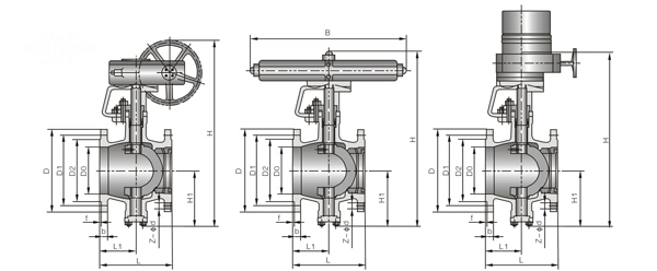
外形结构图

主要连接尺寸1.0MPa

公称压力 PN 公称通径 DN 尺寸[mm]
L D D1 D2 b Z-Φd Ws Hs Hw Hd
1.0Mpa 50 124 160 125 100 16 4-Φ18 230 164 260 310
65 145 180 145 120 18 4-Φ18 250 180 275 330
80 165 195 160 135 20 4-Φ18 300 200 300 360
100 194 215 180 155 20 8-Φ18 320 235 335 390
125 210 245 210 185 22 8-Φ18 400 260 355 405
150 229 280 240 210 24 8-Φ18 500 280 375 440
200 243 335 295 265 24 8-Φ23 800 320 410 470
250 297 390 350 320 26 12-Φ23 1000 355 485 550
300 338 440 400 368 26 12-Φ23 1200 400 530 595
350 400 500 460 428 28 16-Φ23     580 650
400 420 565 515 482 28 16-Φ25     650 730
450 502 615 565 532 30 20-Φ25     710 790
500 533 670 620 585 30 20-Φ25     760 840
600 800 780 725 685 34 20-Φ30     870 960
700 900 895 840 800 38 24-Φ30     910 1080
800 1000 1010 950 905 42 24-Φ34     935 1125

主要连接尺寸1.6MPa

公称压力 PN 公称通径 DN 尺寸[mm]
L D D1 D2 b Z-Φd Ws Hs Hw Hd
1.6Mpa 50 124 165 125 100 16 4-Φ18 230 164 260 310
65 145 185 145 120 18 4-Φ18 250 180 275 330
80 165 200 160 135 20 8-Φ18 300 200 300 360
100 194 220 180 155 20 8-Φ18 320 235 335 390
125 210 250 210 185 22 8-Φ18 400 260 355 405
150 229 285 240 210 24 8-Φ23 500 280 375 440
200 243 340 295 265 26 12-Φ23 800 320 410 470
250 297 405 355 320 30 12-Φ25 1000 355 485 550
300 338 460 410 375 30 12-Φ25 1200 400 530 595
350 400 520 470 435 34 16-Φ25     580 650
400 420 580 525 485 36 16-Φ30     650 730
450 502 640 585 545 40 20-Φ30     710 790
500 533 715 650 608 44 20-Φ34     760 840
600 800 840 770 718 48 20-Φ41     870 960
700 900 910 840 788 50 24-Φ41     910 1080
800 1000 1025 950 898 52 24-Φ41     935 1125

主要连接尺寸2.5 MPa

公称压力 PN 公称通径 DN 尺寸[mm]
L D D1 D2 D6 b Z-Φd Ws Hs Hw Hd
2.5 Mpa 50 124 165 125 100   20 4-Φ18 230 164 260 310
65 145 185 145 120   22 8-Φ18 250 180 275 330
80 165 200 160 135   22 8-Φ18 300 200 300 360
100 194 230 190 160   24 8-Φ23 320 235 335 390
125 210 270 220 188   28 8-Φ25 400 260 355 405
150 229 300 250 218   30 8-Φ25 500 280 375 440
200 243 360 310 278   34 12-Φ25 800 320 410 470
250 297 425 370 332   36 12-Φ30 1000 355 485 550
300 338 485 430 390   40 16-Φ30 1200 400 530 595
350 400 555 490 448   44 16-Φ34     580 650
400 420 620 550 505   48 16-Φ34     650 730
450 502 670 600 555   50 20-Φ34     710 790
500 533 730 660 610   52 20-Φ41     760 840
600 800 845 770 718   56 20-Φ41     870 960
700 900 960 875 815   60 24-Φ48     990 1080
800 1000 1085 990 930   64 24-Φ48     935 1125

主要连接尺寸4.0 MPa

公称压力 PN 公称通径 DN 尺寸[mm]
L D D1 D2 D6 b Z-Φd Ws Hs Hw Hd
4.0 Mpa 50 124 165 125 100 88 20 4-Φ18 250 180 275 325
65 145 185 145 120 110 22 8-Φ18 300 200 290 345
80 165 200 160 135 121 22 8-Φ18 320 220 315 375
100 194 235 190 160 150 24 8-Φ23 400 260 350 405
125 210 270 220 188 176 28 8-Φ25 500 290 370 420
150 229 300 250 218 204 30 8-Φ25 800 310 390 455
200 245 375 320 282 260 38 12-Φ30 1000 350 435 495
250 297 450 385 345 313 42 12-Φ34 1200 390 510 575
300 338 515 450 408 364 46 16-Φ34     555 620
350 400 580 510 465 422 52 16-Φ34     605 675
400 420 660 585 535 474 58 16-Φ41     675 755
450 502 685 610 560 524 60 20-Φ41     735 815
500 533 755 670 612 576 62 20-Φ48     785 870