| 设计标准 | AP16D | ANSI B16.34 |
| 法兰连接结构长度 | AP16D | ANSI B16.10 |
| 结构长度(焊接) | AP16D | ANSI B16.10 |
| 连接法兰 | ANSI B16.5、B16.47 | |
| 对焊端 | ANSI B16.25 | |
| 试验和检验 | AP16D | AP1598 |
| 名称 | WCB类 | CF8类 | CF3类 | CF8M类 | CF3M类 | |
| 阀体左体 | A216-WCB | A315-CF8 | A35-CF3 | A351-CF8M | A351-CF3M | |
| 球体 | B2-B8 | A105-1025 | A182-F304L | A182-F304L | A132-F316 | A182-F316L |
| B8以上 | A216-WCB | A351-CF8M | A351-CF3 | A351-CF8M | A351-CF3M | |
| 阀杆 | A182-F6a | A182-F304 | A182-F304L | A182-F336 | A182-F316L | |
| 阀座 | PTFE/增强PTFE/NYLIN PTFE/Reinforced PTFE/Nyion | |||||
| 阀座支承圈 | A105-1025 | A182-F304 | A182-F304L | A182-F316 | A182-F316L | |
| 弹簧 | 3yc-7/17-49H | |||||
| O形圈 | NBR | 氟橡胶 | ||||
| 螺柱 | A193-B7 | A193-B8 | ||||
| 螺母 | A194-2H | A194-8 | ||||
|
公称压力 PN(Class) |
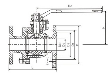
公称通径inch | L | d1 | D | D1 | D2 | D6 | f | f2 | b | Z-φd | H1 | H2 | ||
| RF | BW | 全通径 | 缩径 | ||||||||||||
| 150LB | 1/2 | 108 | 140 | 13 | - | 89 | 60.5 | 35 | - | 2 | - | 12 | 4-15 | - | 59 |
| 3/4 | 117 | 152 | 19 | - | 98 | 70 | 43 | - | 2 | - | 12 | 4-15 | - | 63 | |
| 1 | 127 | 165 | 25 | - | 108 | 79.5 | 51 | - | 2 | - | 12 | 4-15 | - | 75 | |
| 11/4 | 140 | 178 | 32 | - | 117 | 89 | 64 | - | 2 | - | 13 | 4-15 | - | ||
| 11/2 | 165 | 190 | 38 | - | 127 | 98.5 | 73 | - | 2 | - | 15 | 4-15 | - | 95 | |
| 2 | 178 | 216 | 51 | - | 152 | 120.5 | 92 | - | 2 | - | 16 | 4-19 | - | 107 | |
| 21/2 | 190 | 241 | 64 | - | 178 | 139.5 | 105 | - | 2 | - | 18 | 4-19 | - | 142 | |
| 3 | 203 | 283 | 76 | 64 | 190 | 152.5 | 127 | - | 2 | - | 19 | 4-19 | - | 152 | |
| 4 | 229 | 305 | 102 | 76 | 229 | 190.5 | 157 | - | 2 | - | 24 | 8-19 | - | 178 | |
| 5 | 356 | 381 | 127 | 102 | 254 | 216 | 186 | - | 2 | - | 24 | 8-22 | - | 252 | |
| 6 | 394 | 457 | 152 | 127 | 279 | 241.5 | 216 | - | 2 | - | 26 | 8-22 | - | 272 | |
| 8 | 457 | 521 | 203 | 152 | 343 | 298.5 | 270 | - | 2 | - | 29 | 8-22 | - | 398 | |
| 10 | 533 | 559 | 254 | 203 | 406 | 362 | 324 | - | 2 | - | 31 | 12-26 | 335 | 495 | |
| 12 | 610 | 635 | 305 | 254 | 483 | 432 | 381 | - | 2 | - | 32 | 12-26 | 385 | 580 | |
| 14 | 686 | 762 | 337 | 305 | 533 | 476 | 412 | - | 2 | - | 35 | 12-29 | 430 | 625 | |
| 16 | 762 | 838 | 387 | 337 | 597 | 540 | 470 | - | 2 | - | 37 | 16-29 | 470 | 720 | |
| 18 | 864 | 914 | 438 | 337 | 635 | 578 | 533 | - | 2 | - | 40 | 16-32 | - | - | |
| 20 | 914 | 991 | 489 | 387 | 699 | 635 | 584 | - | 2 | - | 43 | 20-32 | 590 | 840 | |
| 24 | 1067 | 1143 | 591 | 489 | 813 | 749.5 | 692 | - | 2 | - | 48 | 20-35 | 700 | 1050 | |
|
公称压力 PN(Class) |
公称通径inch | L | d1 | D | D1 | D2 | D6 | f | f2 | b | Z-φd | H1 | H2 | ||
| RF | BW | 全通径 | 缩径 | ||||||||||||
| 300LB | 1/2 | 140 | 140 | 13 | - | 95 | 66.5 | 35 | - | 2 | - | 15 | 4-15 | - | 59 |
| 3/4 | 152 | 152 | 19 | - | 117 | 82.5 | 43 | - | 2 | - | 16 | 4-19 | - | 63 | |
| 1 | 165 | 165 | 25 | - | 124 | 89 | 51 | - | 2 | - | 18 | 4-19 | - | 75 | |
| 11/4 | 178 | 178 | 32 | - | 133 | 98.5 | 64 | - | 2 | - | 19 | 4-19 | - | - | |
| 11/2 | 190 | 190 | 38 | - | 156 | 114.5 | 73 | - | 2 | - | 19 | 4-22 | - | 95 | |
| 2 | 216 | 216 | 51 | - | 165 | 127 | 92 | - | 2 | - | 23 | 8-19 | - | 107 | |
| 21/2 | 241 | 241 | 64 | - | 190 | 149 | 105 | - | 2 | - | 26 | 8-22 | - | 142 | |
| 3 | 283 | 283 | 76 | 64 | 210 | 168.5 | 127 | - | 2 | - | 29 | 8-22 | - | 152 | |
| 4 | 305 | 305 | 102 | 76 | 254 | 200 | 157 | - | 2 | - | 32 | 8-22 | - | 178 | |
| 5 | 381 | 381 | 127 | 102 | 279 | 235 | 186 | - | 2 | - | 35 | 8-22 | - | 252 | |
| 6 | 403 | 457 | 152 | 127 | 318 | 270 | 216 | - | 2 | - | 37 | 12-22 | - | 272 | |
| 8 | 502 | 521 | 203 | 152 | 381 | 330 | 270 | - | 2 | - | 42 | 12-25 | - | 398 | |
| 10 | 568 | 559 | 254 | 203 | 445 | 387.5 | 324 | - | 2 | - | 48 | 16-29 | 335 | 495 | |
| 12 | 648 | 635 | 305 | 254 | 521 | 451 | 381 | - | 2 | - | 51 | 16-32 | 385 | 580 | |
| 14 | 762 | 762 | 337 | 305 | 584 | 514.5 | 413 | - | 2 | - | 54 | 20-32 | 430 | 625 | |
| 16 | 838 | 838 | 387 | 337 | 648 | 571.5 | 470 | - | 2 | - | 58 | 20-35 | 470 | 720 | |
| 18 | 914 | 914 | 432 | 337 | 711 | 628.5 | 533 | - | 2 | - | 61 | 24-35 | - | - | |
| 20 | 99 | 991 | 483 | 387 | 775 | 686 | 584 | - | 2 | - | 64 | 24-35 | 590 | 840 | |
| 24 | 1143 | 1143 | 591 | 483 | 914 | 813 | 692 | - | 2 | - | 70 | 24-41 | 700 | 1050 | |
|
公称压力 PN(Class) |
公称通径inch | L | d1 | D | D1 | D2 | D6 | f | f2 | b | Z-φd | H1 | H2 | ||
| RF | BW | 全通径 | 缩径 | ||||||||||||
| 400LB | 1/2 | 140 | 140 | 13 | - | 95 | 66.7 | 35 | - | 6.4 | - | 14.5 | 4-15 | - | 59 |
| 3/4 | 152 | 152 | 19 | - | 117 | 82.5 | 43 | - | 6.4 | - | 16 | 4-19 | - | 63 | |
| 1 | 165 | 165 | 25 | - | 124 | 88.9 | 51 | - | 6.4 | - | 17.5 | 4-19 | - | 75 | |
| 11/4 | 178 | 178 | 32 | - | |||||||||||
| 11/2 | 190 | 190 | 38 | - | 156 | 114.3 | 73 | - | 6.4 | - | 22.5 | 4-22 | - | 95 | |
| 2 | 216 | 216 | 51 | - | 165 | 127 | 92 | - | 6.4 | - | 25.5 | 8-19 | - | 107 | |
| 21/2 | 241 | 241 | 64 | - | |||||||||||
| 3 | 283 | 283 | 76 | 64 | |||||||||||
| 4 | 305 | 305 | 102 | 76 | 254 | 200 | 157 | - | 6.4 | - | 35 | 8-26 | - | 178 | |
| 5 | 381 | 381 | 127 | 102 | |||||||||||
| 6 | 403 | 457 | 152 | 127 | 318 | 269.9 | 216 | - | 6.4 | - | 41.5 | 12-26 | 250 | 300 | |
| 8 | 502 | 521 | 203 | 152 | 381 | 330.2 | 270 | - | 6.4 | - | 18 | 12-29 | 294 | 374 | |
| 10 | 568 | 559 | 254 | 203 | 445 | 387.3 | 324 | - | 6.4 | - | 54 | 16-32 | 370 | 445 | |
| 12 | 648 | 635 | 305 | 254 | 520 | 450.8 | 381 | - | 6.4 | - | 57.5 | 16-35 | 420 | 515 | |
| 14 | 762 | 762 | 337 | 305 | 585 | 514.3 | 413 | - | 6.4 | - | 60.5 | 20-35 | 460 | 550 | |
| 16 | 838 | 838 | 387 | 337 | 650 | 571.5 | 470 | - | 6.4 | - | 63.5 | 20-39 | 505 | 615 | |
| 18 | 914 | 914 | 432 | 337 | |||||||||||
| 20 | 991 | 991 | 483 | 387 | 775 | 685.8 | 584 | - | 6.4 | - | 70 | 24-42 | 630 | 810 | |
| 24 | 1143 | 1143 | 591 | 483 | 915 | 812.8 | 692 | - | 6.4 | - | 76.5 | 24-48 | 825 | 1010 | |
|
公称压力 PN(Class) |
公称通径inch | L | d1 | D | D1 | D2 | D6 | f | f2 | b | ZZ-φd | H1 | H2 | ||
| RF | BW | 全通径 | 缩径 | ||||||||||||
| 600LB | 1/2 | 165 | 165 | 13 | - | 95 | 66.5 | 35 | - | 6.4 | - | 15 | 4-15 | - | 59 |
| 3/4 | 191 | 191 | 19 | - | 118 | 82.5 | 43 | - | 6.4 | - | 16 | 4-19 | - | 63 | |
| 1 | 216 | 216 | 25 | - | 124 | 89 | 51 | - | 6.4 | - | 18 | 4-19 | - | 75 | |
| 11/4 | 229 | 229 | 32 | - | 133 | 98.5 | 64 | - | 6.4 | - | 21 | 4-19 | - | - | |
| 11/2 | 241 | 241 | 38 | - | ,, , , , , 156 | 114.5 | 73 | - | 6.4 | - | 23 | 4-22 | - | 95 | |
| 2 | 292 | 292 | 51 | 38 | 165 | 127 | 92 | - | 6.4 | - | 26 | 8-19 | - | 107 | |
| 21/2 | 330 | 330 | 64 | 51 | 190 | 179 | 105 | - | 6.4 | - | 29 | 8-22 | - | 178 | |
| 3 | 356 | 356 | 76 | 64 | 210 | 168.5 | 127 | - | 6.4 | - | 32 | 8-22 | - | - | |
| 4 | 432 | 432 | 102 | 76 | 273 | 216 | 157 | - | 6.4 | - | 38 | 8-25 | - | - | |
| 6 | 559 | 559 | 152 | 127 | 356 | 292 | 216 | - | 6.4 | - | 48 | 12-29 | 250 | 300 | |
| 8 | 660 | 660 | 200 | 152 | 419 | 349 | 270 | - | 6.4 | - | 56 | 12-32 | 294 | 374 | |
| 10 | 787 | 787 | 248 | 200 | 508 | 432 | 324 | - | 6.4 | - | 64 | 16-35 | 370 | 445 | |
| 12 | 838 | 838 | 298 | 248 | 559 | 489 | 381 | - | 6.4 | - | 67 | 20-35 | 420 | 515 | |
| 14 | 889 | 889 | 327 | 298 | 603 | 527 | 413 | - | 6.4 | - | 70 | 20-38 | 460 | 550 | |
| 16 | 991 | 991 | 375 | 327 | 686 | 603 | 470 | - | 6.4 | - | 77 | 20-41 | 505 | 615 | |
| 18 | 1092 | 1092 | 432 | 327 | 743 | 654 | 533 | - | 6.4 | - | 83 | 20-45 | 630 | 810 | |
| 20 | 1194 | 1194 | 483 | 375 | 813 | 724 | 584 | - | 6.4 | - | 89 | 24-45 | - | - | |
|
公称压力 PN(Class) |
公称通径inch | L | d1 | D | D1 | D2 | D6 | f | f2 | b | ZZ-φd | H1 | H2 | ||
| RF | BW | 全通径 | 缩径 | ||||||||||||
| 900LB | 2 | 368 | 368 | 47 | 38 | 216 | 165.1 | 92 | - | 7.92 | - | 38.5 | 8-26 | - | - |
| 3 | 381 | 381 | 73 | 57 | 244 | 190.5 | 127 | 123.82 | 7.92 | - | 41.5 | 8-29 | 191 | 259 | |
| 4 | 457 | 457 | 98 | 73 | 292 | 234.5 | 157 | 149.22 | 7.92 | - | 44.5 | 8-32 | 216 | 297 | |
| 6 | 610 | 610 | 146 | 121 | 381 | 317.5 | 216 | 211.12 | 7.92 | - | 50 | 12-32 | 270 | 360 | |
| 8 | 737 | 737 | 190 | 146 | 470 | 393.7 | 270 | 269.88 | 7.92 | - | 63.5 | 12-39 | 322 | 394 | |
| 10 | 838 | 838 | 238 | 180 | 545 | 459.5 | 324 | 323.85 | 7.92 | - | 70 | 16-39 | 420 | 502 | |
| 12 | 965 | 965 | 282 | 238 | 610 | 533.4 | 381 | 381.00 | 7.92 | - | 79.5 | 20-39 | 470 | 572 | |
| 14 | 1029 | 1029 | - | - | - | - | - | 419.10 | 11.13 | - | 86 | 20-42 | 510 | 675 | |
| 16 | 1130 | 1130 | - | - | - | - | - | 469.90 | 11.13 | - | 89 | 20-45 | 600 | 762 | |
| 18 | 1219 | 1219 | - | - | - | - | - | 533.40 | 12.7 | - | 102 | 20-51 | 700 | 866 | |
| 20 | 1334 | 1334 | - | - | - | - | - | 584.20 | 12.7 | - | 108 | 20-54 | 720 | 894 | |
|
公称压力 PN(Class) |
公称通径inch | L | d1 | D | D1 | D2 | D6 | f | f2 | b | ZZ-φd | H1 | H2 | ||
| RF | BW | 全通径 | 缩径 | ||||||||||||
| 1500LB | 2 | 368 | 368 | 47 | 47 | 216 | 165.1 | 124 | 95.25 | 7.92 | - | 38.5 | 8-26 | 126 | 217 |
| 3 | 470 | 470 | 73 | 73 | 267 | 203.2 | 168 | 136.92 | 7.92 | - | 48 | 8-32 | 191 | 259 | |
| 4 | 564 | 564 | 98 | 98 | 311 | 245.5 | 194 | 161.92 | 7.92 | - | 54 | 8-35 | 216 | 297 | |
| 6 | 705 | 705 | 146 | 146 | 394 | 317.5 | 248 | 211.12 | 9.52 | - | 83 | 12-39 | 296 | 365 | |
| 8 | 832 | 832 | 190 | 190 | 483 | 393.7 | 318 | 269.88 | 11.13 | - | 92 | 12-45 | 378 | 475 | |
| 10 | 991 | 991 | 238 | 238 | 565 | 482.6 | 371 | 323.85 | 11.13 | - | 108 | 12-51 | 495 | 578 | |
| 12 | 1130 | 1130 | 282 | 282 | 675 | 571.5 | 438 | 381.00 | 14.27 | - | 124 | 12-54 | 542 | 696 | |
| 14 | 1257 | 1257 | - | - | 826 | 635 | 489 | 419.10 | 15.88 | - | 133.5 | 16-61 | 590 | 761 | |
| 16 | 1384 | 1384 | - | - | 915 | 704.5 | 546 | 469.90 | 17.48 | - | 146.5 | 16-67 | 670 | 831 | |
| 20 | 1664 | 1664 | - | - | 1170 | 990.6 | 673 | 584.20 | 17.48 | - | 178 | 16-80 | 750 | 950 | |
QQ: 769693943
Phone: 13816746668
Tel: 021-31001158
Email: 769693943
Add: 上海市金山区沪杭公路4169号