CARX复合式清水排气阀
更新时间:2024-04-13 10:04:41
CARX复合式清水排气阀
- 1、产品型号:CARX。
- 2、公称通径:DN15~DN200。
- 3、公称压力:1.6MPa-2.5MPa。
- 4、适用温度:-29ºC~+80ºC。
- 5、阀体材质:铸铁、铸钢、不锈钢。
- 6、适用介质:水。
- 7、结构形式:浮球式。
- 8、连接方式:法兰式。
- 9、驱动方式:自动。
- 10、制造标准:国标GB、德国DIN、美国API、ANSI。
产品说明
CARX复合式清水排气阀用于管路上的最高点或有闭气的地方,排除管内的气体来疏通管道,达到正常工作,如不装排气阀,管内流动的液体产生动热引起气体,形成短路,使管道出水容量达不到要求,其次,管道运转时出现停电、停泵管道会出现负压力,而会引起管道振动或破裂,排(吸)气阀就迅速把空气吸入管内,防止管道振动或破裂。本阀装设于泵埔出口处或送配水管线中,用以大量排除管道中的集结之空气,以增进水管及抽水机使用效率,且与管内一旦出现负压时,此阀能迅速吸入空气,以保管线因负压所产生损坏。.
工作原理
当管内开始注水时,塞头停留在开启位置,进行大量排气,当空气排完时,阀内积水浮球被浮起,传动塞头至关闭位置,停止大量排气;当管内水正常输送时,如有少量空气聚集在阀内到相当程度,阀内水位下降,浮球随之下降,此时空气则由小孔排出。当抽水机停止,管内水流空时,或遇管内产生负压时,此时塞头开启,吸入空气确保管线安全。
主要零部件
|
序号 |
名称 |
材质 |
|
1 |
阀体 |
HT200 |
|
2 |
阀盖 |
HT200 |
|
3 |
浮球 |
SUS 304 |
|
4 |
杠杆架 |
铸铜ZH59 |
|
5 |
杆 |
铸铜ZH59 |
|
6 |
塞头 |
丁睛橡胶NBR |
每小时排气量表
|
规格DN |
25 |
50 |
80 |
100 |
150 |
200 |
250 |
300 |
350 |
400 |
|
立方米/小时 |
2-88 |
85-352 |
22-904 |
34-1413 |
76-3179 |
135-8831 |
212-8831 |
305-12717 |
415-17309 |
542-22608 |
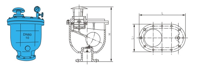
外形结构图
主要外形尺寸
|
公称通径DN(mm) |
尺寸(mm) |
|
L |
L1 |
H |
Z |
d |
|
15 |
280 |
176 |
330 |
-- |
-- |
|
20 |
280 |
176 |
330 |
-- |
-- |
|
25 |
280 |
176 |
330 |
-- |
-- |
|
32 |
280 |
176 |
330 |
-- |
-- |
|
50 |
300 |
190 |
445 |
4 |
18 |
|
65 |
360 |
200 |
475 |
4 |
18 |
|
80 |
365 |
210 |
500 |
8 |
18 |
|
100 |
390 |
245 |
560 |
8 |
18 |
|
150 |
460 |
275 |
605 |
8 |
22 |
|
200 |
537 |
330 |
686 |
8 |
22 |
安装位置的选择
CARX复合式清水排气阀的安装位置直接影响着排气效果和管道的运行状态。设计人员在设计时,往往局限于局部最高点,排气阀安装位置有多种,只有对整个管道综合考虑,才能使排气效果达到最佳。常见的安装地点有以下几个位置:局部最高点、下降坡度变大点、上升坡度变小点、长距离无折点上升或下降管段。
安装总图
安装说明
1、于安装前,请先检查并清除主体内的杂物。
2、在阀前装一只闸阀,以便下次的安装维修。阀如果安装于荫井内,应有足够空间以便容3、纳技术人员调整及维护工作。
4、若复合式清水排气阀安装于室外,请注意阀门的保温,以防阀门内水结冰或冻裂阀门。
5、若排气阀所在管线送断水频繁,建议在排气阀前加装一个缓冲阀。
上一篇:没有了 下一篇:没有了
Top