021-31001158  mmvalves@126.com

H642X气动池底排泥阀

更新时间:2024-04-13 10:04:23

H642X气动池底排泥阀

  • 1、产品型号:H642X。
  • 2、公称通径:DN100~DN400。
  • 3、公称压力:1.0MPa~1.6MPa。
  • 4、适用温度:-0ºC~+80ºC。
  • 5、阀体材质:铸铁、铸钢、不锈钢。
  • 6、适用介质:水、污水。
  • 7、功能作用:排泥。
  • 8、连接方式:法兰。
  • 9、驱动方式:气动。
  • 10、制造标准:国标GB、德国DIN、美国API、ANSI。

产品说明

H642X气动池底排泥阀又名池底快开排泥阀,主要安装于各类池子底部,作排除泥沙用。是结合国外先进技术自主开发生产,是现目前国内质量最稳定的排泥阀。还可按照用户要求生产和加工。

结构原理

H642X气动池底排泥阀由阀体,液压缸,活塞,阀杆,阀瓣组成。液压缸是液体工具,液体作为动力,活塞,阀杆作为开关。开启只需要一分钟可以打开阀板,此阀必须配用手动换向阀或电磁阀可远距离控制排泥阀开关。该阀密封件性能强,开关灵活,检修方便,使用寿命长等特点,寿命可长达五年以上,保用期十八个月。

标准规范

设计与制造标准:GB12235-89
法兰连接标准:GB/T17241.6-98
试验和检验标准:GB13927-92
阀门材料标准:GB12226-89 

技术参数

 阀体部分 型号 H642X-10 H642X-16
公称压力(MPa) 1.0 1.6
试验
压力
密封(MPa) 1.1 1.76
强度(MPa) 1.5 2.4
适用介质
温度(°C) <80
 
驱动部分
驱动介质 水(使用压缩空气,订货注明)
驱动压力(MPa) 0.3—1.0
介质温度(°C) <50
 控制部分
(另配)
控制器输入电压(V) AC220
电磁阀线圈电压(V) AC220
电磁阀线圈功力(W) 10—15

零部件材料

零件名称 阀座 阀瓣 阀杆 缸体 活塞板 活塞皮碗
材料牌号 HT200 HT200 不锈钢 HT200 HT200 耐磨丁晴橡胶

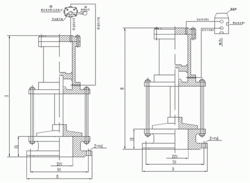
外形结构图

 

主要外形尺寸

公称通径 D D1 H H1 Z-φd 进液管连接
100 215 180 450 110 8-18 1/2”
150 280 240 490 110 8-23 1/2”
200 335 295 530 110 8-23 1/2”
250 390 350 570 110 12-23 1/2”
300 440 400 610 140 12-23 3/4”
400 565 515 710 140 16-25 1”
500 670 620 810 160 20-25 1”

安装示意图

 

上一篇:没有了 下一篇:没有了