021-31001158  mmvalves@126.com

J944X隔膜式电动快开排泥阀

更新时间:2024-04-13 10:04:25

J944X隔膜式电动快开排泥阀

  • 1、产品型号:J941X、J944X。
  • 2、公称通径:DN50~DN400。
  • 3、公称压力:1.0MPa~1.6MPa。
  • 4、适用温度:-0ºC~+80ºC。
  • 5、阀体材质:铸铁、铸钢、不锈钢。
  • 6、适用介质:水、污水。
  • 7、功能作用:排泥。
  • 8、连接方式:法兰。
  • 9、驱动方式:电动。
  • 10、制造标准:国标GB、德国DIN、美国API、ANSI。

产品说明

J944X隔膜式电动快开排泥阀适用于水处理厂各类沉淀池、污泥池、用以排放水池内泥沙,污物及废水、该阀采用双室隔膜结构,运动无磨损,不因杂质而漏水,对泥沙淤积不敏感、润滑、密封性能好。采用衬胶阀板,阀座斜度开口不易沉积泥杂物,驱动介质压力低,采用手动或电动集中控制,经久耐用、使用寿命长。

工作原理

J944X隔膜式电动快开排泥阀由直角式阀体、支架和电动头等三大部分组成。由电动头带动阀板开启或关闭,当停电时也可用手动开启或关闭,一阀两种开启或关闭,阀板为软密封,关闭后具有密封性能好,无渗漏等优点。

主要参数

压力等级  0.6MPa-1.6MPa 
电动头电压  220V、380V,订货时注明 
阀体、支架材料  铸铁,球墨铸铁,WCB 
阀杆材料  不锈钢 
阀板材料  球墨铸铁,热合橡胶、WCB+热合橡胶 
法兰连接标准  GB/T 17241.6-98 
试压标准  GB/T 13927-92 
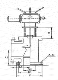
注:高度H,如用户需要加高订货时注明,不注明按尺寸表中H供货 

外形结构图

 

主要外形尺寸

DN L1 L2 H D D1 Z-фd
50 110 95 200 165 125 4-8
80 135 125 230 200 160 4-8
100 160 125 250 220 180 8-18
150 205 145 300 285 340 8-23
200 220 185 350 340 295 8-23
250 260 205 400 395 350 12-23
300 280 245 450 445 400 12-23
400 335 310 550 656 515 16-25

保管维护

1、阀门应存干燥通风的室内,通路两端须堵塞。
2、短期内暂不使用的阀门,应取出石棉填料,以免产生电化学腐蚀,损坏阀杆。
3、阀门进出口要用蜡纸或塑料片封住,以防进去脏东西。FHB自动化在线网
4、长期存放的阀门应定期检查,清除污物,并在加工面上涂防锈油。
5、放置室外的阀门,必须盖上油毡或苫布之类防雨、防尘物品。存放阀门的仓库要保持清洁干燥。

使用维护

1、阀杆螺纹经常与阀杆螺母摩擦,要涂一点黄油或石墨粉,起润滑作用。
2、不经常启闭的阀门,要定期转动手轮,对阀杆螺纹加润滑剂,以防咬住。
3、室外阀门,要对阀杆加保护套,以防雨、雪、尘土锈污。
4、如阀门系机械传动,要按时对变速箱添加润滑油并保持阀门的清洁。
5、不要依靠阀门支持其它重物,不要在阀门上站立。
6、阀杆,特别是螺纹部分,要经常清洁并添加新的润滑剂,防止尘土中的硬杂物,磨损螺纹和阀杆表面,影响使用寿命。 

上一篇:没有了 下一篇:没有了