021-31001158  mmvalves@126.com

J41H碳钢截止阀

更新时间:2024-04-13 10:04:26

J41H碳钢截止阀

  • 1、产品型号:J41H。
  • 2、公称通径:DN15~DN600。
  • 3、公称压力:1.6MPa~16.0MPa。
  • 4、适用温度:-29ºC~+570ºC。
  • 5、阀体材质:WCB、铸钢、碳钢、铬钼钢、不锈钢。
  • 6、适用介质:水、油、蒸汽、气体、液体。
  • 7、结构形式:截止式。
  • 8、连接方式:法兰。
  • 9、驱动方式:手轮、伞齿轮、气动、电动。
  • 10、制造标准:国标GB、德国DIN、美国API、ANSI。

产品说明

J41H碳钢截止阀的启闭件是圆柱形的阀瓣,密封面呈平面或锥面,阀瓣沿流体的中心线作直线运动。国标截止阀只适用于全开和全关,一般不用来调节流量,定做时允许作调节和节流。公称压力1.6MPa-16.0MPa,工作温度-29~550℃的石油、化工、制药、化肥、电力行业等各种工况的管路上,切断或接通管路介质。驱动方式有手动、齿轮传动、电动、气动等。

产品特点

1、结构简单,制造和维修比较方便
2、工作行程小,启闭时间短
3、密封性好,密封面间磨擦力小,寿命较长

执行标准

设计与制造 结构长度 法兰尺寸 压力-温度 试验-检验
GB12235 GB12221 GB9113 JB79 GB9131 GB/T13927 JB/T9092

性能参数

型号 J41H-16C~160C J41Y-16C~160C J41W-16P~160P
工作压力(MPa) 1.6~16.0
适用温度(℃) ≤425 ≤150
适用介质 水、蒸汽、油品 弱腐蚀性介质
材料 阀体、阀盖 碳素钢 铬镍钛不锈钢
阀杆 铬不锈钢 铬镍钛不锈钢
密封面 堆焊铁基合金 堆焊硬基合金 本体材料
填料 石棉石墨、柔性石墨、聚四氟乙烯

压力试验MPa

公称压力 1.6 2.5 4.0 6.4 10.0 16.0
强度试验 2.4 3.8 6.0 9.6 15.0 24.0
水密封试验 1.8 2.8 4.4 7.4 11.0 18.0
上密封试验 1.8 2.8 4.4 7.04 11.0 18.0
气密封试验 0.4-0.7

主要零件材料及性能

体盖扳 阀杆 密封面 垫片(环) 填料 工作温度℃ 适用介质
WCB 2Cr13 13Cr
STL
本体材料
尼龙
增强柔性石墨
1Crl3/柔性石墨
08软钢
0Cr18Ni9Ti
OCr18Ni12Mo2Ti
柔性石墨
增强柔性石墨
SFB-260
SFP-260
≤425 水、蒸汽、油品
WC1 38CrMoAI
25Cr2MoV
≤450
WC6 ≤540
WC9 ≤570
ZGCr5Mo ≤540
ZG1Cr18Ni9Ti 1Cr18Ni9Ti ≤200 硝酸类
ZGCr18Ni12Mo2Ti 1C18Ni12Mo2Ti ≤200 醋酸类

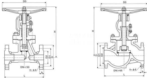
外形结构图

主要外形尺寸PN l.6MPa

1.6MPa DN L D D1 D2 b n-Φd H D0
凸面法兰
RF
J41H
J41Y
J41W
J41F
J41N
16C
16P
16R
16I
10 130 90 60 40 14 4-Φ14 198 120
15 130 95 65 45 14 4-Φ14 218 120
20 150 105 75 55 14 4-Φ14 258 140
25 160 115 85 65 14 4-Φ14 275 140
32 180 135 100 78 16 4-Φ18 280 160
40 200 145 110 85 16 4-Φ18 330 180
50 230 160 125 100 16 4-Φ18 350 200
65 290 180 145 120 18 4-Φ18 370 280
80 310 195 160 135 20 8-Φ18 400 280
100 350 215 180 155 20 8-Φ18 415 320
125 400 245 210 185 22 8-Φ18 460 360
150 480 280 240 210 24 8-Φ23 510 450
200 600 335 295 265 26 12-Φ23 710 500
250 650 405 335 320 30 12-Φ25 786 550
300 750 460 410 375 30 12-Φ25 925 600

主要外形尺寸PN 2.5MPa

2.5MPa DN L D D1 D2 b n-Φd H D0
凸面法兰
RF
J41H
J41Y
J41W
J41F
J41N
25C
25P
25R
25I
10 130 90 60 40 16 4-Φ14 198 120
15 130 95 65 45 16 4-Φ14 218 120
20 150 105 75 55 16 4-Φ14 258 140
25 160 115 85 65 16 4-Φ14 275 140
32 180 135 100 78 18 4-Φ18 280 160
40 200 145 110 85 18 4-Φ18 330 180
50 230 160 125 100 20 4-Φ18 350 200
65 290 180 145 125 22 8-Φ18 400 280
80 310 195 160 135 22 8-Φ18 355 280
100 350 230 190 160 24 8-Φ23 415 320
125 400 270 220 188 28 8-Φ25 460 360
150 480 300 250 218 30 8-Φ25 510 450
200 600 360 310 278 34 12-Φ25 710 500
250 622 425 370 332 36 12-Φ30 786 550
300 698 485 430 390 40 16-Φ30 925 600

主要外形尺寸PN 4.0MPa

4.0MPa DN L D D1 D2 D6 b n-Φd H D0
凹凸法兰
MFM
J41H
J41Y
J41W
J41N
40
40P
40R
40I
10 130 90 60 41 35 14 4-Φ14 198 120
15 130 95 65 45 40 16 4-Φ14 233 120
20 150 105 75 55 51 16 4-Φ14 295 140
25 160 115 85 65 58 16 4-Φ14 285 160
32 180 135 100 78 66 18 4-Φ18 302 160
40 200 145 110 85 76 18 4-Φ18 355 200
50 230 160 125 100 88 20 4-Φ18 373 200
65 290 180 145 120 110 22 8-Φ18 408 280
80 310 195 160 135 121 22 8-Φ18 436 280
100 350 230 190 160 150 24 8-Φ23 480 320
125 4001 270 220 188 176 28 8-Φ25 588 360
150 480 300 250 218 204 30 8-Φ25 611 400
200 600 375 320 282 260 38 12-Φ30 720 400

主要外形尺寸PN 6.4MPa

6.4MPa DN L D D1 D2 D6 b n-Φd H D0
凹凸法兰
MFM
J41H
J41Y
J41W
J41N
 
64
64P
64R
64I
15 170 105 75 55 40 18 4-14Φ 195 400
20 190 125 90 68 51 20 4-Φ18 228 160
25 210 135 100 78 58 22 4-Φ18 275 180
32 230 150 110 82 66 24 4-Φ23 325 200
40 260 165 125 95 76 24 4-Φ23 360 240
50 300 175 135 105 88 26 4-Φ23 410 280
65 340 200 160 130 110 28 8-Φ23 450 320
80 380 210 170 140 121 30 8-Φ23 485 360
100 430 250 200 168 150 32 8-Φ25 537 400
125 500 295 240 202 176 36 8-Φ30 631 400
150 550 340 280 240 204 38 8-Φ34 646 450
200 650 405 345 300 260 44 12-Φ34 813 500

主要外形尺寸PN 10.0MPa

10.0MPa DN L D D1 D2 D6 b n-Φd H D0
凹凸法兰
MFM
J41H
J41Y
J41W
 
100
100P
100R
100I
10 170 100 70 50 35 20 4-Φ14 198 140
15 170 105 75 55 40 20 4-Φ14 202 140
20 190 125 90 68 51 22 4-Φ18 228 160
25 210 135 100 78 58 24 4-Φ18 250 180
32 230 150 110 82 66 24 4-Φ23 326 200
40 260 165 125 95 76 26 4-Φ23 360 240
50 300 195 145 112 88 28 4-Φ25 414 280
65 340 220 170 138 110 32 8-Φ25 434 320
80 380 230 1810 148 121 34 8-Φ25 547 360
100 430 265 210 172 150 38 8-Φ30 621 400
125 500 310 250 210 176 42 8-Φ34 732 400
150 550 350 290 250 204 46 12-Φ34 840 450

主要外形尺寸PN 16.0MPa

16.0MPa DN L D D1 D2 D6 b n-Φd H D0
凹凸法兰
MFM
J41H
J41Y
J41W
 
160
160P
160R
160I
200 65 430 360 312 260 54 12-Φ41 925 500
15 170 110 75 52 40 24 4-Φ18 148 140
20 190 130 90 62 51 26 4-Φ23 158 160
25 210 140 100 72 58 28 4-Φ23 175 180
32 230 165 115 85 66 30 4-Φ25 200 200
40 260 175 125 92 76 32 4-Φ27 231 240
50 300 215 165 132 88 36 8-Φ25 262 280
65 340 245 190 152 110 44 8-Φ30 303 320
80 380 260 205 168 121 46 8-Φ30 341 360
100 430 300 240 200 150 48 8-Φ34 485 400

上一篇:没有了 下一篇:没有了


CATEGORIES

CONTACT US

QQ: 769693943

Phone: 13816746668

Tel: 021-31001158

Email: 769693943

Add: 上海市金山区沪杭公路4169号