| 公称压力PN(MPa)Nominal pressure | 1.6 | 2.5 | 4.0 | 6.4 | 10.0 | 16.0 |
| 壳体强度试验Shell strength test | 2.4 | 3.8 | 6.0 | 9.6 | 15 | 24 |
| 上密封试验Back seal test | 1.8 | 2.8 | 4.4 | 7.0 | 11 | 18 |
| 密封试验Seal test | 1.8 | 2.8 | 4.4 | 7.0 | 11 | 18 |
| 产品型号 | 适用介质 | 适用温度(℃) |
|
J41(H.Y)-C型 J941(H.Y)-C型 |
水、蒸汽、油品 |
≤425℃ ≤450℃ |
|
J41Y-I型 J941Y-I型 |
水、蒸汽、油品 | ≤550℃ |
| 产品类型 | 零件名称 | |||||||
| 阀体、阀盖 | 阀杆 | 阀瓣 | 密封面 | 阀杆螺母 | 填料 | 紧固件 | 手轮 | |
| J41(H.Y)-C型 J941(H.Y)-C型 | 25、WCB | 铬不锈钢 | 2Cr1325 | H:不锈钢Y:钴基硬质合金钢 | 铝青铜 | 柔性石墨 | 优质碳钢 | 可锻铸铁 |
| J41Y-I型J941Y-I型 | 铬钼钢 | 铬钼钢 | 合金钢 | 钴基硬质合金钢 | 铝青铜 | 柔性石墨 | 合金钢 | 可锻铸铁 |
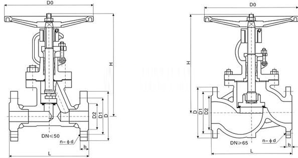
| 1.6MPa | DN | L | D | D1 | D2 | b | n-Φd | H | D0 |
|
凸面法兰 RF J41Y 16I |
10 | 130 | 90 | 60 | 40 | 14 | 4-Φ14 | 198 | 120 |
| 15 | 130 | 95 | 65 | 45 | 14 | 4-Φ14 | 218 | 120 | |
| 20 | 150 | 105 | 75 | 55 | 14 | 4-Φ14 | 258 | 140 | |
| 25 | 160 | 115 | 85 | 65 | 14 | 4-Φ14 | 275 | 140 | |
| 32 | 180 | 135 | 100 | 78 | 16 | 4-Φ18 | 280 | 160 | |
| 40 | 200 | 145 | 110 | 85 | 16 | 4-Φ18 | 330 | 180 | |
| 50 | 230 | 160 | 125 | 100 | 16 | 4-Φ18 | 350 | 200 | |
| 65 | 290 | 180 | 145 | 120 | 18 | 4-Φ18 | 370 | 280 | |
| 80 | 310 | 195 | 160 | 135 | 20 | 8-Φ18 | 400 | 280 | |
| 100 | 350 | 215 | 180 | 155 | 20 | 8-Φ18 | 415 | 320 | |
| 125 | 400 | 245 | 210 | 185 | 22 | 8-Φ18 | 460 | 360 | |
| 150 | 480 | 280 | 240 | 210 | 24 | 8-Φ23 | 510 | 450 | |
| 200 | 600 | 335 | 295 | 265 | 26 | 12-Φ23 | 710 | 500 | |
| 250 | 650 | 405 | 335 | 320 | 30 | 12-Φ25 | 786 | 550 | |
| 300 | 750 | 460 | 410 | 375 | 30 | 12-Φ25 | 925 | 600 |
| 2.5MPa | DN | L | D | D1 | D2 | b | n-Φd | H | D0 |
|
凸面法兰 RF J41Y 25I |
10 | 130 | 90 | 60 | 40 | 16 | 4-Φ14 | 198 | 120 |
| 15 | 130 | 95 | 65 | 45 | 16 | 4-Φ14 | 218 | 120 | |
| 20 | 150 | 105 | 75 | 55 | 16 | 4-Φ14 | 258 | 140 | |
| 25 | 160 | 115 | 85 | 65 | 16 | 4-Φ14 | 275 | 140 | |
| 32 | 180 | 135 | 100 | 78 | 18 | 4-Φ18 | 280 | 160 | |
| 40 | 200 | 145 | 110 | 85 | 18 | 4-Φ18 | 330 | 180 | |
| 50 | 230 | 160 | 125 | 100 | 20 | 4-Φ18 | 350 | 200 | |
| 65 | 290 | 180 | 145 | 125 | 22 | 8-Φ18 | 400 | 280 | |
| 80 | 310 | 195 | 160 | 135 | 22 | 8-Φ18 | 355 | 280 | |
| 100 | 350 | 230 | 190 | 160 | 24 | 8-Φ23 | 415 | 320 | |
| 125 | 400 | 270 | 220 | 188 | 28 | 8-Φ25 | 460 | 360 | |
| 150 | 480 | 300 | 250 | 218 | 30 | 8-Φ25 | 510 | 450 | |
| 200 | 600 | 360 | 310 | 278 | 34 | 12-Φ25 | 710 | 500 | |
| 250 | 622 | 425 | 370 | 332 | 36 | 12-Φ30 | 786 | 550 | |
| 300 | 698 | 485 | 430 | 390 | 40 | 16-Φ30 | 925 | 600 |
| 4.0MPa | DN | L | D | D1 | D2 | D6 | b | n-Φd | H | D0 |
|
凹凸法兰 MFM J41Y 40I |
10 | 130 | 90 | 60 | 41 | 35 | 14 | 4-Φ14 | 198 | 120 |
| 15 | 130 | 95 | 65 | 45 | 40 | 16 | 4-Φ14 | 233 | 120 | |
| 20 | 150 | 105 | 75 | 55 | 51 | 16 | 4-Φ14 | 295 | 140 | |
| 25 | 160 | 115 | 85 | 65 | 58 | 16 | 4-Φ14 | 285 | 160 | |
| 32 | 180 | 135 | 100 | 78 | 66 | 18 | 4-Φ18 | 302 | 160 | |
| 40 | 200 | 145 | 110 | 85 | 76 | 18 | 4-Φ18 | 355 | 200 | |
| 50 | 230 | 160 | 125 | 100 | 88 | 20 | 4-Φ18 | 373 | 200 | |
| 65 | 290 | 180 | 145 | 120 | 110 | 22 | 8-Φ18 | 408 | 280 | |
| 80 | 310 | 195 | 160 | 135 | 121 | 22 | 8-Φ18 | 436 | 280 | |
| 100 | 350 | 230 | 190 | 160 | 150 | 24 | 8-Φ23 | 480 | 320 | |
| 125 | 4001 | 270 | 220 | 188 | 176 | 28 | 8-Φ25 | 588 | 360 | |
| 150 | 480 | 300 | 250 | 218 | 204 | 30 | 8-Φ25 | 611 | 400 | |
| 200 | 600 | 375 | 320 | 282 | 260 | 38 | 12-Φ30 | 720 | 400 |
| 6.4MPa | DN | L | D | D1 | D2 | D6 | b | n-Φd | H | D0 |
|
凹凸法兰 MFM J41Y 64I |
15 | 170 | 105 | 75 | 55 | 40 | 18 | 4-14Φ | 195 | 400 |
| 20 | 190 | 125 | 90 | 68 | 51 | 20 | 4-Φ18 | 228 | 160 | |
| 25 | 210 | 135 | 100 | 78 | 58 | 22 | 4-Φ18 | 275 | 180 | |
| 32 | 230 | 150 | 110 | 82 | 66 | 24 | 4-Φ23 | 325 | 200 | |
| 40 | 260 | 165 | 125 | 95 | 76 | 24 | 4-Φ23 | 360 | 240 | |
| 50 | 300 | 175 | 135 | 105 | 88 | 26 | 4-Φ23 | 410 | 280 | |
| 65 | 340 | 200 | 160 | 130 | 110 | 28 | 8-Φ23 | 450 | 320 | |
| 80 | 380 | 210 | 170 | 140 | 121 | 30 | 8-Φ23 | 485 | 360 | |
| 100 | 430 | 250 | 200 | 168 | 150 | 32 | 8-Φ25 | 537 | 400 | |
| 125 | 500 | 295 | 240 | 202 | 176 | 36 | 8-Φ30 | 631 | 400 | |
| 150 | 550 | 340 | 280 | 240 | 204 | 38 | 8-Φ34 | 646 | 450 | |
| 200 | 650 | 405 | 345 | 300 | 260 | 44 | 12-Φ34 | 813 | 500 |
| 10.0MPa | DN | L | D | D1 | D2 | D6 | b | n-Φd | H | D0 |
|
凹凸法兰 MFM J41Y 100I |
10 | 170 | 100 | 70 | 50 | 35 | 20 | 4-Φ14 | 198 | 140 |
| 15 | 170 | 105 | 75 | 55 | 40 | 20 | 4-Φ14 | 202 | 140 | |
| 20 | 190 | 125 | 90 | 68 | 51 | 22 | 4-Φ18 | 228 | 160 | |
| 25 | 210 | 135 | 100 | 78 | 58 | 24 | 4-Φ18 | 250 | 180 | |
| 32 | 230 | 150 | 110 | 82 | 66 | 24 | 4-Φ23 | 326 | 200 | |
| 40 | 260 | 165 | 125 | 95 | 76 | 26 | 4-Φ23 | 360 | 240 | |
| 50 | 300 | 195 | 145 | 112 | 88 | 28 | 4-Φ25 | 414 | 280 | |
| 65 | 340 | 220 | 170 | 138 | 110 | 32 | 8-Φ25 | 434 | 320 | |
| 80 | 380 | 230 | 1810 | 148 | 121 | 34 | 8-Φ25 | 547 | 360 | |
| 100 | 430 | 265 | 210 | 172 | 150 | 38 | 8-Φ30 | 621 | 400 | |
| 125 | 500 | 310 | 250 | 210 | 176 | 42 | 8-Φ34 | 732 | 400 | |
| 150 | 550 | 350 | 290 | 250 | 204 | 46 | 12-Φ34 | 840 | 450 |
| 16.0MPa | DN | L | D | D1 | D2 | D6 | b | n-Φd | H | D0 |
|
凹凸法兰 MFM J41Y 160I |
200 | 65 | 430 | 360 | 312 | 260 | 54 | 12-Φ41 | 925 | 500 |
| 15 | 170 | 110 | 75 | 52 | 40 | 24 | 4-Φ18 | 148 | 140 | |
| 20 | 190 | 130 | 90 | 62 | 51 | 26 | 4-Φ23 | 158 | 160 | |
| 25 | 210 | 140 | 100 | 72 | 58 | 28 | 4-Φ23 | 175 | 180 | |
| 32 | 230 | 165 | 115 | 85 | 66 | 30 | 4-Φ25 | 200 | 200 | |
| 40 | 260 | 175 | 125 | 92 | 76 | 32 | 4-Φ27 | 231 | 240 | |
| 50 | 300 | 215 | 165 | 132 | 88 | 36 | 8-Φ25 | 262 | 280 | |
| 65 | 340 | 245 | 190 | 152 | 110 | 44 | 8-Φ30 | 303 | 320 | |
| 80 | 380 | 260 | 205 | 168 | 121 | 46 | 8-Φ30 | 341 | 360 | |
| 100 | 430 | 300 | 240 | 200 | 150 | 48 | 8-Φ34 | 485 | 400 |
QQ: 769693943
Phone: 13816746668
Tel: 021-31001158
Email: 769693943
Add: 上海市金山区沪杭公路4169号