
服务热线021-31001158
您的位置:德国托马斯阀门(Thomas) - 公司新闻

进口不锈钢截止阀用于石油、化工、电力、冶金、机械等装置的自动控制系统中。
截止阀的启闭件是塞形的阀瓣,密封上面呈平面或锥面,阀瓣沿阀座的中心线作直线运动;截止阀阀杆开启或关闭行程相对较短,并具有非常可靠的切断动作,使得它适合作为介质的切断或调节及节流使用。
截止阀属于强制密封式阀门,所以在阀门关闭时,必须向阀瓣施加压力,以强制密封面不泄漏。从自密封的阀门出现后,截止阀的介质流向就改由阀瓣上方进入阀腔,这时在介质压力作用下,关阀门的力小,而开阀门的力大,阀杆的直径可以相应地减少;同时,在介质作用下,这种形式的阀门也较严密。
进口不锈钢截止阀参数: |
公称通径:DN15-DN1200
公称压力:1.0Mpa-10Mpa
适用温度:-20~425℃
适用介质:水、油、蒸汽
阀体材质:不锈钢
连接方式:法兰连接
设计制造:GB12235
结构长度:GB12221
连接法兰:JB/T79;GB9113;HG20593-20635
试验检验:GB13927;JB/T9092
进口不锈钢截止阀特性: |
①阀瓣、阀座密封面采用铁基合金堆焊或司太立钴基硬质合金堆焊而成,耐磨、耐高温、耐腐蚀、抗擦伤性能好,使用寿命长;
②阀杆经调质及表面氮化处理,有良好的抗腐蚀性和抗擦伤性;
③可采用各种配管法兰标准及法兰密封面型式,满足各种工程需要及用户要求;
④阀体材料品种齐全,填料、垫片可根据实际工况或用户要求合理选配,能适用于各种压力、温度及介质工况;
⑤倒密封采用螺纹连接密封座或本体堆焊奥氏体不锈钢而成,密封可靠,更换填料可在不停机情况下进行,方便快捷,不影响系统运行。

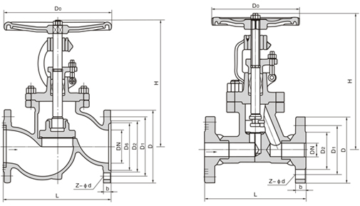
进口不锈钢法兰截止阀尺寸图
| 通径 | 15 | 20 | 25 | 32 | 40 | 50 | 65 | 80 | 100 | 125 | 150 | 200 | 250 | 300 |
| L | 130 | 150 | 160 | 180 | 200 | 230 | 290 | 310 | 350 | 400 | 480 | 600 | 730 | 850 |
|
进口不锈钢截止阀主要连接外形和尺寸 |
单位:mm
|
注:此外形尺寸为1.6Mpa压力截止阀。
进口不锈钢截止阀的启闭件是塞形的阀瓣,密封上面呈平面或海锥面,阀瓣沿阀座的中心线作直线运动,这种类型的截流截止阀阀门非常适合作为切断或调节以及节流用。由于该类阀门的阀杆开启或关闭行程相对较短,而且具有非常可靠的切断功能,又由于阀座通口的变化与阀瓣的行程成正比例关系,非常适合于对流量的调节。
以上就是产品的各项参数、尺寸以及产品详情,为了方便我公司生产及技术人员为您准确选型。请您尽量了解口径、压力、使用介质及工况条件,以便我公司提供更准确、更有针对性的服务。如有任何疑问.您可以致电给我们,我们一定会尽心尽力为您提供优质的服务!

联系电话
微信扫一扫