
服务热线021-31001158
您的位置:德国托马斯阀门(Thomas) - 公司新闻

|
产品名称 |
进口气动三片式球阀 |
品牌 |
|
|
口径 |
DN10-100 |
操作方式 |
手动,气动 |
|
压力 |
1.6-6.4Mpa,1000PSI WOG |
连接方式 |
G螺纹,PT螺纹,NPT螺纹 |
|
温度 |
-40-350℃ |
结构 |
三片式 |
|
材质 |
不锈钢304、316,304L,316L |
密封材质 |
PTFE,PPL |
|
适用介质 |
WOG |
配附件 |
电磁阀,定位器,限位开关等 |
德国进口气动三片式球阀概述
进口气动三片式球阀,Pneumatic three pieces ball valve,也叫气动丝扣球阀,球阀小口径球阀,气动不锈钢螺纹球阀,是指有气动执行器和三片式螺纹球阀组成,由气源来驱动气动执行器控制球阀开关或者调节的球阀,可实现远程智能控制。
气动三片式球阀,气动不锈钢球阀适用于PN1.0~4.0MPa,工作温度-29~180℃(密封圈为增强聚四氟乙烯)或-29~300℃(密封圈为对位聚苯)的各种管路上,用于截断或接通管路中的介质。选用不同的材质,可分别适用于水、蒸汽、油品、硝酸、醋酸等多种介质。
德国进口气动三片式球阀产品参数
|
公称通径DN(mm) |
DN6-DN100 |
|||
|
材料\材料代号 |
C |
P |
R |
|
|
主 |
阀体 |
WCB |
CF8 304 |
CF8M 316 |
|
球板 |
WCB |
CF8 304 |
CF8M 316 |
|
|
阀杆 |
2Cr13 |
0Cr18Ni9 |
0Cr17Ni12Mo2 |
|
|
密封圈 |
增强聚四氟乙烯 对位聚笨 |
|||
|
填料 |
聚四氟乙烯 柔性石墨 |
|||
|
适 |
适用介质 |
水、蒸汽、油品 |
硝酸类 |
醋酸类 |
|
适用温度 |
-28℃~350℃ |
|||
|
控制型式 |
双作用/单作用 |
|||
|
作用型式 |
切断/调节 |
|||
|
输入信号 |
电信号:0~10mA、-4~10mA 气信号20~100kPa |
|||
|
回信电压 |
AC220V/DC24V |
|||
|
工作介质 |
净化压缩压气 |
|||
|
执行器 |
型号 |
GT系列、HY系列 |
||
|
气源压力 |
0.4~0.7MPa |
|||
|
二段式不锈钢球阀按用户要求可做成外螺纹连接型卡箍型 |
||||
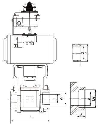
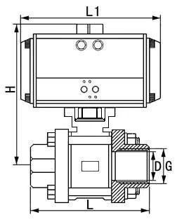
德国进口气动三片式球阀尺寸图

|
公称通径DN(mm) |
尺 寸(mm) |
|||||||||
|
三段式 |
对焊式 |
承插焊式 |
||||||||
|
G |
L |
d |
L |
d |
D |
L |
d |
D1 |
A |
|
|
6 |
1/4 |
65 |
11.6 |
65 |
11.6 |
18 |
65 |
11.6 |
14.1-14.3 |
9.5 |
|
10 |
3/8 |
65 |
12.7 |
65 |
12.7 |
18 |
65 |
12.7 |
17.55-17.8 |
9.5 |
|
15 |
1/2 |
67 |
15 |
67 |
15.8 |
24 |
67 |
15 |
21.7-21.95 |
9.5 |
|
20 |
3/4 |
82 |
20 |
82 |
20 |
28 |
82 |
20 |
27.05-27.3 |
11.1 |
|
25 |
1 |
91 |
25 |
91 |
25 |
34 |
91 |
25 |
33.8-34.05 |
12.7 |
|
32 |
11/4 |
108 |
32 |
108 |
32 |
41 |
108 |
32 |
42.55-42.8 |
14.3 |
|
40 |
21/2 |
139 |
38 |
129 |
38 |
49 |
129 |
38 |
48.65-48.9 |
15.9 |
|
50 |
2 |
148 |
50 |
148 |
50 |
62 |
148 |
50 |
61.1-61.35 |
17.4 |
|
65 |
21/2 |
186 |
64 |
193 |
64 |
78 |
||||
|
80 |
3 |
206 |
78 |
222 |
78 |
94 |
||||
|
100 |
4 |
240 |
98 |
273 |
98 |
124 |
||||

联系电话
微信扫一扫