
服务热线021-31001158
您的位置:德国托马斯阀门(Thomas) - 公司新闻

产品信息
产品型号:ml-8677
产品口径:DN15-DN65
产品压力:1.6Mpa-6.4Mpa
产品材质:碳钢 不锈钢
进口倒吊桶式疏水阀内部是一个倒吊桶为液位敏感件,吊桶开口向下,倒吊桶连接杠杆带动阀心开闭阀门。倒吊桶式疏水阀能排空气,不怕水击,抗污性能好。过冷度小,漏汽率小于3%,较大背压率为75%,连接件比较多,灵敏度不如自由浮球式疏水阀。
因倒吊桶式疏水阀是靠蒸汽向上浮力关闭阀门,工作压差小于0.1MPA时,不适合选用。当装置刚启动时,管道内的空气和低温凝结水进入疏水阀内,倒吊桶靠自身重量下坠,倒吊桶连接杠杆带动阀心开启阀门,空气和低温凝结水迅速排出。当蒸汽进入倒吊桶内,倒吊桶的蒸汽产生向上浮力,倒吊桶上升连接杠杆带动阀心关闭阀门。倒吊桶上开有一小孔,当一部份蒸汽从小孔排出,另一部份蒸汽产生凝结水,倒吊桶失去浮力,靠自身重量向下沉,倒吊桶连接杠杆带动阀心开启阀门,循环工作,间断排水。
进口疏水阀作用:当蒸汽冷凝时释放蒸发焓形成冷凝水,冷凝水中只含有饱和水焓,为了确保系统的较大传热效率,冷凝水必须从系统中排除。蒸汽中所携带的空气和其它不凝性气体在蒸汽和换热面上形成热阻层同样也必须从系统中排除。疏水阀的基本作用是将蒸汽系统中的凝结水、空气和二氧化碳气体尽快排出;同时较大限度地自动防止蒸汽的泄漏。

倒置桶蒸汽疏水阀原理图
进口倒置桶式蒸汽疏水阀参数: |
公称通径:DN15-DN125
公称压力:1.0Mpa-4.0Mpa
适用温度:-20℃≤T≤425 ℃
适用介质:水、蒸汽、油品
阀体材质:铸铁、铸钢、碳钢、不锈钢
连接方式:丝扣螺纹
进口倒置桶式蒸汽疏水阀特性: |
①结构简单,不易故障。无插销或铰链结构,无固定磨损,节能效果好。耐磨铬钢阀座,不锈钢结构,使用寿命长;
②间歇排放杂质均可冲走,不积污垢,自动排空气;
③有多种节流孔选择,在不同压力下,可达到较高排水流量;
④内部零件全安装在阀盖上,维修方便。

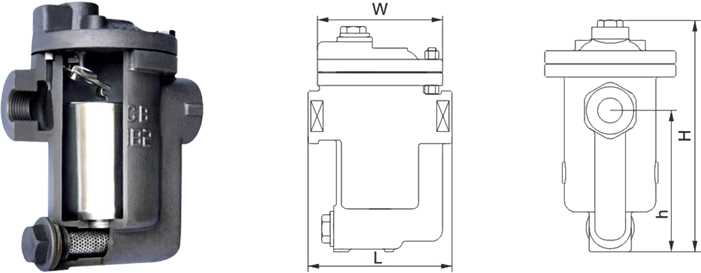
进口倒置桶式蒸汽疏水阀尺寸: |
![]() |
| 主要连接外形和尺寸 |
单位:mm
|
| DN | 15 | 20 | 25 | 32 | 40 | 50 | 65 |
| L(881) | 120 | 120 | 130 | ||||
| L(882) | 170 | 170 | 170 | ||||
| L(883) | 205 | 205 | 205 | 205 | |||
| L(815) | 225 | 225 | 225 |

联系电话
微信扫一扫