
服务热线021-31001158
您的位置:德国托马斯阀门(Thomas) - 公司新闻

气动高压球阀概述
进口气体高压球阀是双(单)作用气动活塞式执行器与进口BKH高压球阀组成,是一种自动控制和遥控的新型阀门。广泛的用于加气站、装罐车等高压管道,其连接形式分内螺纹(G/NPT)、焊接、卡套等。气动活塞式执行器采用低摩擦材料,缸体内外表面经硬质阳极氧化防腐处理,大大提高了气缸的使用寿命。
工作原理
当气动执行器与电路和系统气源接通后,空气通过管道A或B管进入A缸(B缸)推动活塞向一端运动,从而带动旋转轴和球芯转动90°
气动执行器顶部连动可视器,当绿色标志指向“开”字时标志阀门开启。
回信器信号灯绿灯亮时阀门处在开启位置,而红灯亮时阀门处在关闭位置
定位器可调节阀门管道流量
气动执行器主要技术参数
|
气动执行器 |
型号 | MAT系列 |
| 气源压力 | 0.4 ~ 0.8 MPa | |
| 最大回转角度 | 90°~92° | |
| 回信器 | AC220V AC110V DC24V | |
| 控制信号 | 电信号:0~0Ma 4 ~20Ma 气信号:0.02 ~0.1 MPa | |
| 控制气源 | 洁净、干燥压缩空气 | |
| 工作温度 | -20℃ ~ +90℃ |
阀体主要零件材料
| 零件名称 | 阀体 | 球芯 | 阀座 | 阀杆 | 填料 | 支架 | 连接轴 |
| 材料 | 锻钢、不锈钢 | 不锈钢 | 聚甲醛、聚醚醚酮 | 2Cr13 | 氟橡胶 | 不锈钢 | 铸钢 |
气动执行器主要部件材料
| 零件名称 | 缸体 | 端盖 | 活塞 | 轴 | O型圈 | 螺栓 |
| MAT |
铝合金型材 (硬质阳极氧化) |
压铸铝合金 (环氧树脂喷涂) |
压铸铝 |
钢 (镀镍磷合金) |
NBR | SUS304 |
主要性能规范
| 型号 |
公称压力 PN(MPa) |
试验压力Ps(MPa) |
启闭时间 (S) |
工作温度 (℃) |
适用介质 | |
| 壳体 | 密封 | |||||
| MN1P | 16 | 16 | 24 | 1~2 |
-35~120 |
天然气、油 |
| 35 | 35 | 50 | ||||
| MN4P | 16 | 16 | 24 | 1~2 | ||
| 35 | 35 | 50 | ||||

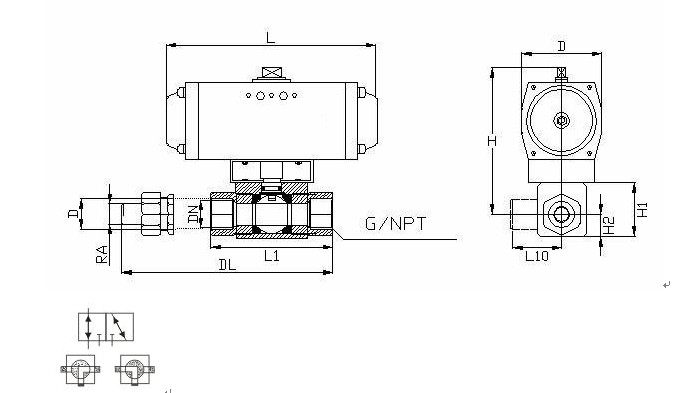
主要外形尺寸
内螺纹 (单位:mm)
|
螺纹 G/NPT |
DN | L1 | B | D | H | H1 | H2 | L | H | L10 | 气动执行器 |
| 1/4 | 6 | 69 | 26 | 58 | 150 | 32 | 13 | 165 | 150 | 32 | MAT50 |
| 3/8 | 10 | 73 | 32 | 58 | 150 | 38 | 16 | 165 | 150 | 35 | |
| 1/2 | 15 | 85 | 38 | 58 | 150 | 46 | 19 | 165 | 150 | 37 | |
| 3/4 | 20 | 96 | 49 | 70 | 210 | 57 | 24 | 225 | 210 | 47 | MAT63 |
| 1″ | 25 | 110 | 60 | 70 | 210 | 60 | 26 | 225 | 210 | 55 | MAT 75 |
| 11/4 | 32 | 110 | 76 | 70 | 210 | 84 | 38 | 225 | 210 | 70 | MAT 88 |
| 21/2 | 40 | 120 | 84 | 90 | 260 | 92 | 42 | 255 | 260 | 72 | MAT 100 |
| 2″ | 50 | 140 | 100 | 120 | 320 | 111 | 50 | 330 | 320 | 80 | MAT 115 |
(如选用单作用气缸加一档)
卡套式外表连接尺寸
| DN | RA | D | DL | 气动执行器 |
| 6 | 10 | M18×1.5 | 91 |
MAT50 |
| 8 | 12 | M20×1.5 | 95 | |
| 10 | 14 | M22×1.5 | 104 | |
| 13 | 16 | M24×1.5 | 107 | MAT63 |
| 16 | 20 | M30×2 | 113 | |
| 20 | 25 | M36×2 | 134 | MAT75 |
| 25 | 30 | M42×2 | 146 | |
| 25 | 38 | M52×2 | 155 | MAT100 |
| 32 | 38 | M52×2 | 170 |
(如选用单作用气缸加一档)
以上就是产品的各项参数、尺寸以及产品详情,为了方便我公司生产及技术人员为您准确选型。请您尽量了解口径、压力、使用介质及工况条件,以便我公司提供更准确、更有针对性的服务。如有任何疑问.您可以致电给我们,我们一定会尽心尽力为您提供优质的服务!

联系电话
微信扫一扫